
Comentariul autorului:
ORANGERIA IRIS
dă de fapt numele unui parc. E o prelungire a pădurii, un spațiu neîngrădit și natural, dar de o sălbăticie controlată.
Tema de la care au pornit inițiatorii proiectului a fost să creeze câteva pavilioane multifuncționale, care să le găzduiască creațiile florale și artistice, precum și diverse evenimente. Dar, mai mult decât atât, beneficiarii și-au dorit ca natura înconjurătoare să fie mai presus decât clădirile.
Locul, un fost lan de porumb traversat de căprioare și înconjurat de pădurea Snagov, avea să dicteze amplasarea pavilioanelor în cotloanele create de pădure, astfel încât, de pe drum, aproape să nu se vadă: Orangeria (sera principală), un corp minimal de cazare și o seră secundară.
Pavilioanele sunt legate între ele de alei care se pierd în pădure și care se lățesc în anumite zone, creând suprafețe mai mari, prelungiri ale spaților interioare. Un fir de apă cu drenaj natural înconjoară de asemenea clădirile, oferind ochiuri de apă și traversări pe poduri metalice. Texturile diferite ale aleilor sunt date de dozajele diferite ale acelorași materiale: pământ, pietriș și nisip. Locurile de parcare sunt și ele ascunse în meandrele drumului, printre diverse pâlcuri de copaci plantați. În ansamblul său, proiectul peisajer combină plantațiile propuse cu natura spontană, o îmbinare care a dat roade la foarte scurt timp de la plantare.
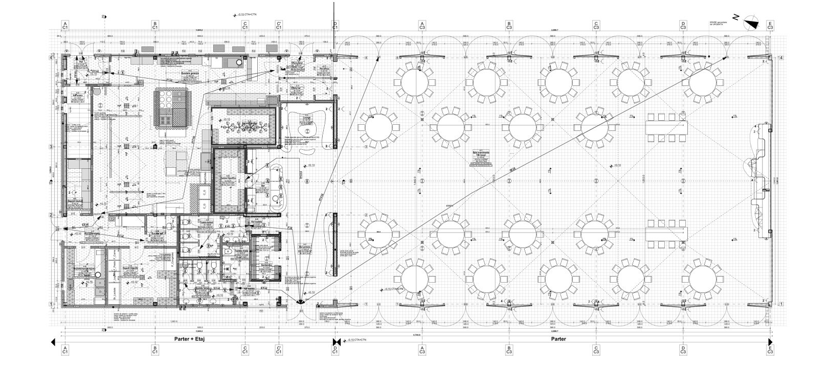
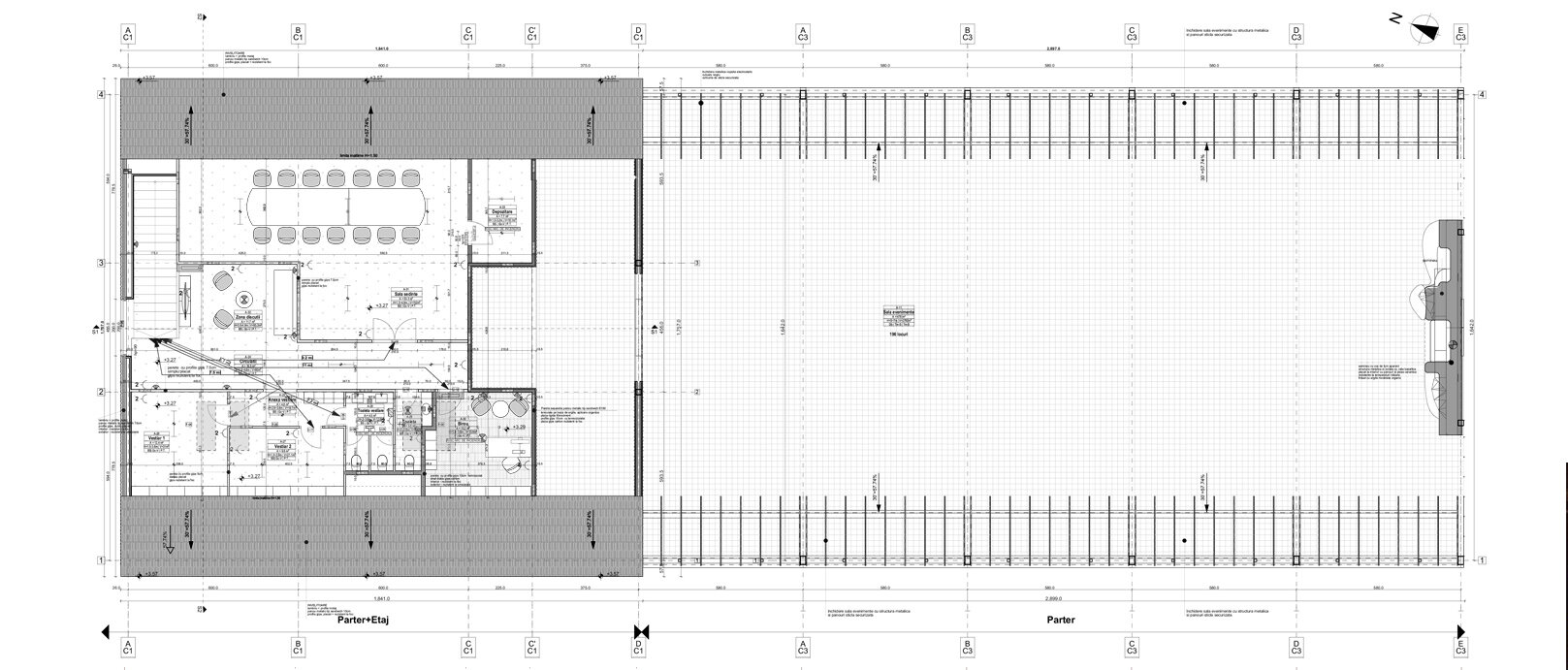
Orangeria, corpul principal, este alcătuită dintr-o zonă largă și deschisă, complet transparentă, cu structura metalică vizibilă (cu o deschidere de 17m fără stâlpi interiori)- partea multifuncțională- și o zonă plină- pentru utilități. La exterior, zonele pline au fost fie finisate cu tencuială de argilă brută, fie acoperite cu șiță arsă la fața locului. La interior, în zona serei, singura zonă de plin este cea a accentului vertical, șemineul tencuit. La capătul opus se află un accent de culoare și textură, sub forma unui bar de teracotă.
Corpul de cazare, minimal, este unul trilobat- cu trei paralelipipede echidistante finisate complet cu șiță, pierzându-se astfel în cromatica contextului.