
Comentariul autorului:
Amplasamentul se află în orașul Odorheiu Secuiesc, pe versantul stâng al râului Târnava Mare, cu vedere spre oraș și împrejmuiri către nord. Casa a fost așezată pe teren maximizând zona verde pentru curte și utilizând panta cât mai eficient pentru demisolul parțial solicitat de beneficiar.
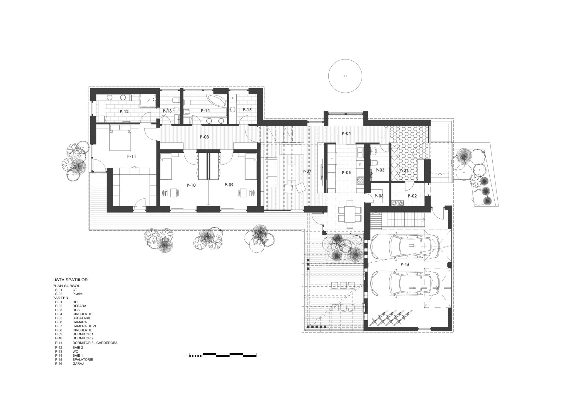
Compoziția arhitecturală a casei de locuit se bazează pe articularea volumelor garajului, zonei de zi, a zonei de noapte și integrarea acestora sub un acoperiș simplu cu streșini parțial supralărgite. Clădirea are o organizare funcțională clară: accesul se racordează la o circulație care străbate longitudinal toată casa și organizează spațiile de zi, și, separat, cele de noapte în lungul acesteia. Zona de zi conține hol, debara, duș, bucătărie cu sufragerie și camera de zi. Zona de noapte separată printr-un hol-tampon de zona de zi, cuprinde 2 dormitoare pentru copii comandate, baie, oficiu și suita matrimonială formată din dormitor, debara, baie și wc. Garajul formează o unitate clară, separată de restul casei.
Planimetria în L definește locul principal în curte, terasa acoperită, care are o legătură vizuală și către cer și către locul de luat masa. Dormitoarele de asemenea au legătură directă cu curtea, accesele fiind protejate de o streașină largă. Aceasta este inspirată din arhitectura vernaculară a zonei. Reinterpretând prispa tradițională am creat o zonă de tranziție care pe lângă protejarea casei de efecte meteorologice creează o trecere fluidă între spațiile interioare și exterioare.
Pentru încadrarea subtilă a locuinței în peisajul natural și cel construit sunt folosite materiale și texturi naturale, cum ar fi lemn și tencuială cu nuanțe monocrome.
Lumina naturală este prezentă în casă prin suprafețele vitrate verticale sau în panta acoperișului, iar vitrajele pe lângă vederile către împrejurimi contribuie semnificativ la atmosfera generală a casei.
Din punct de vedere energetic s-au urmărit aspecte compoziționale și volumetrice cum ar fi orientarea spațiilor de locuit către sud, sud-vest, și a celorlalte către nord, respectiv umbrirea suprafețelor vitrate cu streșini largi pentru evitarea supraîncălzirii. Pe lângă compoziția clădirii eficiența energetică a fost îmbunătățită prin anvelopă termică eficientă și tâmplării cu grad de izolare ridicată, masivitate termică, reducerea punților termice prin conformare constructivă și nu în ultimul rând prevederea unui sistem de ventilare cu recuperare de căldură.