
Comentariul autorului:
Beneficiarul a achiziționat un imobil la perimetrul centrului istoric al orașului, cu o casă existentă, care a fost modificată în mod agresiv. Într-o zonă eterogenă din punct de vedere arhitectural, provocarea arhitecturală fost multiplă: re-relaționarea cât mai corectă cu vecinătățile (cu mod de ocupare a terenului foarte divers și monument istoric la capătul străzii), reducerea scării clădirii dar creșterea suprafeței de locuit originale, adaptare la constrângerile planimetriei și condițiilor tehnice existente și nu în ultimul rând crearea unui cămin confortabil pentru o familie.
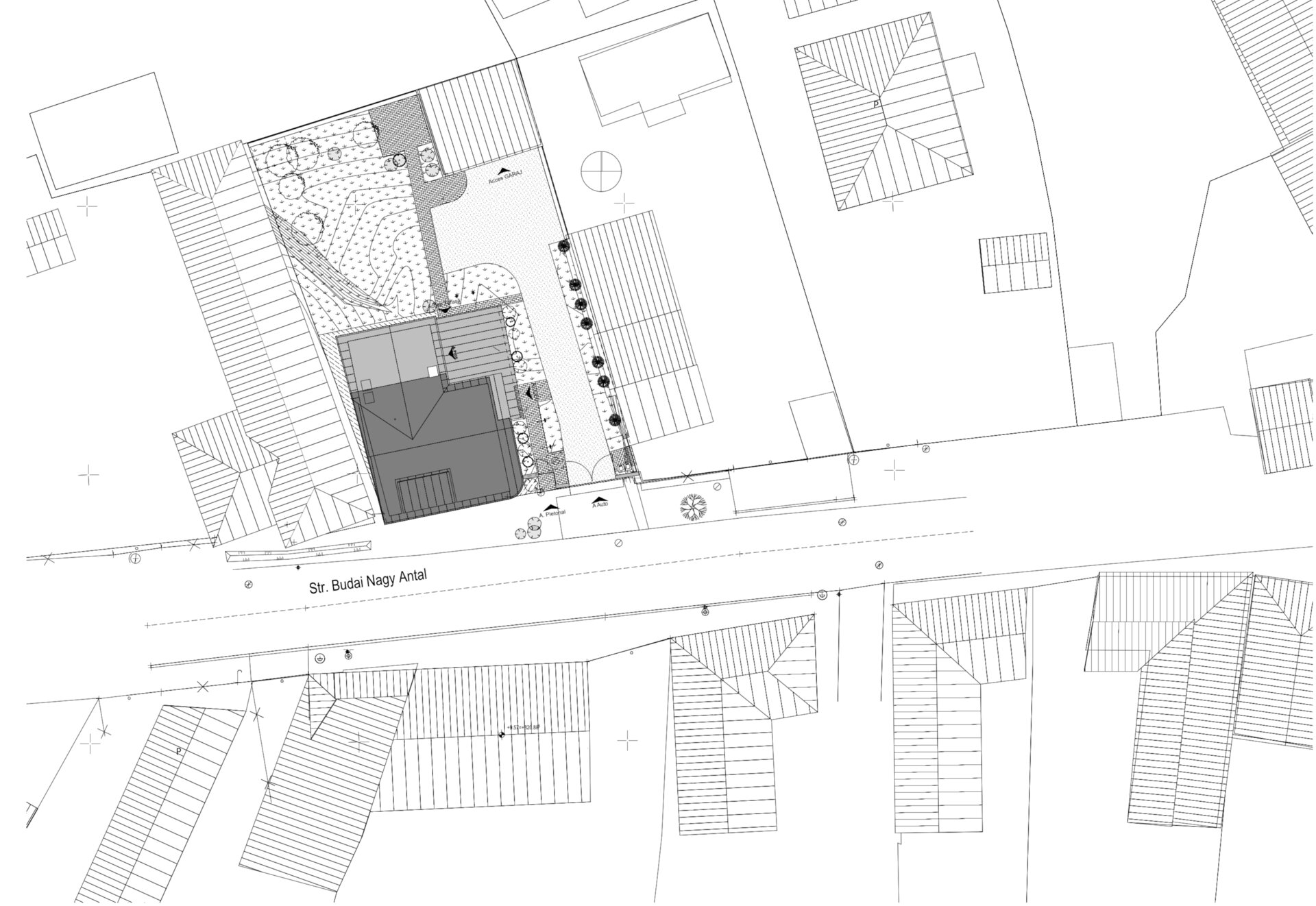
Volumetria am adaptat-o la tipologia existentă în zonă, cu coame în general paralele cu strada, astfel am reintrodus clădirea în scara locului. Am păstrat raportul plin-gol al fațadei stradale. Colțul rotunjit al clădirii existente a fost gestul arhitectural de care s-a îndrăgostit beneficiarul, de aceea am încercat să nu-i diminuăm calitatea, mai mult să-l punem în valoare. Garajul s-a reconstruit cu suprafață mărită, în fundul curții pentru a nu perturba aliniamentul stradal. Delimitările terenului le-am definit cu suprafețe de cărămidă aparentă și șipci de lemn pentru a aduce culoare, textură, materialitate în câmpul vizual al locatarilor.
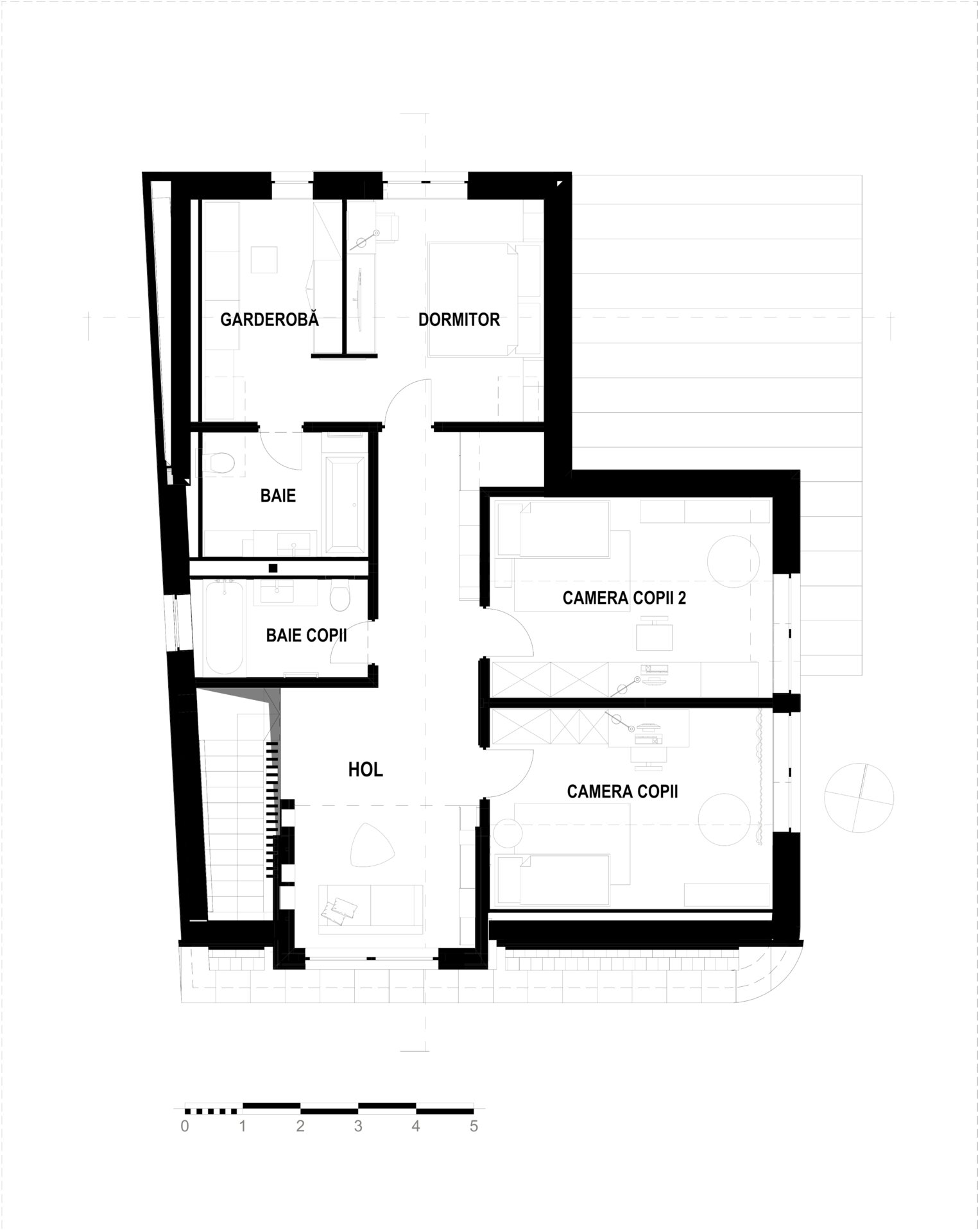
Spațiile de zi s-au organizat la nivelul parterului, fiind completate cu o terasă cu acces direct în curtea din spatele casei, iar cele de noapte s-au amplasat la mansardă. În spațiul fluid al parterului balustrada scării către mansardă am dezvoltat-o într-un perete perforat decorativ din lemn, cu spații de depozitare pentru instrumentele beneficiarului, care devine fundal pentru pianul restaurat între timp. Mobilierul fix a fost parțial conceput de noi cu colaborarea constructivă cu producătorul.