
Comentariul autorului:
Extindere si Modernizare Farmacie Dimafarm – IZBICENI
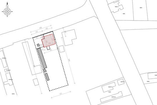
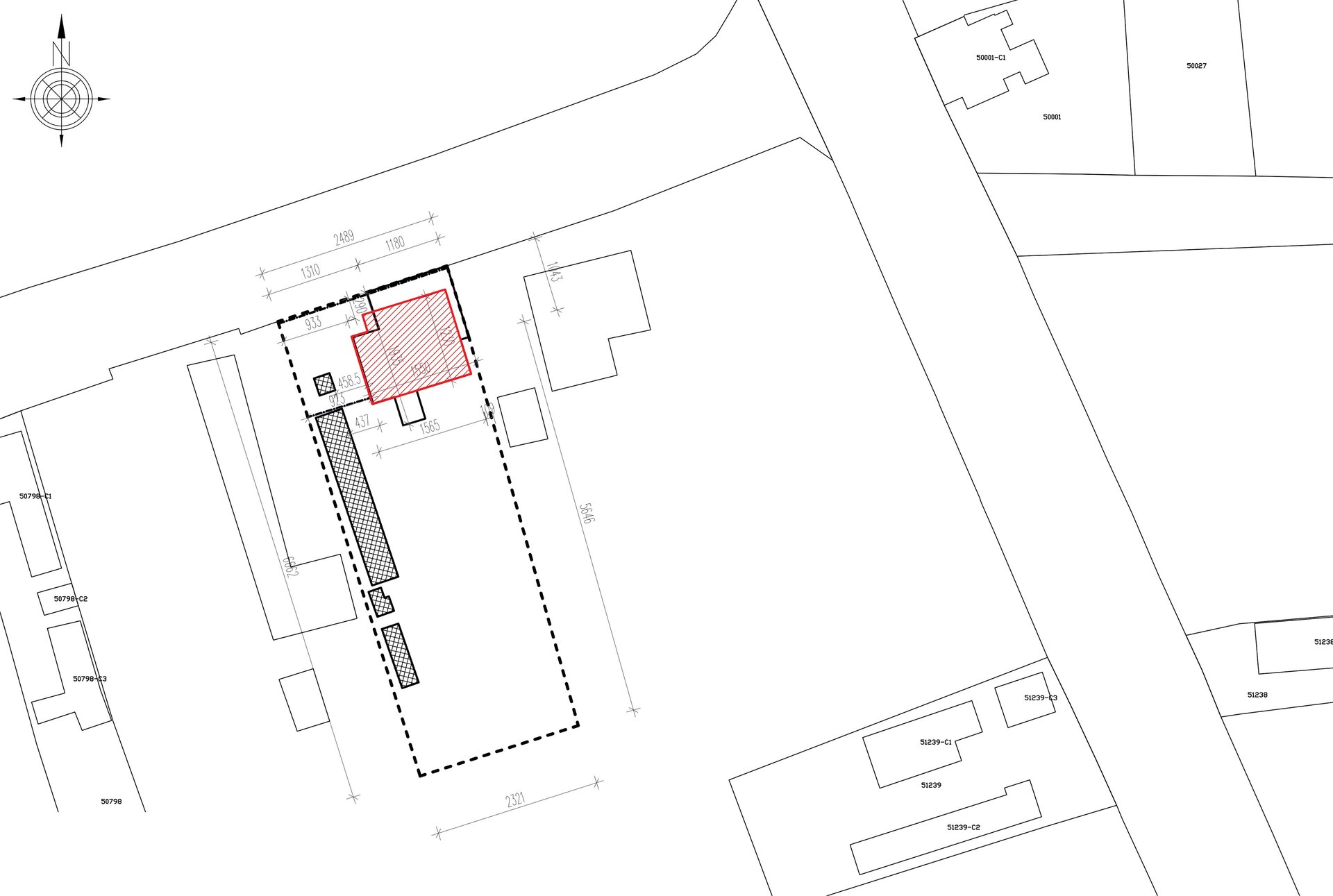
Amplasament: satul Izbiceni, comuna Izbiceni, zona intersectiei strazilor Corabiei cu Mihai
Viteazul.
Coeficcenti urbanistici:
Teren cu suprafata de 1610 mp
Regim de inaltime final = Parter + 1 Etaj
Suprafata existenta corp cladire cu functiune farmacie Sc=209.84 mp, Sd=290.35 mp
Suprafata propusa corp cladire cu functiune farmacie dupa executare lucrari modernizare
Sc= 173.22 mp (inclusiv terase acoperite), Sd= 278.66 mp (inclusiv terase acoperite)
P.O.T. PROPUS = 10.74%
C.U.T. PROPUS = 0.172
Povestea proiectului - pleaca de la un spatiu in care functiona farmacia, spatiu ce nu mai corespundea cerintelor actuale nici din punct de vedere structural ( necesitand consolidare) cat si din punct de vedere a fluxului si spatiului necesar fuctionarii unei astfel de dotari
precum farmacia.
Provocarea proiectului a fost data de dorinta de a integra in contextul existent construit, o cladire existenta dar impropriu adaptata de la locuinta la functiunea de farmacie. Prin urmare, dupa identificarea zonelor ce permit interventii majore, cat si prin vizita la sit, s-au conturat cateva oportunitati: pastrea si consolidare unei bune partea din cladirea existenta, rectificarea aliniamentului prin posibilitatea de interventie asupra zonei de acces. Prin interventia asupra vechii strucuri si noul adaos cladirea redevine corelata cu aliniamentul acutal al strazii.
Modernizarea Structurii - este o parte crucială a proiectului deoarece clădirea existentă necesită intervenții majore pentru a asigura siguranța și durabilitatea. Procesul de modernizare incepe cu evaluare amănunțită a stării actuale a clădirii. S-a efectuat o inspecție structurală pentru a identifica problemele existente, cum ar fi fisuri, coroziune, deterioarea fundației sau alte deficiențe structurale.
Integrarea Spațiului de Locuință - una dintre provocările majore a fost adaptarea clădirii, care anterior era folosită ca locuință, pentru a corespunde funcției de farmacie. În procesul de adaptare a clădirii am întâmpinat provocări semnificative, deoarece structura inițială era compusă din celule mici și inadecvate pentru funcționarea unei farmacii moderne. Una dintre primele măsuri pe care le-am luat a fost să analizăm compoziția internă a clădirii. Am observat că celulele mici, deși inadecvate pentru locuire, pot fi adaptate pentru a crea spații funcționale în farmacie. Astfel, am decis să asociem celulele,
eliminând pereții divizori inutili. Prin această abordare, am creat un spațiu mai generos, care poate găzdui cu ușurință rafturi pentru medicamente, echipamente medicale și zone pentru servirea clienților.
Zona de acces - pe langa crearea unui spatiu fluid si potrivit pentru desfasurea activitatii, un punct important este crearea mecanismului de acces gazduit de noul volum. Zona de acces este integrat la baza corpului adosat vechii structuri si ofera continuitate si coerenta
spatiului.
Volumul Clădirii: Un Design Simplu și Distinct
Una dintre caracteristicile cheie ale proiectului "Refacerea Spațiului Farmaciei" este volumul clădirii, care a fost abordat cu atentie pentru a marca zona de acces și a evidenția noua adiție față de vechea clădire. Pentru a crea identitate farmaciei și pentru a facilita orientarea clienților, zona de acces este una aparte si reconoscibila. Această zonă este marcată vizual printr-un element tip panou sau o fațadă separată, care se distinge de restul clădirii. Pentru a sublinia și
evidenția această zonă, am optat pentru utilizarea unui material texturat care conferă detaliu și accentuează zona. Panoul este contrastant fata de restul clădirii, prin textură, culoare si tipul de goluri.
Amenajarea interioară - a farmaciei din proiectul este gândită pentru a fi eficientă din punct de vedere funcțional și pentru a reflecta simbolistica farmaceutică, precum și personalitatea și marca proprietarului. Recepția și zona centrală de expunere sunt două puncte focale ale farmaciei. Mobilierul aici este personalizat pentru a adăuga un caracter unic și pentru a crea o atmosferă primitoare și profesională. Aceste piese de mobilier sunt realizate din materiale precum lemn (pal) și cadre metalice. Culorile folosite si desenul sunt
gandite pentru a evoca simbolurile farmaceutice. De exemplu, culoarea verde, care este adesea asociată cu natura și sănătatea, este folosită pentru a conferi un aspect proaspăt și vital. De asemenea, culorile care se regăsesc în logo-ul si sigla farmaciei sunt integrate în
amenajare pentru a crea o identitate vizuală coerentă. Designul de iluminat este gandit pentru a oferi un echilibru între iluminarea generală și iluminarea accentuată pe anumite zone de interes, precum rafturile cu medicamente si obiectele de mobilier importante.
Concluzie
Proiectul ”DIMA FARM Refacerea Spațiului Farmaciei” este o poveste de reînnoire și adaptare, în care arhitectura se întrepătrunde cu situatiile actuale pentru a crea un spațiu care servește atât prezentului, cât și viitorului. Acest proiect reprezintă o reușită în transformarea unei clădiri vechii într-un loc vibrant și funcțional, care continuă să împlinească nevoile comunității. Proiectul devine reper in cadrul contextului rural atat prin functiunea de baza in comunitate cat si prin volumul nou, de actualitate.