
Comentariul autorului:
Plecând de la 2 întrebări principale, şi anume: „De ce pleacă oamenii departe?" și "De unde pasiunea asta omenească pentru teritorii necunoscute?", proiectul dorește să vină ca răspuns complementar activităților cu caracter montan, deja cu tradiție în arealul studiat, oferind un cadru suport curatoriat, prin care pasionații de munte pot dobândi abilitățile necesare acestui demers şi totodată o propunere de revitalizare a imaginii obiectelor de arhitectură prezente deja în memoriul locului, care din cauza regimului totalitar, poziționat vehement împotriva curiozității individului, a lichidat orice asociație de profil existentă până în 1948. Mai mult, lipsa unor strategii și soluții tehnice sustenabile după 1990, au condus la degradarea fondului construit și efectuarea expedițiilor montane exclusiv ad-hoc, ori doar de către cei care au deja în anturaj "oameni ai muntelui".
Alegerea temei a fost direcționată de doi factori principali, primul fiind dorința proprie de a veni în sprijinul pasionaților de munte, constant exploratori, în ciuda misterului și a riscului implicat de această activitate și totodată de a aduce în atenție un posibil mod prin care zona poate fi activată împreună cu membrii din comunitate și intervenții sensibile față de context.
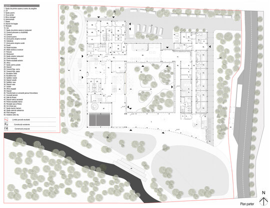
Situat în localitatea Dejani, Brașov, parte din ansamblul bazei militare şi depozitului de explozibil al fabricii de pulberi Făgăraş.
Ansamblul a suferit divizări odată cu falimentul fabricii de pulberi, clădirile depozit, unitatea de cazare și sediul pompierilor intrând în proprietatea MAI, iar clădirea centrului de pregătire, împreună cu anexele şi garajul autospecialelor fiind cedate primăriei Făgăraș în schimbul lichidării datoriilor.
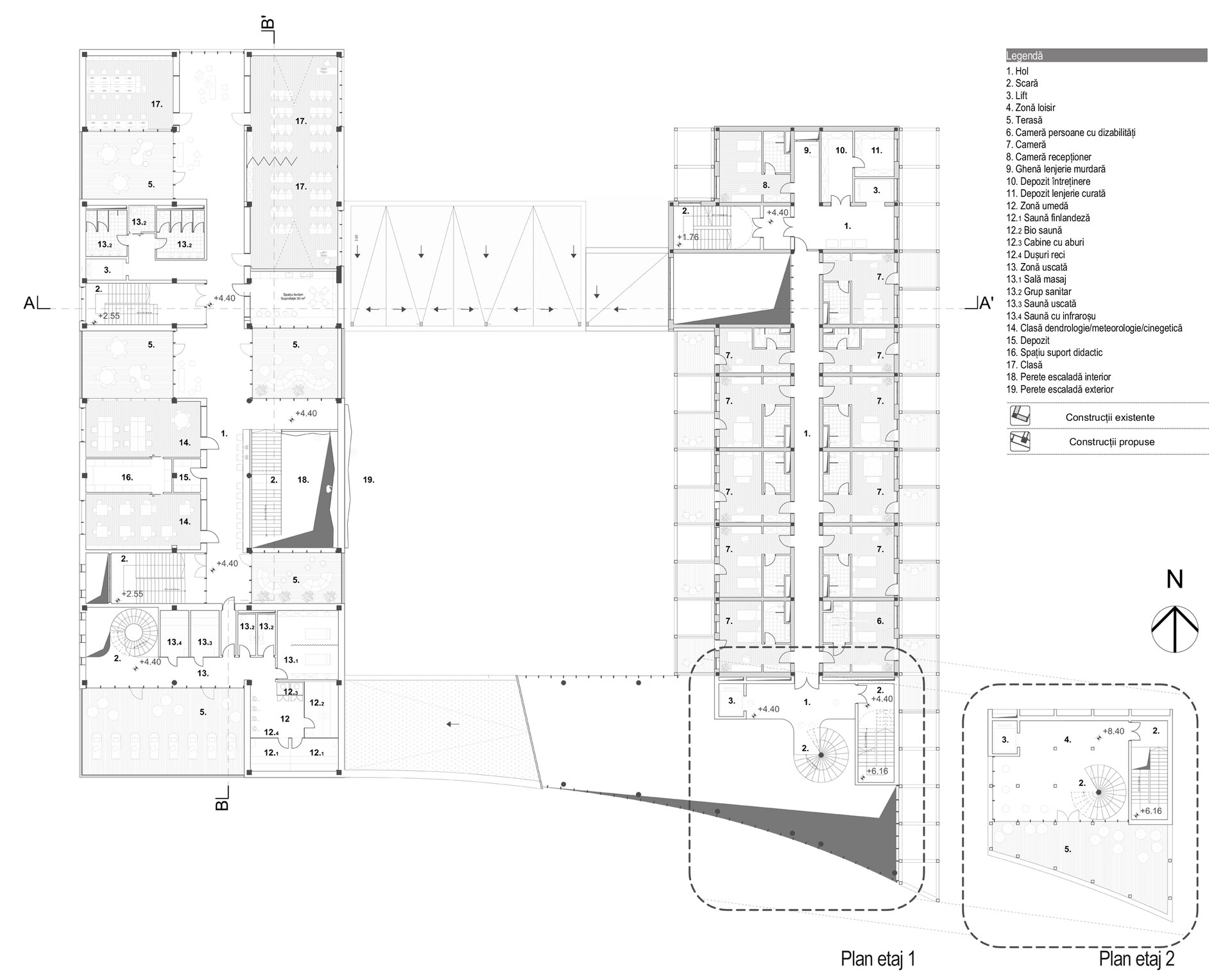
Pe parcela studiată se află Cazarma, corpul de clădire principal (la nord și la est) aşezat paralel cu frontul străzii, care împreună cu cele 3 anexe (constituind frontul de vest al parcelei) și garajul pentru autospeciale (frontul de sud), creează o zonă interioară protejată, destinată antrenamentelor militarilor.
Proiectul iși propune o abordare holistică, prin care se dorește recircularea unui fond construit dezafectat, transformând ansamblul de clădiri existente și generând simbioza între acesta și contextul natural în care se află. Abordarea face uz de mentalul colectiv local și propune mai mult decât o rezolvare strict utilitaristă de salvare și instruire, având spații de calitate mai departe de nivelul de funcționalitate minim pe care un astfel de program îl necesită în mod uzual.
Astfel proiectul se concretizează printr-un centru principal, "baza", uşor accesibil ca obiect suport pentru pregătirea teoretică, recuperare și sprijinul unor sateliți aflați în poziții cheie pentru suport adițional al activităților practice, loisir şi al intervenţiilor de salvare (cabanele și refugiile montane).
În plus, varietatea de activități la care proiectul vine ca suport (de la cele de loisir, colaborarea cu unitățile de învățământ și pregătirea montaniarzilor pentru expediții internaționale complexe) cresc nivelul de incluziune, aducând împreună oameni din contexte diferite, dar cu interese similare.