
Comentariul autorului:
Totul începe cu un loc. Cu o memorie. Cu o dorință. În centrul acestui loc, se afla de fapt spațiul pe care omul îl numește acasă. Locuințele colective sunt o resursă importantă, cu mare potențial, de a (re)genera comunități, de a îmbunătăți relații interpersonale, modul de viață și de utilizare a spațiului public.
Proiectul aduce în prim plan importanța siturilor industriale dezafectate și necesitatea locuințelor colective în Cluj Napoca. Astfel, cele două idei se completează reciproc si apare ideea vitalizării spaţiilor „nedeterminate”, spații cu valoare memorială care astazi nu sunt puse în valoare. Acestea din urmă sunt spaţii lăsate în afara „timpului şi locului” în ceea ce priveşte împrejurimile lor urbane. Aceasta este de fapt o consecinţă a proceselor de dezindustrializare rapidă şi a oraşelor „în mişcare”.
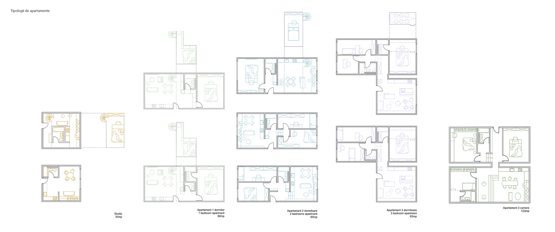
În jurul clădirii de locuințe colective, spațiul public apare ca nevoie a revitalizării zonei. După cum spune și Gehl, viața urbană e limitată atâta timp cât nu există posibilitatea fizică pentru desfașurarea ei. Astfel, intreg parterul este destinat unui public larg, adăpostind funcțiuni diverse pentru a anima zona, urmând ca nivelurile superioare a clădirilor să devină tot mai private, adăpostind locuinte. Diversitatea gamei de tipologii va atrage diferiti locuitori. Tipologiile sunt concepute pentru a oferi calități spațiale diferite de cele existente și se pot chiar permuta pentru a se potrivi diferitelor utilizări în timp. În cazul apartamentelor aflate în structurii existente, un nou strat de spațiu exterior este adăugat: fiecare apartament este prevăzut cu un balcon generos, o extensie a spațiului interior.
Se adoptă o gandire sustenabilă, astfel că păstrarea unor clădiri existente ajută atât la păstrarea vie a memoriei locului, însă sustine si procesul de reutilizare, reciclare sau reconvertire a materialelor rezultate din procesul de demolare al clădirilor. Proiectul se va focusa pe “circularitate”. Atenția este îndreptată înspre materiale existente și cele viitoare. Astfel, de exemplu, placile de beton care trebuie demolate din cadrul fostului uscător natural vor urma un proces de sfărâmare, care ulterior va permite refolosirea betoului sfărâmat ca și consolidare prin greutate a planșeului de CLT aflat în compoziția fiecărei unități locative. De asemenea, și alte materiale, precum sticla, cărămida sau metalul se pot reutiliza în forma lor curentă sau recicla.