
Comentariul autorului:
Obiectivul proiectului de diplomă este de a rezolva problematica locuirii prin realizarea unui ansamblu de locuințe sociale accesibile și de calitate. Având în vedere situația actuală a locuințelor sociale din România, scopul este de a oferi un mediu de viață adecvat tuturor indiviziilor, indiferent de statutul socio-economic sau de vârstă. Totodată proiectul vizează atât locuințele colective existente cât și spațiile neglijate dintre acestea, care alcătuiesc cartierul studiat. Astfel se propune restructurarea zonei pentru a răspunde nevoilor locuitorilor.
Proiectul este situat în Municipiul Câmpia Turzii, județul Cluj. Amplasamentul se află în partea sud-vestică a orașului, în proximitatea zonei centrale a cartierului. Fiind o parcelă de colț situl este mărginit de două artere. În momentul de față situl dispune de o fabrică, care nu are o poziție adecvată, fiind amplasată într-o zonă în care predomină locuințele. Consider că amplasamentul ales are o poziție favorabilă în oraș, astfel se evită segregarea socială care este des întâlnită în cazul locuințelor sociale din România.
Conceptul proiectului se bazează pe crearea unei compoziții care să medieze trecerea de la locuințele colective la locuințele unifamiliale. Astfel la stradă se creează un front continuu în relație cu blocurile existente, după care volumele se descompun pentru o mai bună încadrare în context.
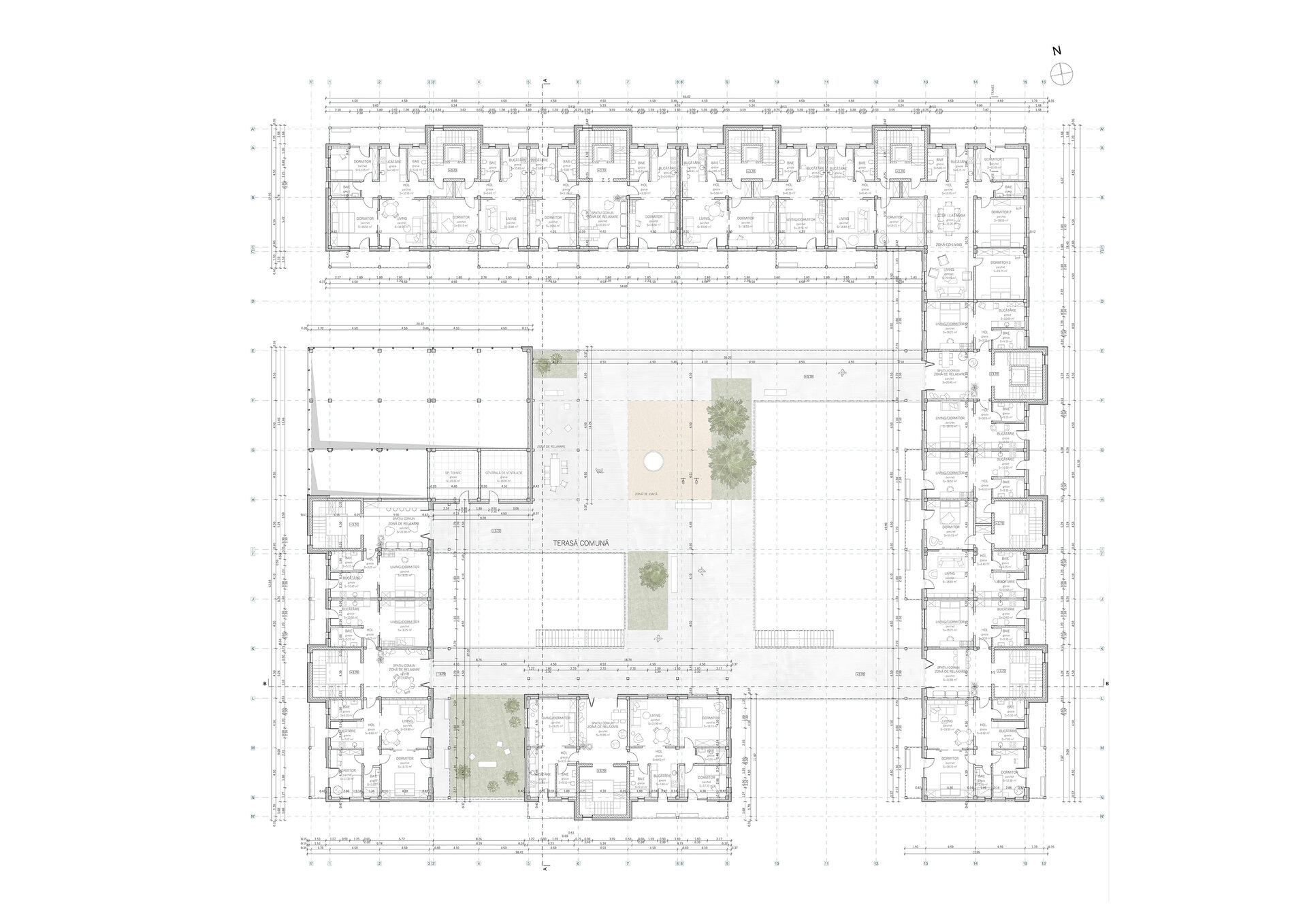
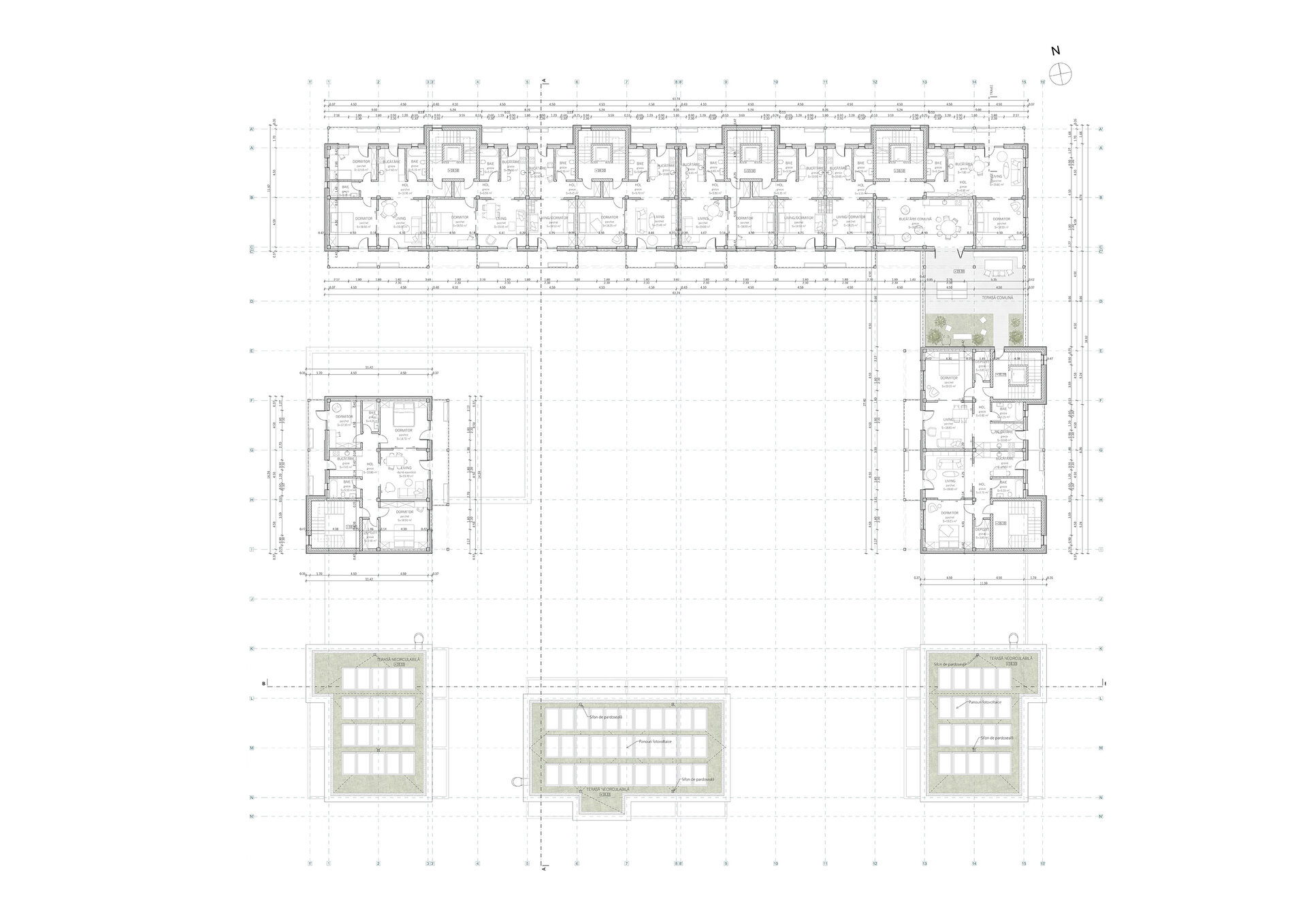
Proiectul oferă zone exterioare de socializare cu caractere diferite: promenada pietonală, curtea semi-publică, și terasele comune. Astfel am propus o ierarhizare a spațiilor exterioare pentru a lăsa loc manifestărilor de la individual la colectiv (grup de locatari și la comunitatea ansamblului și a vecinilor).
La parterul clădiri, către stradă se propun spații comerciale și diverse servicii, cu scopul de a elimina barierele sociale și de a spori interacțiunea între membrii comunității. Totodată ansamblul va îngloba și o cantină de ajutor social. Astfel toate grupurile sociale sunt încurajate să socializeze în zonele cu caracter public.
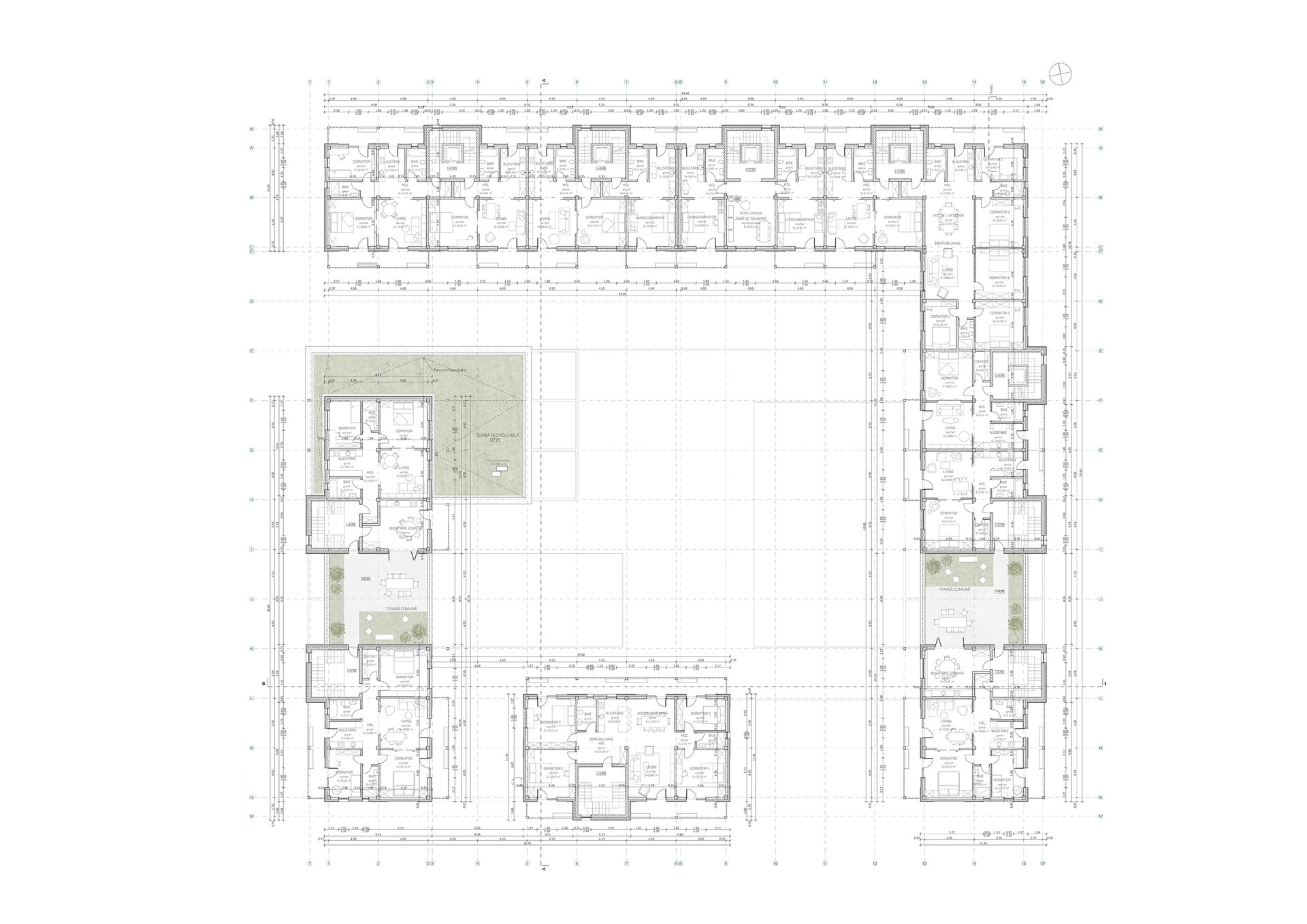
Etajele superioare sunt destinate locuirii. Ansamblul oferă o varietate de tipologii de apartamente, de la garsoniere până la apartamente de 4 camere și zone de co-living. Pentru o eficiență economică și energetică am optat pentru un sistem modular, o structură de tip grilă de 4,5x4,5 m. Apartamentele au o dublă orientare și sunt gândite din două componente, zonele private și zonele comune. Combinând aceste module pot forma apartamente de diferite tipologii. Flexibilitatea joacă un rol important în cazul ansamblului, astfel spațiile sunt dimensionate în așa fel încât ele pot fi adaptate schimbărilor și necesităților ulterioare. Clădirea poate să-și modifice funcțiunea în timp (din locuințe în clădire de birouri).
Cu scopul de a crea micro-comunități la fiecare etaj am propus o serie de spații comune sau terase. Acestea au rolul de a crea noi legături și de a oferi posibilitatea fiecărui individ de a se regăsi în unul dintre ele.
În cazul structurii am optat pentru o structură în cadre din lemn, iar închiderile sunt realizate din panouri din lemn prefabricate care eficientizează timpul de construcție, oferă o siguranță a structurii și o rezistență îndelungată a clădirii.
Ansamblul pune accent atât pe comunitate cât și pe durabilitate, astfel clădirea este gândită în așa fel încât să aibă un impact minim asupra mediului înconjurător, prin utilizarea materialelor sustenabile, crearea teraselor înierbate, amplasarea panourilor fotovoltaice și propunerea unui sistem de colectare a apelor pluviale.