
Comentariul autorului:
”Drumul Cărbunelui” reprezintă amprenta activităților industriale care au modelat, dezvoltat și transformat Banatul Montan, infrastructura feroviară fiind răspunsul la nevoia formării unei legături dintre punctele de exploatare minieră și fabrici. Amprenta ce a rămas vizibilă în urma acestor activități este reprezentată de un patrimoniu industrial variat, format din amenajări miniere, feroviare, hale, construcții și instalații industriale care să favorizeze producția. Valoarea patrimonială a acestor dovezi inovatoare ale trecutului este lăsată într-o lumină obscură, determinată de lipsa unei educații și de neînțelegerea trecutului istoric.
Infrastructură feroviară se prezintă drept o sursă viabilă de regenerare a ansamblurilor urbane aflate în regres, iar ansamblul feroviar Oravița-Anina, definit de caracteristicile sale estetice, brand-ul pe care și l-a format în timp, trecutul istoric, operele de artă inginerești și valoarea patrimonială reprezintă unul dintre cele mai bune exemple de infrastructuri care au un potențial semnificativ de transformare în adevărate atracții turistice.
Proiectul investighează potențialul de revitalizare a relației istorice dintre Oravița și Anina prin refuncționalizarea ansamblurilor de gări și a traseului feroviar care le leagă. Se concentrează pe valoarea culturală, industrială și istorică a căii ferate în vederea implementării unei soluții de reactivare traseului feroviar, bazată pe implementarea unei rute culturale patrimoniale, în care diversitatea, flexibilitatea, amprenta istorică și caracteristicile comunităților conturează direcțiile alese.
Se urmărește implementarea unor dispozitive de primire, coagulare și reprezentare urbană în cadrul punctelor terminus, Oravița și Anina, care să faciliteze dezvoltarea unui turism bazat pe cultura locului și patrimoniu industrial. Astfel, abordarea asupra punctelor terminus are la bază valorificarea patrimoniul imaterial, pe când cea asupra haltelor de pe traseu este axată asupra patrimoniului material. În această ordine de idei, construcțiile existente precum stații, clădiri de acar, cantoane, devin subiectul unei intervenții neintruzive, lângă care vin plasate noi funcțiuni care distribuie fluxul turiștilor.
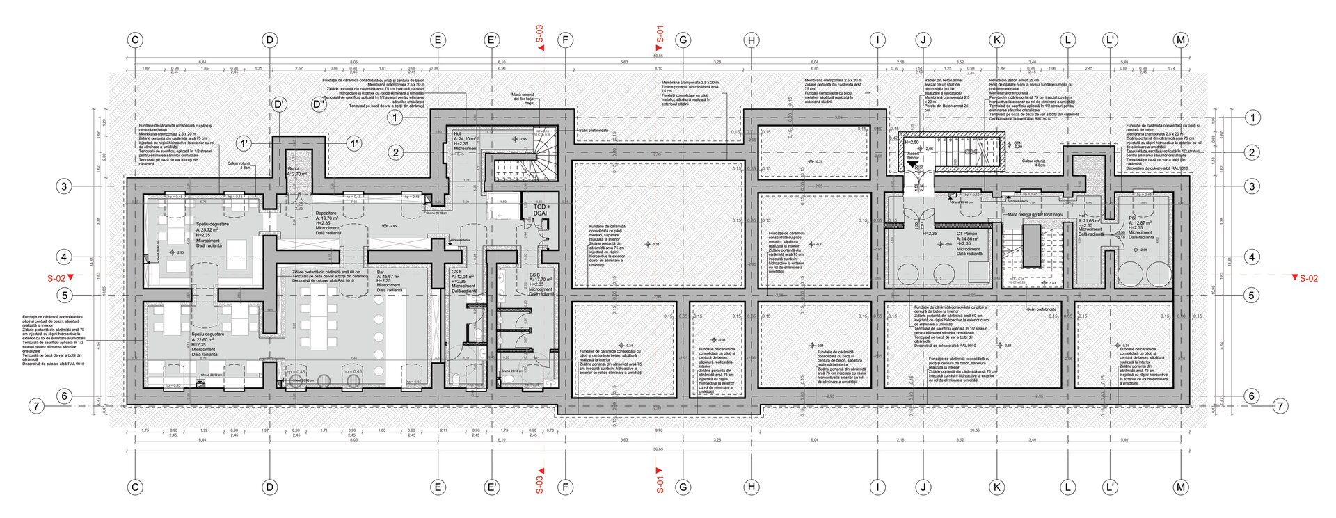
În cazul orașului Anina, principalul actor din spatele dezvoltării este industria minieră, orașul fiind de tip monoindustrial, având colonii muncitorești dezvoltate în terase în proximitatea puțurilor. Gara datează din 1891 și reprezintă poarta de intrare în cadrul sectorului cultural al așezării, o adevărată emblemă a timpurilor bune, apuse odată cu sistarea activităților industriale. Intervenția asupra ansamblului gării Anina urmărește transformarea lui întru-un nucleu de activități orientate atât spre turism, cât și spre comunitate, și contribuie activ la regenerarea orașului în stare de declin.
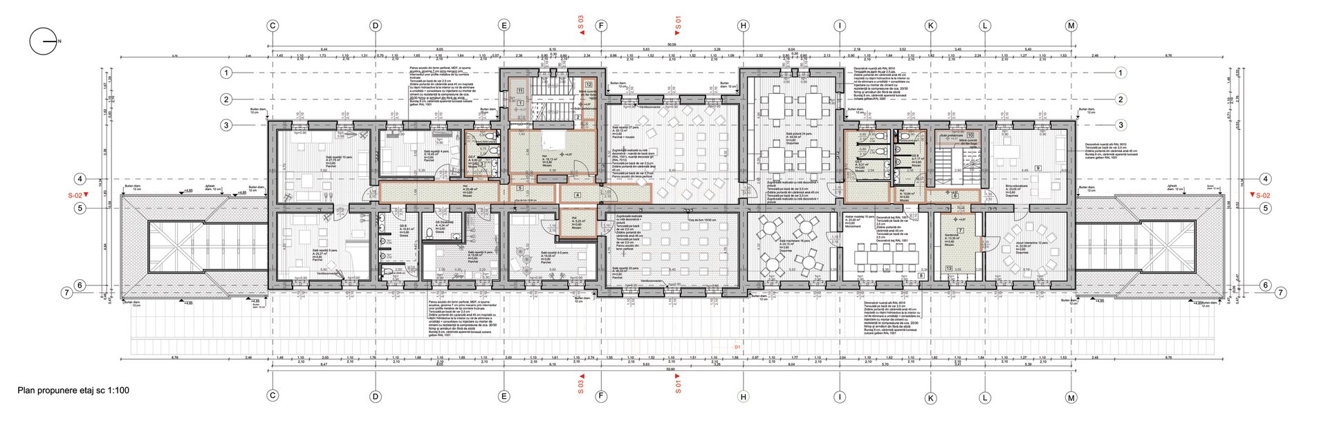
Dispozitivul de primire și reprezentare este format din: funcțiuni subordonate activității turistice și transportului (gară, bistro, punct de informare turistic, spațiu de degustare) și activități orientate spre dezvoltarea comunității și producerea de profit intern (spații de creație pentru artiști din domeniul muzical și copii, distilerie, piață agro-alimentară, distileria propusă în fosta magazie de mărfuri și parcul, care funcționează ca un nucleu de atracție pentru oameni de toate vârstele).
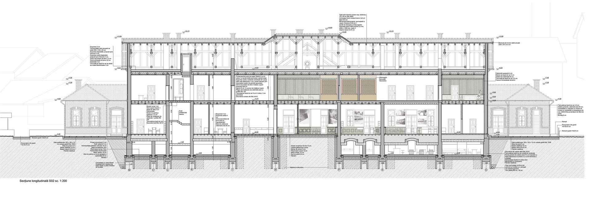
Conceptul de reutilizare adaptivă, care a stat la baza intervenției, are menirea de a revitaliza și redinamiza un monument aproape părăsit creând astfel un nou nucleu / „far” reprezentativ pentru comunitate. Intervenția este de tip referențial și pleacă de la înțelegerea clădirii și a straturilor care o definesc și calibrarea acțiunilor de reanimare a gazdei prin intervenții care privesc cu respect ceea ce a fost odată în clădire, fiind dependente de trecutul istoric, dar care lasă loc introducerii elementelor noi. Abordarea urmărește perpetuarea ADN-ului întregului ansamblu în viitor și adaptarea lui pentru generațiile viitoare.
Astfel, abordarea urmărește în cea mai mare parte reîntregirea imaginii istorice și adaptarea ei la nevoile spațial-funcționale ale noilor funcțiuni propuse. Programul arhitectural de gară impune reîntregirea imaginii și atmosferei specifice prin acțiuni de punere în valoare a urmelor trecului, de valorificare a atmosferei pierdute din cauza neglijenței, pe când funcțiunile introduse noi lasă loc creativității să pășească încet și ia forma unor interpretări ale trecutului, ale spațiului și atmosferei.
Spațiul din imediata proximitate al gării urmărește reîntregirea imaginii istorice prin formarea unui spațiu de primire dinamic în zona accesului dinspre oraș, al cărui formă se inspiră din planurile istorice.
Clădirea magaziei de mărfuri datează de la începutul secolului al XX-lea și este o clădire tip, parter, cu structură de lemn, specifică magaziilor CFR de depozitare și încărcare marfă, poziționată pe o platformă de piatră accesibilă prin intermediul unei rampe de încărcare. Odată cu încetarea activității industriale, a încetat și funcționarea clădirii.
Distileria, axată pe realizarea de țuică din prune și mere, creează spațiul perfect pentru conlucrarea cu agricultorii locali, în ideea în care aceștia aduc fructele culese din producția proprie și le vând distileriei. Astfel se formează o economie circulară de consum, locală, menită sa ajute la dezvoltarea orașului.
Intervenția urmărește, de asemenea, crearea unui parc tematic, care să joace rolul de susținător a activităților sau evenimentelor de societate susținute în aer liber. Acesta deține un punct principal, o scenă asociată unui amfiteatru orientat spre ansamblul gării, destinată în special Fanfarei Anina și a celorlalte cluburi de muzică și dans. Totodată, parcul ascunde o serie de iazuri în jurul cărora se conturează locuri de stat, menite să ofere comunității spații liniștite, de contemplare, de întâlnire în grupuri restrânse. Pentru întări interacțiunea cu natura se propune plantarea căpșunilor și a arbuștilor fructiferi (zmeură, afine, porumbițe), în special pentru copii.
Conceptul peisager are la bază o dihotomie, a fii văzut și a te ascunde de ochii privitorului. Astfel parcul întrunește atât nevoile comunității de exprimare liberă, cât și cele ale individului de privatizare și păstrarea spațiului personal.
În cadrul intervenției asupra clădirilor se propun o serie de soluții pentru problemele identificate în urma analizei degradărilor precum consolidări structurale, dezumidificări, introducerea drenurilor, înlocuirea materialelor degradate, consolidarea tâmplăriei istorice, întregirea finisajelor, introducerea instalațiilor și a echipamentelor specifice accesibilității persoanelor cu dizabilități.
Ansamblul a fost tratat ca un tot unitar, funcțiunile interioare și exterioare fiind interconectate, susținându-se unele pe celelalte, și angrenând interacțiunea intergenerațională.