
Comentariul autorului:
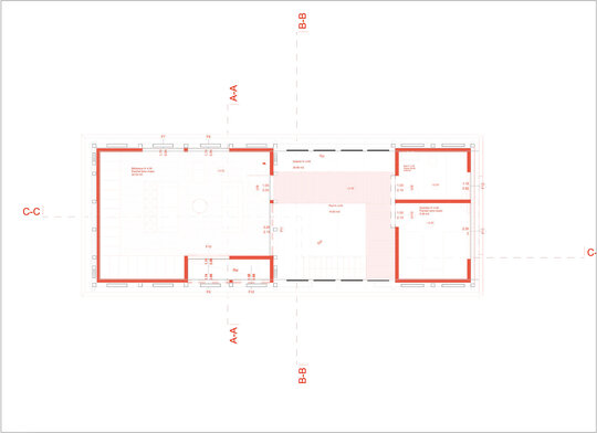
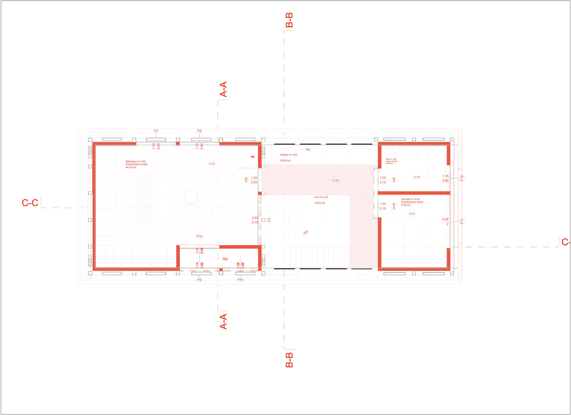
Cele mai avansate clădiri ale fermelor țărănești, sunt șurele. In țara noastră, unde se ocupa cu producerea fânului se cristalizează variația al mai multor forme, dar bazate pe aceeași principii de structura, fundamentul fiind compus din pereți din lemn in combinație cu piatra de talie , rezistența fiind structura de lemn şi de cele mai multe ori acoperit cu țigla. Această şură se află in localitatea Eremitu in județul Mureș, intre orașul Târgu Mureș - Sovata, si aparține proprietarului preotului catolic din sat. Șura se află pe un teren plin de vegetație si aparține si o bogata livada de fructe. Datorita faptului ca zona este bogat in păduri si piatră ,domina prelucrarea lemnului ca meserie si de asemenea se folosește lemnul, ca material constructiv de proveniența locală. Principalul caracteristic al șurelor sunt ‘’sisteme de sertare’’ al căror scânduri din lemn sunt demontabile iar poarta șurei funcționează ca un parasolar contemporan de astăzi. Beneficiarul ,preotul catolic , având in vedere ca susține o relație prietenoasă cu mai multe familii din străinătate (Elveția, Germania, Ungaria. Etc.), care vin sa viziteze zona şi să cunoască tradiția acestuia, a dorit punerea in valorare șurei prin reconversia şi transformarea acestuia într-o locuința modernă, dar păstrând aspectul tradițional. Proiectul combina flexibilitatea volumetriei si transparența obținuta prin păstrarea structurii din lemn. Anvelopanta clădirii este alcătuită de aceasta ‘’sistem de sertare’’(Finisajul exterior, compus din scânduri de lemn orizontal - tratat cu o pelicula impermeabila, închisa la culoare,) care permite luminii naturale sa pătrundă in interior, asigurând in aceeași timp si intimitatea pentru locatari. Odată cu lăsarea serii, luminile de la interior se văd printre scânduri si prin ferestrele mari al clădirii accentuând structura si spatiile interioare. Intervenția contemporană încearcă sa mențină un echilibru intre atmosfera originală al șurei şi influențele contemporane, obținând o estetică minimalistă care este foarte potrivită cu stilul din ziua de azi. Vechiul pod a fost amenajat si transformat şi lăsat aparent, aproape integral finisat in alb, sugerând vizual mărirea dimensiunilor interioare. Șura are două niveluri, la parter au fost amenajate bucătăria, zona de luat masa, zona de zi, spațiul tehnic şi camera de dormitor pentru preot cu baia proprie. În timp ce la mansardă sunt biblioteca şi o cameră pentru musafiri cu baie proprie. Livingul se află în spațiul central creat, asigura prin ferestre de mari dimensiuni o vedere panoramică şi o legătură directa cu grădina şi livada. Datorita degradării materialului de acoperire, țigla a fost recondiționat, făcut de un meșter local care se ocupă cu aceasta meserie. Locuirea adaugă o noua dimensiune al vechiului șură, prin completarea acestuia cu mai multe spații dotat cu toate echipamentele si utilitățile traiului modern si tradițional.