
Comentariul autorului:
Conceptul casei este inspirat de formele de relief din jurul amplasamentului situat la poalele Muntelui Tâmpa, pe Dealului Melcilor - de unde și denumirea de „Casa Melc” - dar și de solicitarea beneficiarului de a realiza în casă o scară interioară deschisă de formă „rotundă”.
Casa este așezată pe un versant despădurit cu expunere sudică al dealului, la limita din amonte a zonei construibile, și beneficiază de o vedere panoramică descendenta, amplă, de 180 de grade asupra unei părți a orașului.
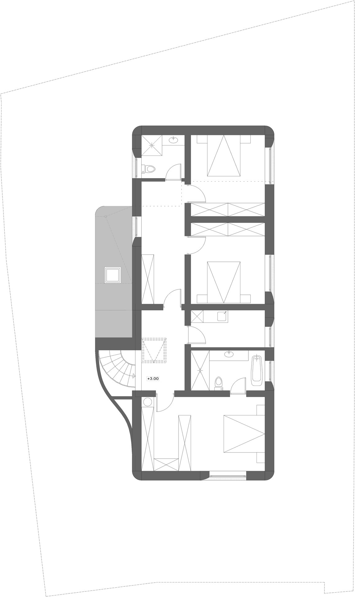
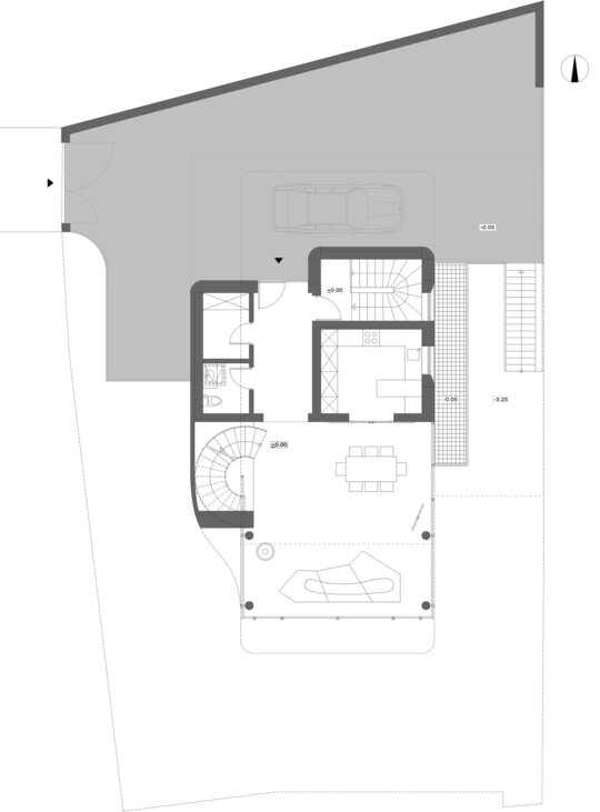
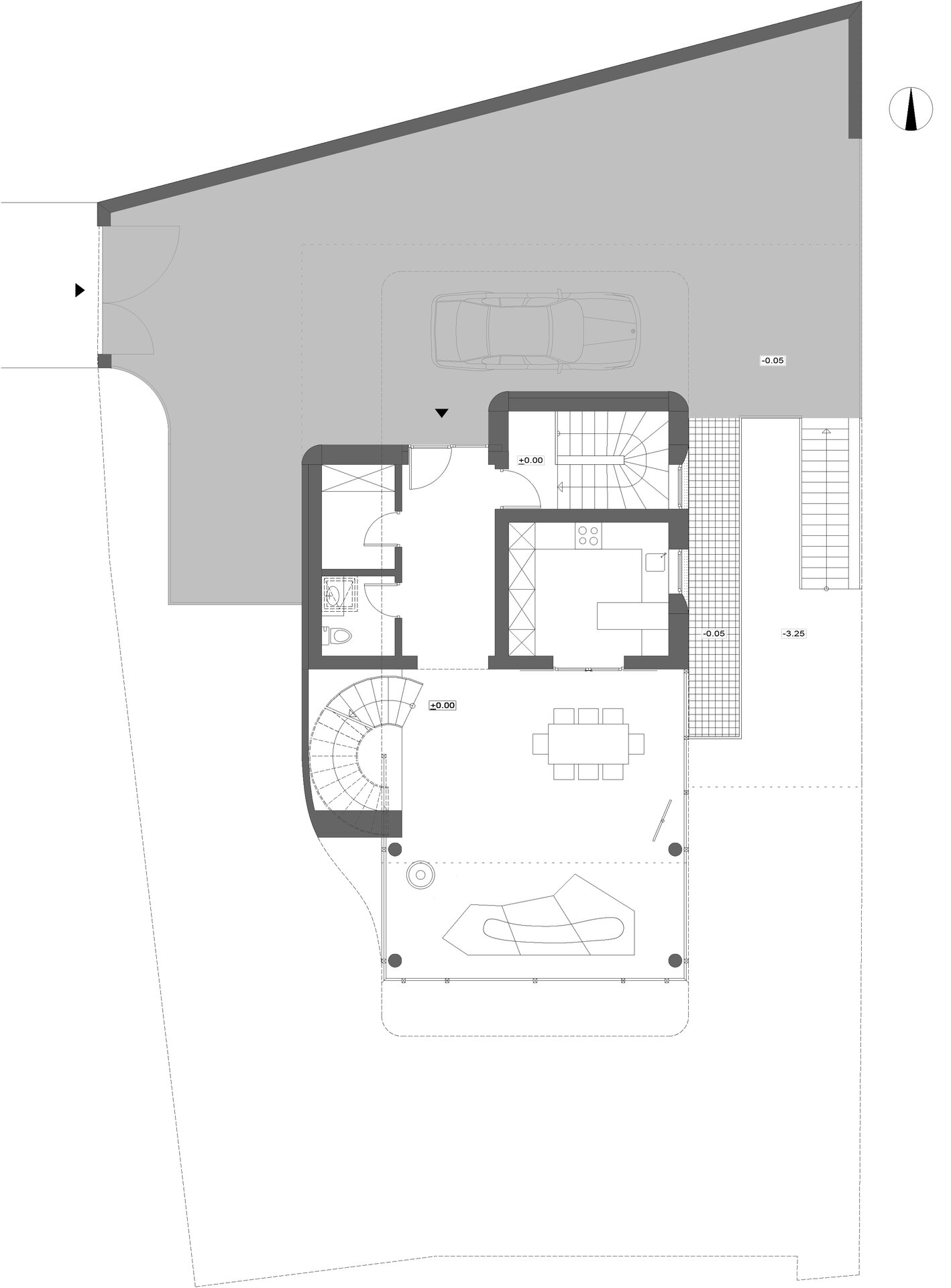
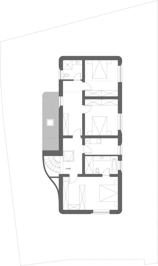
Alcătuirea volumetrică a casei relevă la nivelul demisolului un soclu solid, prismatic, bine încastrat în deal, utilizat drept suport pentru volumul superior având linii fluide-organice ce sugerează o mișcare de învăluire și creștere, asemeni unei cochilii de melc, care cuprinde nivelurile superioare ale parterului și etajului, împreună cu circulația pe verticală care le leagă.
Aceasta abordare cu forme fluid-organice a volumului superior se manifestă în primul rând la exterior, fiind evidentă mai ales la anvelopa care îmbracă casa scărilor dar și prin utilizarea de forme rotunjite la colțurile casei și la cadrele ferestrelor.
În același timp am urmărit ca formele fluid-organice să se facă simțite și în interiorul casei, prin scara semicirculară deschisă către living și expunerea formelor anvelopei exterioare, prin utilizarea de stâlpi cu secțiune rotundă, precum și prin liniile curbe de la nivelul tavanului suspendat de la parter, din zona camerei de zi.
Finisajele exterioare au fost alese astfel încât să susțină conceptul de alcătuirea volumetrica a casei prin utilizarea de materiale contrastante din punct de vedere cromatic și al texturii.
Astfel, volumul soclului este placat cu piatră naturală cioplită de culoare verde închis, tăiată în plăci înguste așezate în asize orizontale, care par să se nască din terenul natural, in timp ce volumul superior este finisat cu tencuială decorativă albă și o textură fină, care permite jocului de lumini și umbre să evidențieze formele fluid-organice.
Între aceste două volume, spre sud, se interpune registrul transparent al vitrajului ce mărginește pe trei laturi camera de zi.
Volumele descrise au o amprentă în creștere de la un nivel la altul, ceea ce generează o succesiune de console atât spre sud, cat si spre nord, în zona intrării în casă, generând o dinamică suplimentară ansamblului, care impresionează pe orice privitor.