
Comentariul autorului:
Casa CC se află în zona subcarpatică a județului Prahova,
în care încă mai găsești liniștea rurală și a pădurilor seculare de stejar. Locuința pentru o familie care a dorit să se mute de la oraș la sat ocupă un teren alungit, cu vecini de ambele părți. Parcela are ieșire la strada principală a satului și este delimitată pe partea opusă de pădurea din jurul pârâului Mislea.
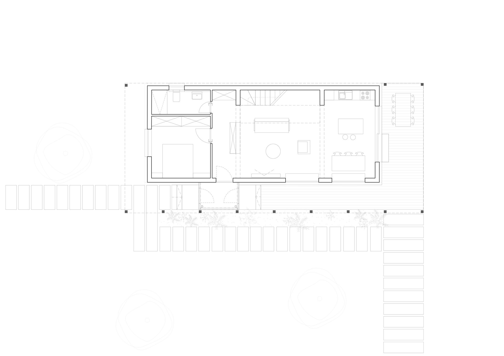
Locuința este retrasă față de stradă, oferind astfel o mai
bună intimitate familiei și o prezență mai discretă în raport cu construitul existent. Către grădină, construcția se
deschide printr-o terasă pe dubla înălțime, lăsând astfel
loc și zonei de lucru de la etaj să privească spre natură.
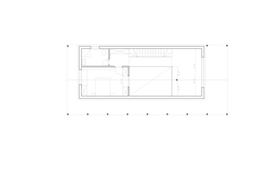
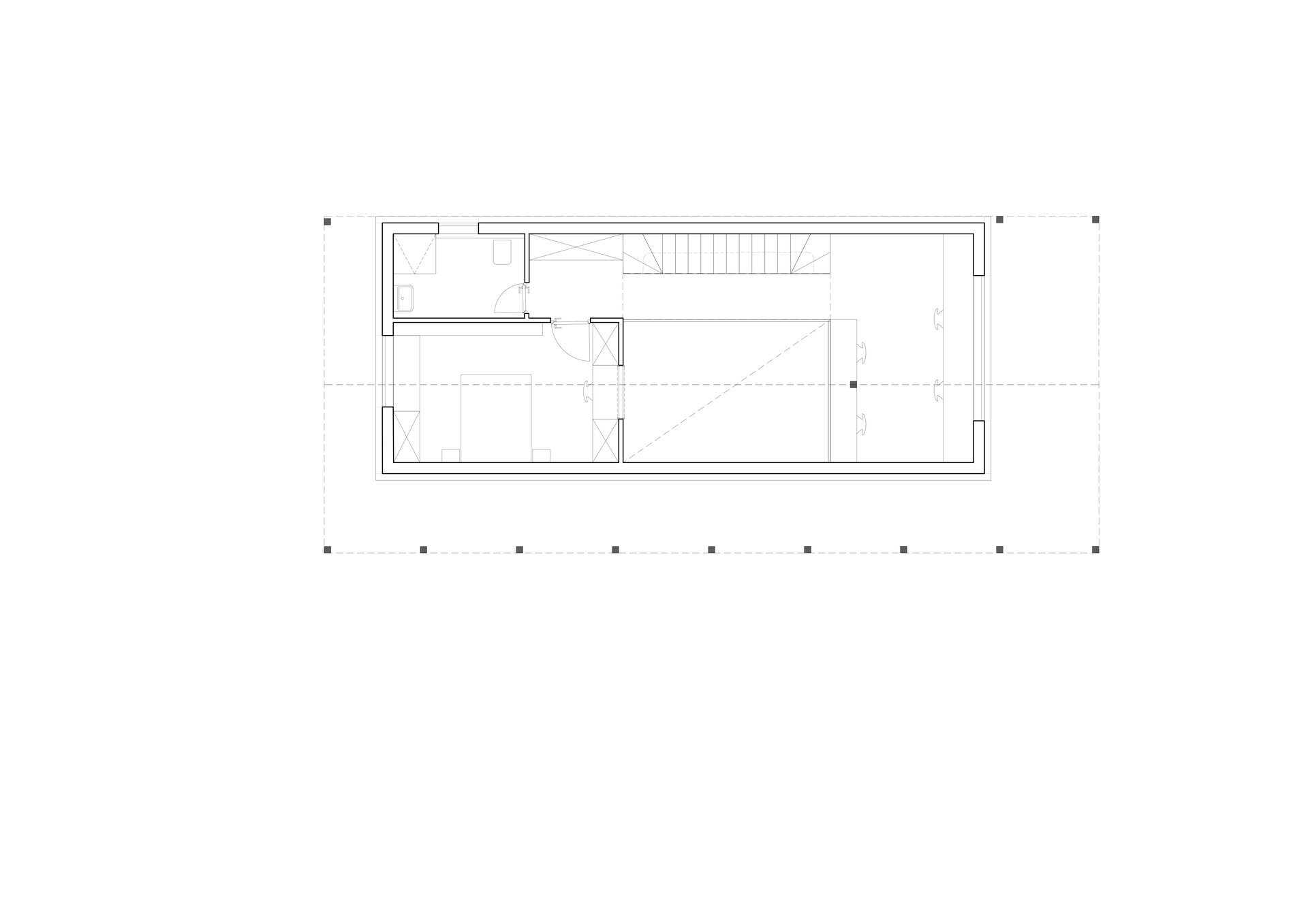
Accesul în casă se face prin porticul înalt și ulterior printr-o cutie de sticlă strecurată între stâlpii verandei și perete. Înălțimea porticului și a terasei longitudinale a casei anunță într-un fel spațiul pe dublă înălțime al zonei de zi, accentuând caracterul de înveliș protector, de „carapace” în jurul locuirii. Spațiile de la etaj sunt legate printro pasarelă metalică, ce face legătura între zona de noapte și cea de lucru/hobby, traseele locuirii fiind astfel vizibile din fiecare colț al casei.