
Comentariul autorului:
Amplasamentul proiectului se află situat în municipiul Cluj-Napoca, cartierul Iris, pe strada Odobești. In ultimii ani, cartierul Iris a trecut printr-un amplu proces de transformare din zonă cu caracter industrial in zonă cu caracter rezidențial, prin construirea de ansambluri rezidențiale cu locuințe unifamiliale, semicolective sau colective pe terenurile vechiilor locații industriale desființate. Dezvoltarea zonei este însă inegală din punct de vedere al procentului de locuințe noi și cel al dotărilor necesare pentru noul caracter rezidențial al zonei. In zonă există un centru comercial, magazine, bănci, săli de fitness, etc. si un deficit în materie de spații de învățământ, îngrijire și supraveghere a copiilor.
In consecință, pe o parcelă de 5.262,00 mp, terenul aferent unui fost atelier de reparații pentru utilajele agicole care deserveau zonele de livezi din zonă, se propune amenajarea unui centru educațional - recreațional pentru copii. O fâsie de teren in suprafață totală de 214,00 mp a fost dezmembrată pentru a permite realizarea unui profil transversal de 16 m pentru strada Odobești. Tema de proiectare prevedea demolarea construcțiilor aflate într-o stare avansată de degradare, refuncionalizarea clădirilor aflate in stare bună, amenajarea unui mic parc de aventură, amenajarea unei parcări pentru 10 autoturisme, 1 loc de parcare dotat cu stație pentru încărcarea mașinilor electrice, amenajarea a 5 locuri de parcare pentru biciclete, refacerea împrejmuirii și amenajarea întregii incinte cu cât mai multe plante si suprafețe verzi.
Fiind un spațiu destinat copiilor, conceptul de la care s-a pornit a fost acela al unei corăbii “moderne” iar terasa generoasă de la nivelul etajului 1 este o reinterpretare a punții acesteia. Pentru a accentua și mai mult idea de corabie s-a propus realizarea unui riflaj de lemn care sugerează în plan silueta unei corăbii si care asigură umbrirea suprafețelor vitrate mari de la nivelul parterului. Etajul 1 (retras) a fost gândit ca un “centru de comandă”, iar golurile de la nivelul etajului 1 sunt de forma rotundă, similare cu hublourile corăbiilor.
Pe teren a existat un număr de 4 corpuri de clădire aflate în diferite stadii de degradare. În urma expertizării tehnice si după conturarea necesarului de spații din tema de proiectare, s-a propus demolarea totală a 3 dintre corpurile de clădire existente pe amplasament si demolarea partială și extinderea corpului 4 de clădire care va adăposti spațiile interioare necesare pentru desfășurarea activității din centrul educațional - recreațional.
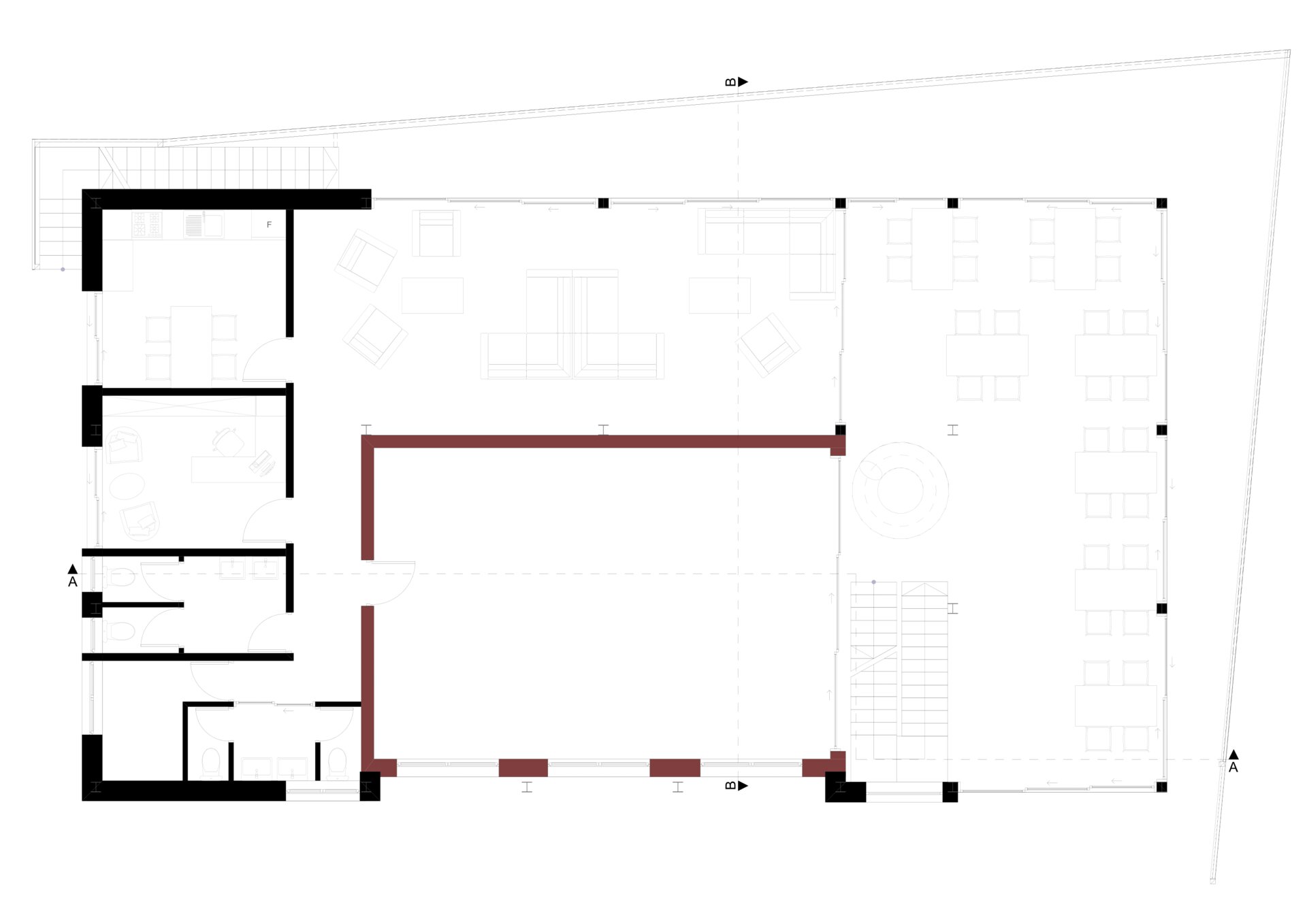
Corpul C4 avea suprafața construită de 153,30 mp, regimul de înălțime parter si suprafața desfășurată de 153,30 mp. Prin proiect s-a propus demolarea zonei nordice, vestice și păstrarea zonei centrale (incăperea atelierului de reparații auto). Extinderea propusă s-a realizat pe laturile de vest, nord și est ale volumului central păstrat.
La nivelul parterului a fost amenajată o zonă administrativă care cuprinde grupurile sanitare, un birou administrativ, un spațiu tehnic si un oficiu. Zona centrală (fostul atelier auto) a fost transformat intr-un spațiu multifunctional unde a fost amenajată zona principală de interacțiune pentru copii. In zona nordică s-a amenajat o sala unde părinții pot socializa si pot urmării activitatea copiilor in zona exteriora. Peretele nordic al clădirii este realizat integral din sticlă pentru a permite o legătura facila între spațiile interioare si cele exterioare. In partea estică a fost amenajată o zonă cu mese pentru copii unde prin modul de dispunere al mobilierului se poate lua masa sau se pot ține momentele educaționale. O terasă generoasă pe latura de est si nord, cu lățimea de 3 metri face trecerea intre spațiile interioare si spațiile exterioare.
La nivelul etajului retras a fost amenajată o terasă mare cu o suprafața de 210,00 mp si orientare nord – est. De pe această terasă se pot observa toate amenajările de la nivelul solului și anume o instalație de tiroliană, un perete de cățărare si 2 tobogane exterioare. Aici a fost amenajat al doilea spațiu multifuncțional al clădirii cu acces direct la terasa care îl înconjoară la nord și est. Deasupra etajului 1 a fost amenajată o terasă circulabilă care oferă o vedere de 360 grade asupra împrejumirilor. Balustrada de la această terasă a fost realizată din sticlă securizată pentru a nu limita perceperea împrejurimilor. Clădirea poate fi accesată atat prin intermediul scărilor interioare cât si prin intermediul scărilor exterioare care fac legătura între curte și terasa circulabilă de deasupra etajului 1.
Structura clădirii a fost realizată din stalpi și grinzi metalice și plăci de beton armat turnate pe cofraje de tablă cutată. La nivelul spațiilor interioare s-a optat pentru un design industrial minimalist, prin păstrarea aparentă a structurii de rezistență si folosirea pardoselilor de beton aparent. Pentru partea de instalații (electrice si HVAC) s-a optat de asemenea pentru montarea lor aparentă pe tabla cutată de la tavane. Pe spațiile libere neconstruire sau neamenajate cu alei sau platforme au fost plantate vegetație de tuia si arbuști de înălțime mică si mijlocie si foarte multe suprafețe cu gazon.
La nivelul întregii parcele suprafața construită rezultată este de 239,30 mp rezultând astfel un Procent de Ocupare al Terenului de 4,74%. Suprafața desfășurată rezultată este de 324,50 mp rezultând astfel un Coeficient de Utilizare al Terenului de 0,064. Aleile pietonale si cele carosabile însumează 750,10 mp iar spațiile verzi un total de 4.058,60 mp.