
Comentariul autorului:
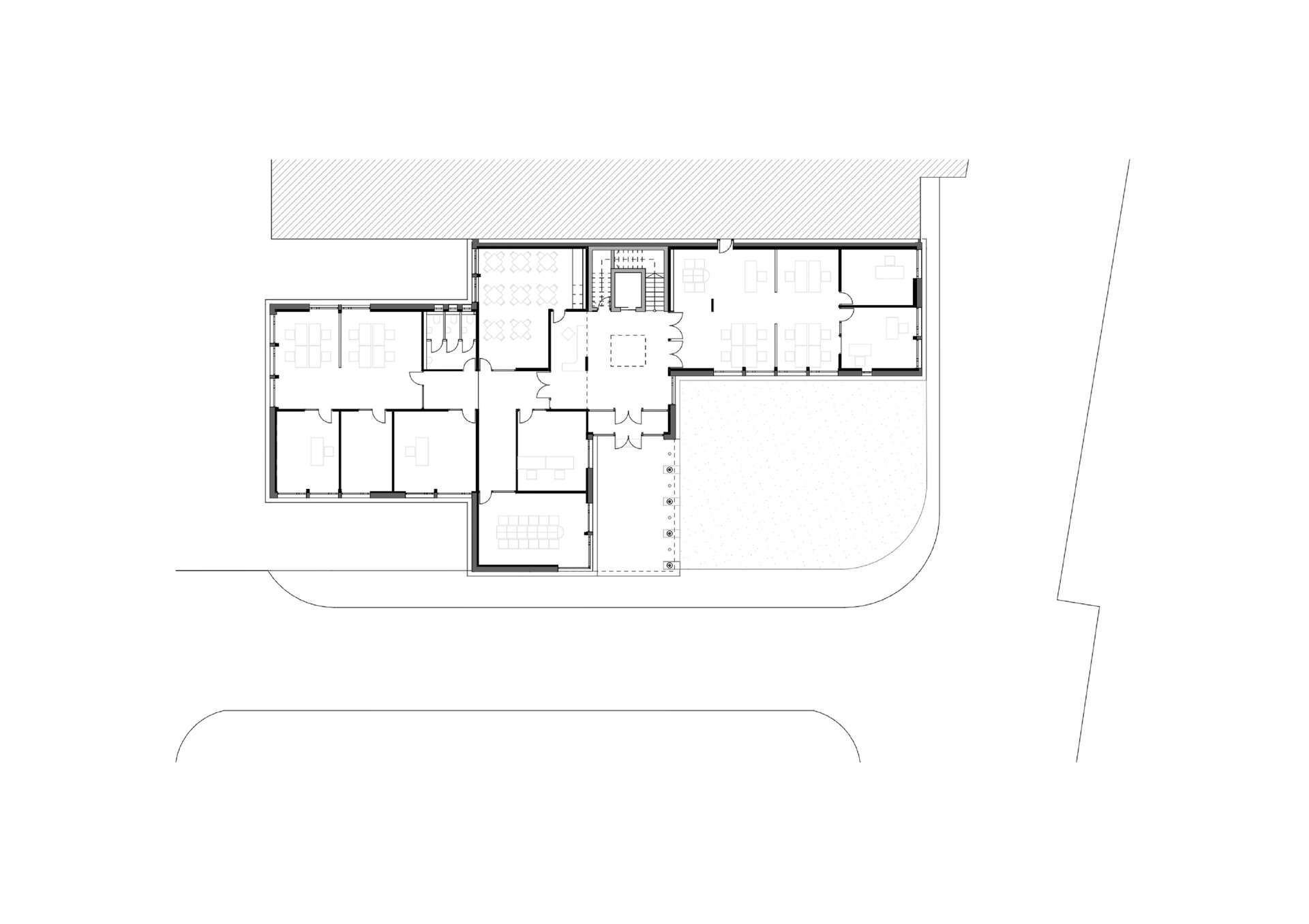
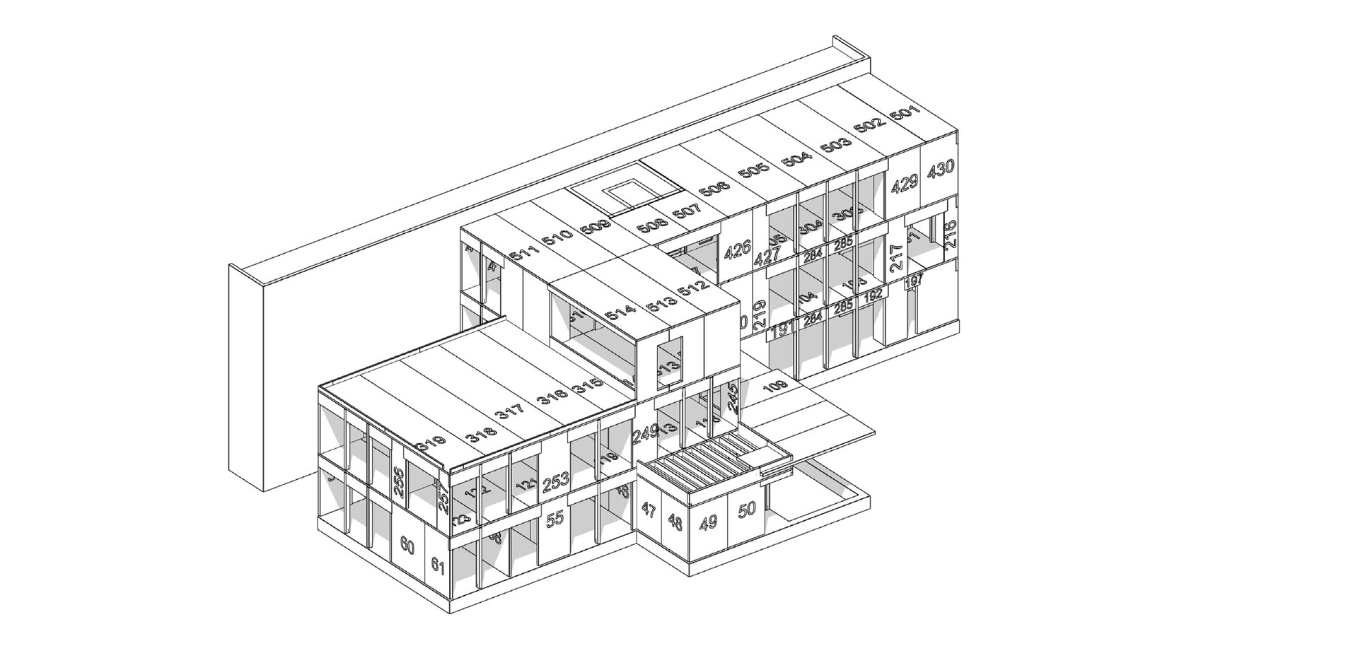
Beneficiarul deține mai multe firme, ale căror birouri funcționau răspândite în incinta industrială din localitatea rurală. S-a concretizat dorința de a construi o singură clădire de birouri, care să ofere spații suficiente pentru toți colegii și persoanele din conducere. De la bun început, echipa de proiectare a propus ideea creerii unui spațiu de lucru responsabil față de mediu și față de resursele naturale. În acest sens, clientul, receptiv și foarte implicat în proiect, a participat și la excursia de studiu la o fabrică CLT din Austria. Din punct de vedere al volumetriei, întenția propunerii a fost să acopere și să se lipească de frontonul halei care se afla în fața accesului în incintă. Modul de lucru colaborativ al firmelor și alăturarea tuturor spațiilor de lucru într-o singură clădire a presupus o organizare spațială tentaculară, în care holurile și circulațiile de mari dimensiuni leagă între ele fluid birouri, spații de discuții, întâlnire și de recreere. Toate încăperile au suprafețe și înălțimi interioare generoase, deschise vizual către vecinătăți.
Într-un timp foarte scurt, peste infrastructura din beton armat a fost ridicată suprastructura de pereți din CLT. Aceasta a fost minuțios proiectată și prefabricată, iar la fața locului s-a realizat doar asamblarea componentelor. O singură scară de beton monolit leagă cele trei niveluri și răspunde și la exigențele de siguranță împotriva focului. Pentru o citire și o parcurgere clară, atât a exteriorului, cât și a interiorului clădirii compuse din mai multe volume, s-a optat pentru modularea suprastructurii – aspect care se poate observa în cazul structurii suple de susținere a copertinei de acces, sau a raportului plin-gol al fațadelor, atent corelat cu distribuția grinzilor interioare. Închiderea fațadelor este realizată din materiale durabile: placaj ceramic, tâmplării de aluminiu, structură metalică și detalii din tablă titan-zinc. În interior, elementele de construcție rămân vizibile, cu suprafețe brute: grinzi, stâlpi și panouri din lemn lamelar, volumul scării din beton aparent. Acestea sunt completate de alte finisaje de calitate: placaje din panouri furniruite, pardoseală microterrazzo, tâmplării din aluminiu și oțel.
Ansamblul clădirii se încadrează în standardele de casă pasivă. Acesta este susținut de panourile fotovoltaice dispuse pe hala adiacentă, de sistemul de ventilație dotat cu recuperator de energie și pompe de căldură. Clădirea este dotată și cu un sistem inteligent și eficient de iluminare artificială, respectiv de umbrire cu storuri exterioare, care acționează conform condițiilor de lumină. Golurile exterioare de înălțimea nivelurilor oferă o iluminare naturală suficientă pentru interior și o priveliște deosebită de la etajele superioare și de pe terasa acoperită.