
Comentariul autorului:
Prezenta propunere nu este neapărat un proiect vizionar privind noile dezvoltări urbanistice şi noile răspunsuri la provocările arhitecturale, însă poate deveni o atitudine generală - încurajată prin reglementările urbanistice- privind upcyclingul fondului construit în cazul contrucţiilor cu valoare ambientală sau arhitecturală, neclasate ca monument istoric şi chiar în cazul intervenţiilor în zonele construite protejate – acestea din urmă reprezentând poate cel mai periclitat segment al moştenirii culturale construite.
Propunerea se face pe fondul discuţiilor legate de Noua Cartă de la Leipzig (un set de principii menit să ducă la creșterea durabilității, rezilienței și a atitudinii incluzive în orașele europene) şi a tendinţelor internaţionale privind fondul construit existent, în speţă pe fondul în spiritul Declaraţiei de la Leeuwarden, care vede potenţialul de îmbunătăţire a calităţii vieţii în reutilizarea adaptivă a patrimoniului construit.
Viziunea se bazează pe trei idei majore, şi anume:
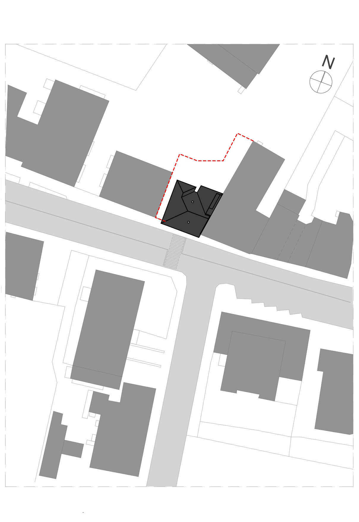
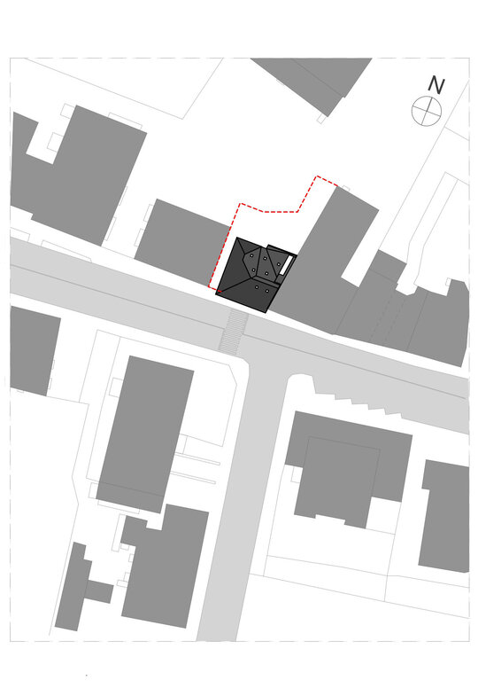
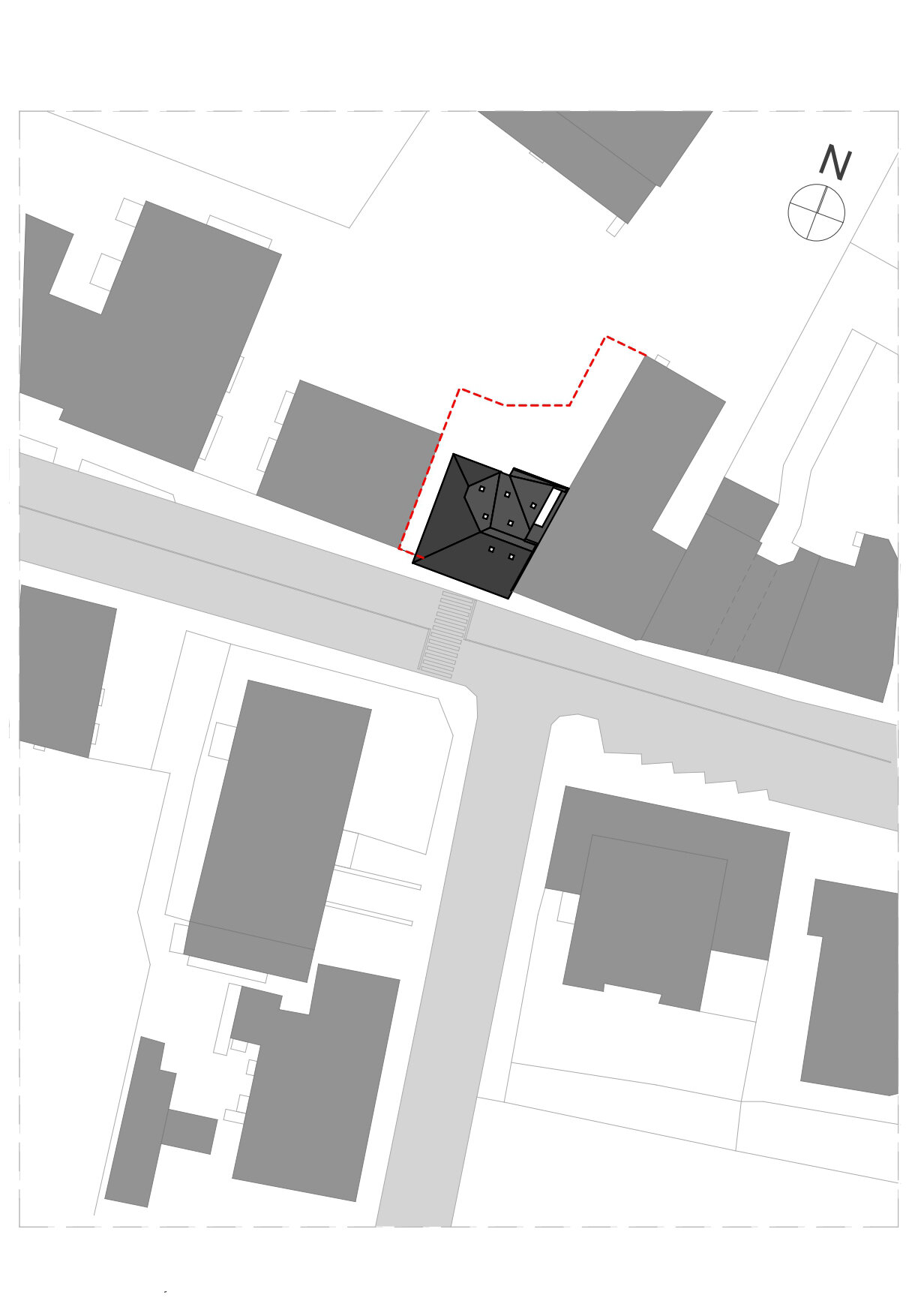
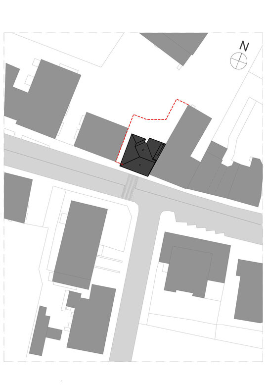
1. Intervenţia să nu fie vizibilă din domeniul public, în speţă de pe strada pe care se află imobilul vizat (dar pe cât posibil şi din alte unghiuri de vedere din care din spaţiul public, de exemplu de pe străzile vecine se deschid direcţii de vedere către imobil). O asemenea intervenţie ar trebui să rămână nedetectabilă, cum sunt neobservabile noile generaţii de avione militare de nu sunt vizibile pe radar ;
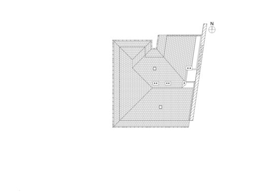
2. Din spaţiul curţii, intervenţia să ocupe cât mai puţin din „cer”, respectiv să nu reducă însorirea vecinătăţilor. Totodată să fie astfel realizată, încât să fie distinctibilă partea nouă adăugată, prin contrast;
3. Intervenţia să fie reversibilă.
Ilustrarea de temă, realizată pe structură metalică demontabilă demonstrează câştigarea unei suprafeţe locuibile mai mari şi mult mai practic utilizabile decât spaţiul ce ar fi rezultat în cazul mansardărilor tradiţionale în interiorul acoperişurilor existente. Deci în cazul îndesirilor, poate contribui la creşterea calităţii vieţii urbane.
În practica cotidiană întâlnesc din ce în ce mai frecvent următoarea situaţie: planurile urbanistice pentru zonele construite protejate nu specifică care sunt construcţiile care nu pot fi modificate şi vor trebui păstrate ca atare, care sunt construcţiile care au părţi valoroase ce nu pot fi modificate, dar în rest pot fi modificate şi care sunt construcţiile care pot fi modificate, sau chiar este indicată demolarea lor. Problema dealtfel tranşantă este rezolvată superficial prin solicitarea unui studiu istoric, care dar de regulă (şi din păcate) ajunge la concluzia că imobilul vizat de studiu nu întruneşte calităţile clasării ca monument istorc, deci poate fi demolată. Şi astfel dispar pe rând construcţiile care singur nu, dar împreună reuşeau să asigure un caracter aparte unui loc / unei zone. Un proverb ungures spune că mai multe gâşte la un loc fac cât un porc. Aceste demolări „comandate” vin din partea presiunii imobiliare, în care deciziile se iau din perspectiva măririi suprafeţelor locuibile şi cu construcţii demolate, liniştind conştiinţa proiectanţilor „profesionişti” cu constatarea că „gâsca asta nu e un porc –deci casa nu are valoare, poate fi demolată- şi oricum, mai sunt suficiente gâşte în zonă.” Dar disparând una câte una, nu mai rămânem cu nimic din cireada de gâscă a proverbului...
Consider că atractivitatea zonelor construite protejate prin tipul de intervenţie propusă va creşte, permiţând o mărire a suprafeţelor locuibile, fără pierderea valorilor ambientale/ arhitecturale / urbanistice din zona vizată şi propunerea poate fi o cale de salvare în cazul fondului construit moştenit – care încetul cu încetul va fi apreciată şi de investitorii care văd în el doar un obstacol de trecut în calea visurilor.
„Viziunea” trebuie cumva să fie susţinută şi de suportul tehnologic. În conformanţă cu prevederile PSI privind gradul de rezistenţă la foc, structurile metalice pot permite asemenea intervenţii, în care existe şi problematica separării din punctul de vedere la comportării la foc al podului necirculabil de mansarda locuită. Evitarea şantierelor lungi în zonele de locuit conduce la prefabricarea pe cât posibilă a intervenţiei. Scanarea cu laser în cadrul releveelor conduce la o precizie şi predictibilitate nemaiîntâlnită până în zilele noastre. Ridicare pieselor metalice implică o macara, de preferinţă cât mai mică pentru a reduce costurile. Deci e nevoie de o optimizare a structurii.
O asemenea abordare din perspectiva avioanelor nedetectabile poate fi dusă la capăt şi în interior, cu vârf şi îndesat: suprafeţele cutate din interior pot fi puntea de comandă a unei nave spaţiale, cu iluminatul artificial realizat cu leduri reprezentând muchiile, iar cea naturală cu lominatoare amplasate în zona mediană a suprafeţelor cutate. Ducând maideparte idea, scara de acces la mansardă poate fi scara uunui OZN care tocmai se lasă în jos...
Trecând de glumă: cele propuse probabil vor schimba caracterul zonei văzut de sus, şi ar merita ca noua imagine să fie una valoroasă. Dar din spaţiul străzii, poate zonele construite protejate vor supravieţui...