
Comentariul autorului:
Proiectul After School reprezintă o platformă dedicată creșterii și dezvoltării holistice a copiilor, fiind conceput ca un spațiu în care cunoașterea, creativitatea și joaca se îmbină într-un cadru prietenos și stimulant.
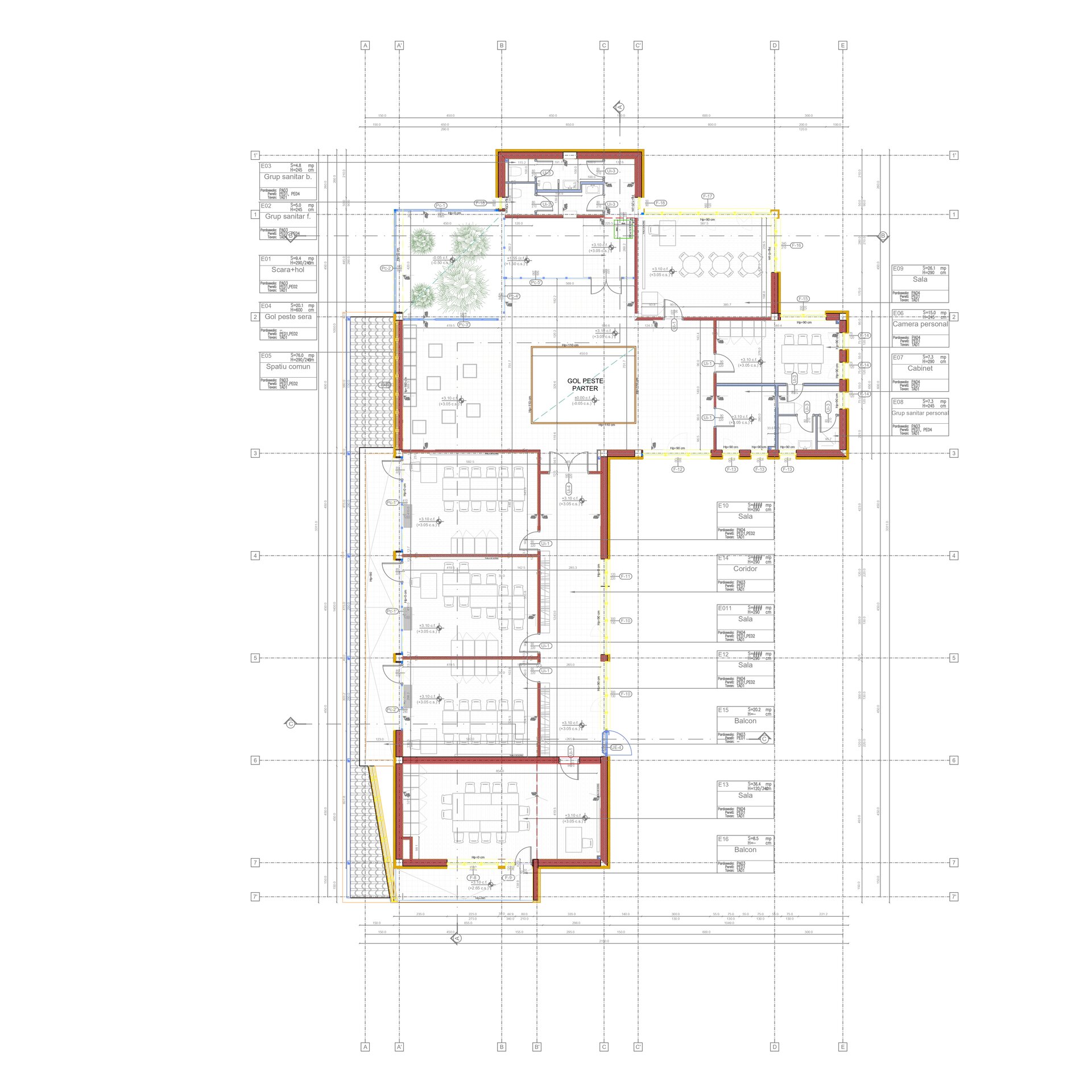
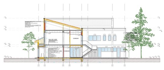
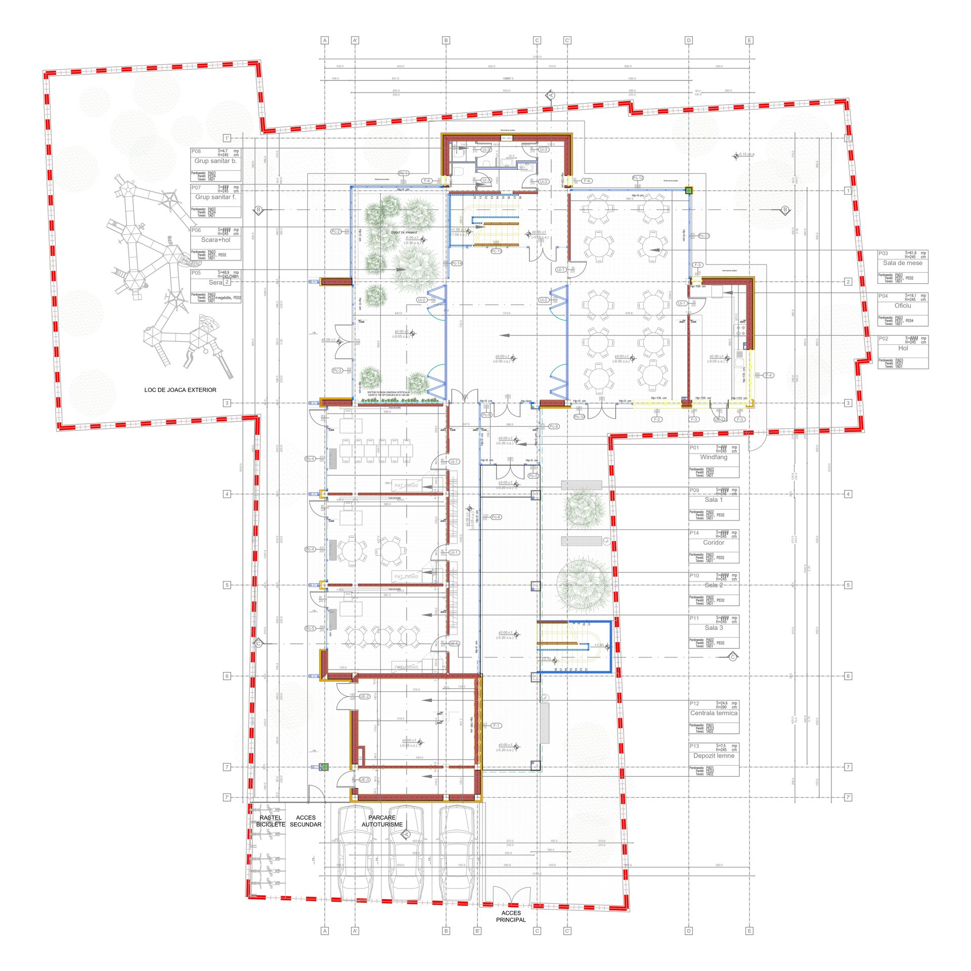
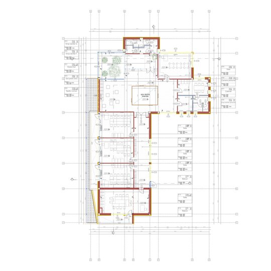
Acesta aduce în prim-plan conceptul de educație prin experiență, unde copii sunt încurajați prin intermediul explorării și al activităților practice. Compartimentarea atentă, funcțională a spațiilor de la parter și etaj creează un mediu în care fiecare colț al clădirii devine un spațiu de învățare.
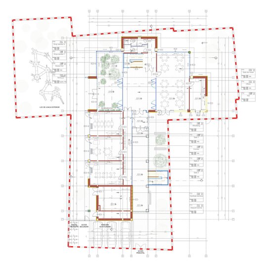
Forma în L a clădirii în plan nu doar că permite optimizarea spațiului, dar și facilitează conectarea fluidă între diferite funcțiuni. Accesul de pe laturile sud, est și nord asigură o intrare comodă pentru copii și personal.
Sălile de activități, spațiile didactice și sălile multifuncționale sunt spații-cheie pentru dezvoltarea personală a copiilor. Acesta este un loc unde imaginația este liberă să zboare, unde întrebările sunt încurajate și unde descoperirea este întotdeauna la îndemână.
After School devine nu doar o instituție educațională, ci și o comunitate în sine. În exteriorul clădirii, locul de joacă pentru copii completează experiența. Aici, copiii pot să-și pună în practică abilitățile și să se bucure de timpul în aer liber.