
Comentariul autorului:
În evul mediu, Cârța era centrul religios al Ciucului de Sus, astfel are o biserică fortificată pe măsură care domină imaginea satului și a depresiunii văzut de la distanță. Nu în ultimul rând, la Cârța s-a păstrat relativ bine imaginea tradițională a satului.
Fără exagerare, putem spune că hocheiul (încă) este sportul naţional al secuilor. La Cârţa, pentru susţinerea activităţii academiei de hochei, s-a construit în primă etapă un patinoar artificial, urmat de un centru medical şi metodologic.
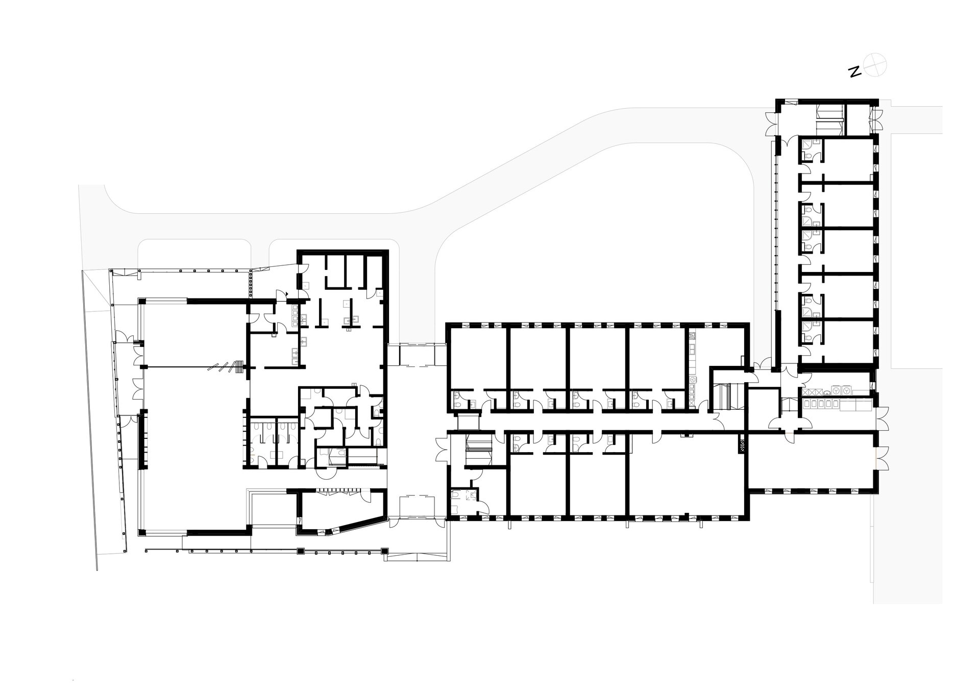
Următoarea etapă logică de dezvoltare a fost cea a căminului pentru sportivi. În cazul acestuia, în loc de o comandă directă, a fost preferat un concurs, care a fost câştigat de biroul de arhitectură Larix Studio. Probunerea biroului grupa în mod just funcţiunile şi oferea o flexibilitate planimetrică mare, care permite o utilizare multifuncţională: de exemplu, zona restaurantului poate funcţiona ca sală de aşteptare pentru părinţii ce aşteaptă copii în timpul antrenamentelor la o cafea etc.
Încadrarea în peisajul cultural din Secuime este una dintre premizele acestui proiect. Este vorba despre un peisaj format în ultimii 300 de ani, dar care în esență este un peisaj cultural medieval european specific pentru comuitățile de oameni liberi și în speță reflectă democrația militară medievală a secuilor. Din axeste considerente, atât parcelele de pe câmpuri, cât și construcțiile din sate sunt relativ egale, cele mai mari construcții (desigur, după biserică) sunt șurele.
Modalitatea de relaţionarea a clădiri propuse cu biserica fortificată din Cârţa, încadrarea în imaginea satului, cât şi evitarea pe cât posibil a ruperii de scară datorată prezenţei caselor parter pe frontul de vizavi al străzii pe rând a fost analizate cu ajutorul fotografiilor realizate cu dronă.
Pentru a reduce impactul vizual al clădirii destul de mari preconizate în cadrul temei de proiectare, au fost desfășurate un set foarte variat de instrumente de neutralizare şi reducerea vizuală a volumului mare faţă de vecinătăţi, combinat cu o varietate de tehnici pentru a înscrie clădirea cât mai în imaginea satului.
Atfel, imobilul a fost „spart” în patru volume separate (dispuse în formă de „U”) care pot intra în dialog cu şurile mari, caracteristice din zonă. Printre volume, prin transaparenţă s-a dorit aniliharea prezenţei clădirii în peisaj, prin transaparență, folosindu-se de vederile orientate către peisaj/imaginea satului.
Aripa restaurantului este înconjurată de o prispă generoasă (realizată integral din lemn) care disimulează cu succes dimensiunea clădirii față de casele parter de pe cealaltă latură a străzii şi se continuă în zona parterului volumului următor, care adăposteşte sălile de conferințe (care pot fi și folosite şi ca săli de clasă).
Holul transparent, prin care pătrunde peisajul în clădire, separă spaţiile „publice” descrise anterior.
Blocul central al căminului a fost parțial scufundat în pământ, ca demisol, pentru a evita o prezenţă nedorită generată de înălţimea acestui corp şi pentru evitarea concurenţei cu biserica fortificată (centrul de greutate vertical al satului). Volumul cu demisol găzduieşte spaţiile de cazare, acestea fiind gândite ca să separe sportivii de vârste diferite. Deși acest corp servește ca „dormitor”, la capătul fiecărui nivel au fost adăugate camere de studiu, respectiv bucătării comune.
Ultima aripă este destinată cazării echipelor oaspeţi.
Pentru a căuta un raport just faţă de casele de vizavi, clădirea este mult retrasă faţă de aliniamentul străzii.
Volumele principale au un acoperiș în două ape cu pante abrupte, caracterisce arhitecturii tradiţionale din zonă și, acolo unde lăţimea construcţiei ar fi condus la un imens volum al acoperişului, acoperişul şarpantă este combinată cu un acoperiş terasă, prin împărţirea în jumătate a suprafeţelotr de acoperit. Învelitoarea – din dorinţa de a înscrie cât mai bine clădirea în imaginea satului şi din dorinţa de respectare a tradiţiei locale, este realizată din ţigle solzi ceramice, culoare cărămizie.
La fel de bogată este compoziţia faţadelor vizibile dinspre spaţiul public: sunt evitate suprafeţele mari, uniforme de faţadă prin inserţii de finisaje de lemn, pentru a reflecta ritmul formal general al peisajului cultural din jur.
În contrast cu cele de mai sus, văzut din interiorul curții delimitate de aripile clădirii, putem remarca o unitate fermă, generată de uniformitatea tencuită a faţadelor spre curtea interioară, acoperișul terasă și motivul codului de bare (în cazul golurilor) care împreună conferă totuși clădirii greutatea instituțională publică necesară academiei.
Clădirea a fost folosită pentru Cupa Mondială Universitară de hochei pe gheață, care a avut loc între 14 și 19 aprilie 2023. În timpul evenimentului celor opt națiuni, clădirea şi-a demonstrat calităţile, și spațiile au fost puse la încercare pentru a dovedi că funcționează cu adevărat, că sunt într-adevăr de dimensiunea potrivită şi pentru o asemenea competiţie.