
Comentariul autorului:
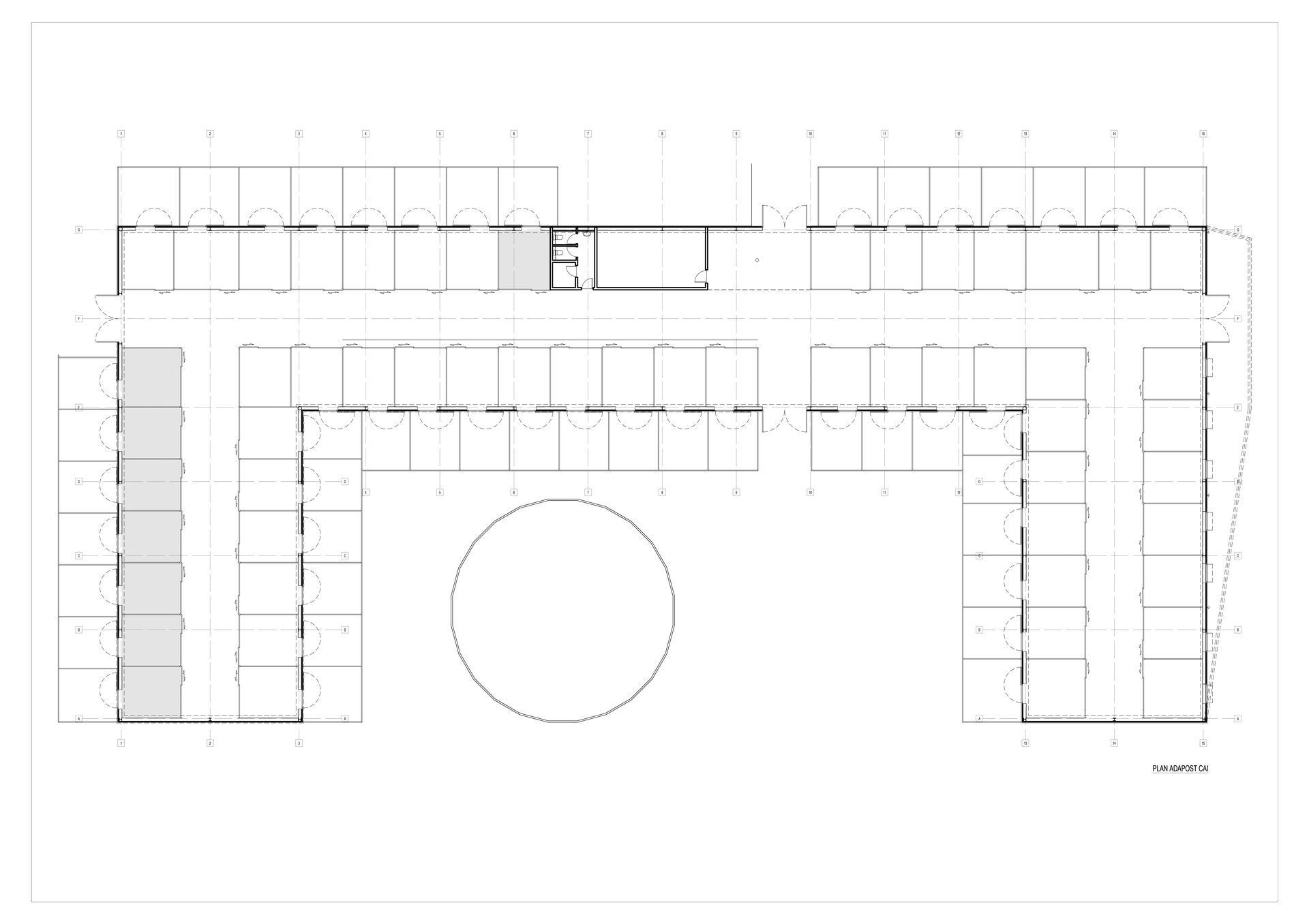
Complexul ecvestru este situat în partea nordică a orașului Buzău (comuna Vadu Pașii), într-o zonă de câmpie cu specific agricol. Acesta adăpostește activități ecvestre diverse: concursuri hipice de sărituri peste obstacole, activități recreative pentru publicul larg, întreținere cai.
Ansamblul este alcătuit dintr-un manej închis, pentru concursuri și antrenamente, un adăpost pentru cai și un teren exterior pentru concursuri și antrenamente pentru perioada verii. Acestea sunt interconectate printr-o promenadă care integrează funcțiuni publice și asigură un grad ridicat de mobilitate și flexibilitate. Manejul are o capacitate de 200 de locuri pe gradene și în cadrul restaurantului de la etaj.
Clădirile se încadreză natural în peisaj, prin accentuarea orizontalității specifice reliefului și prin nuanțele de verde, inspirate de împrejurimi.
Finalizat: 2022