
Comentariul autorului:
În anul 1599, Mihai Viteazul își adună armata și zidește pe locul satului Ploiești, un oraș domnesc cu același nume, unde îngăduie negustorilor să țină târg într-o zi pe săptămână.
În 200 de ani de la acest eveniment, noua localitate se dezvoltă pe ruta cu cel mai intens trafic de mărfuri. În anul 1709, târgul de vite de la Ploiești furniza boi “până și pentru îndepărtatul Graz”. Amploarea pe care a luat-o extragerea și rafinarea petrolului a dus la creșterea economică a orașului, comerțul devenind foarte important. Însă, existența multor măcelării neigienice, răspândite în tot orașul, și a comerțului neconform, au cerut formularea unui program nou, complex, inspirat din curentul arhitectural al vremii. Problema centralizării vânzării de alimente a fost pusă în anul 1912 și s-a materializat cu proiectul Halelor Centrale, un edificiu interbelic păstrat aproape intact după bombardamentele din cel de-Al Doilea Război Mondial.
Toma T. Socolescu a considerat că o hală agro-alimentară se poate construi mai tarziu, când va putea deservi un număr mai mare de locuitori. Astfel, situl, platoul din spatele monumentului, a fost lăsat liber pentru comerțul zarzavaturilor și s-a numit intuitiv „Piața Centrală”.
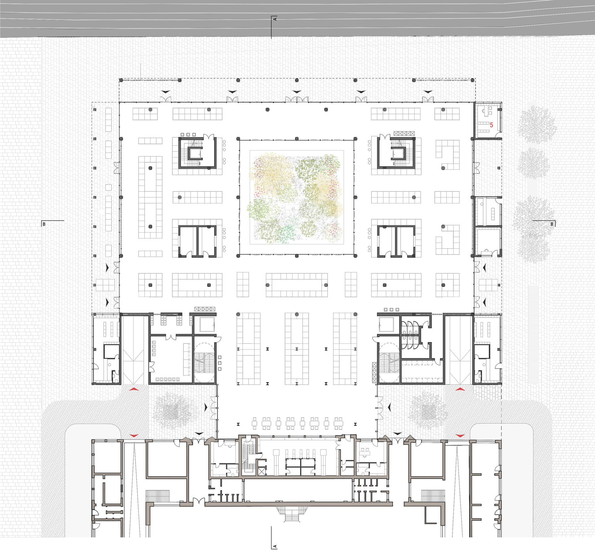
În prezent, cu o arie de influență răspânditâ în tot județul, Piața are un caracter improvizat - o structură ușoară amplasată pe limita de proprietate, generatoare de trafic intens.
Proiectul se traduce printr-o structură comunitară flexibilă, capabilă să întărească legăturile sociale și să genereze un sentiment de apartenență, evidențiind imaginea vechii Piețe Centrale. De aceea, propunerea nu depășește pe înălțime nici domul Halelor și nici acoperirea halei de pește, ci devine o prelungire a aceleiași concepții: un spațiu central cu funcțiuni conexe atașate pe contur. Succesiunea spațiilor de la mezanin permite desfășurarea activităților de degustare, atelier și comerț în continuarea celor deja prezente în Hală. Legătura fizică dintre vechi și nou este asigurată prin două pasarele ce traversează un spațiu înalt, luminos, ce se articulează ca un pandant cu latura scurtă a monumentului.
Structura tridimensională și caracterul unitar al fațadei au ca scop valorificarea vechii clădiri, dar și a marcării în timp a prezentului.