
Comentariul autorului:
Bucureştiul are resurse teritoriale considerabile care nu sunt folosite: situri industriale abandonate, zone neconstruite, enclave în mijlocul oraşului ce au un impact vizibil asupra calității vieții.
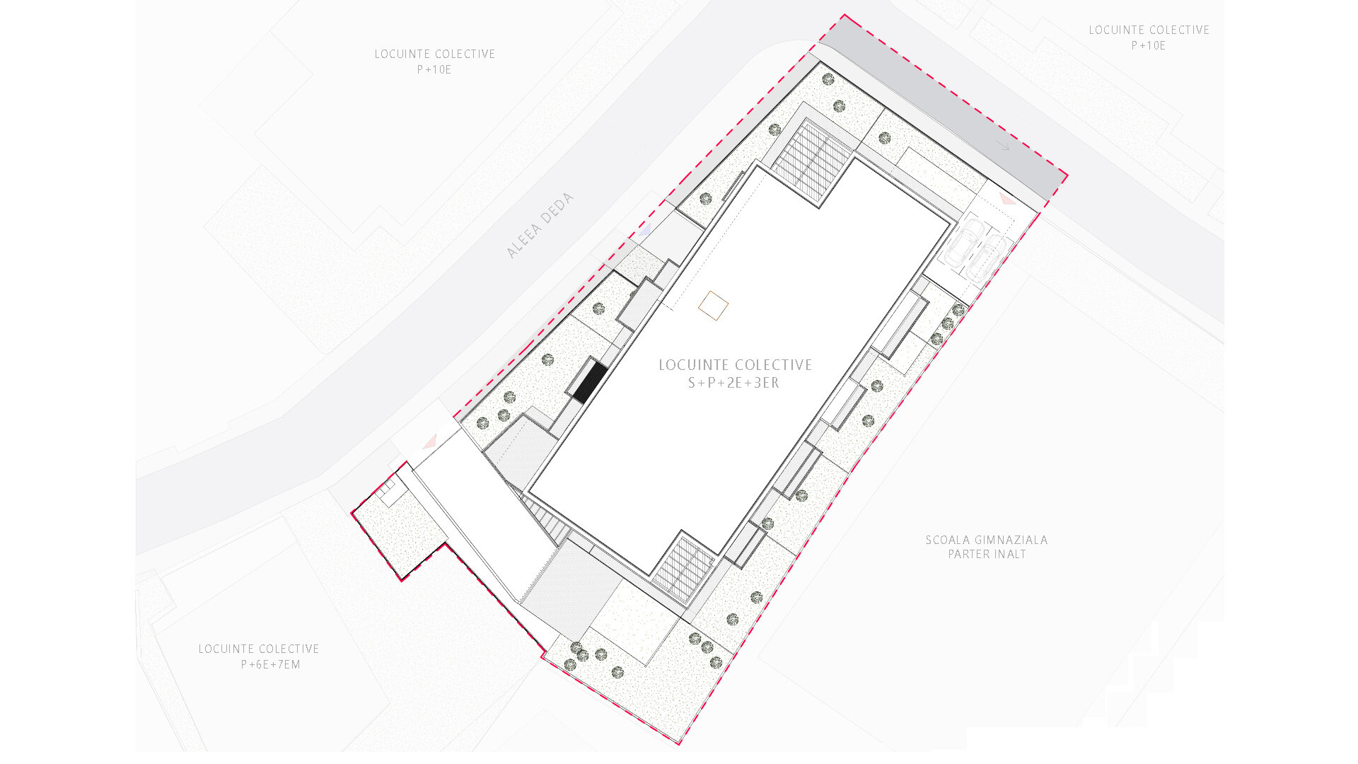
Terenul cu o suprafață de 1588 mp este situat într-un cartier aglomerat, în imediata vecinătate a unor imobile de locuințe colective cu regim de înălțime P+8E/P+10E.
Se prezenta ca o enclavă neconstruită, fiind flancat de Școala gimnazială nr. 307 și de blocuri construite în diferite etape (cu o arhitectură variată, neuniformă) unul dintre acestea fiind construit ilegal și abandonat în prezent.
Proiectul are ca scop readucerea la scară umană a unui context contruit masiv. Amplasat pe un lot de colț, s-a putut desprinde și din punct de vedere stilistic de vecinătățile cu o arhitectură nedefinită și parazitară. S-a construit cu individualitate într-un context impersonal, un mod nou de a dezvolta o zona.
Imobilul cu regim de înălțime S+P+2ETAJE +3 RETRAS, adăpostește o comunitate de 29 de apartamente.
Din punct de vedere funcțional, spațiile tehnice și locurile de parcare sunt amplasate la subsol, iar parterul și etajele superioare sunt destinate spațiilor de locuit.
În rezolvarea proiectului s-a optat pentru diversitate din punct de vedere al soluțiilor de compartimentare. Fiecare apartament dispune de o terasă cu formă diferită parțial acoperită .
Volumul general al imobilului este desfăcut prin avansări și retrageri ale teraselor. Formele și suprafețele lor diferite ajută la realizarea unui ritm pe fațade, nuanțând percepția clădirii și relația cu construcțiile învecinate.
Panourile metalice propuse pe fațade au rol dublu. Unesc vizual elemente volumetrice și asigură în același timp intimitate, fiind poziționate astfel încât să limiteze vederea spre balconul vecin.
Apartamentele de la parter beneficiază de o curte privat, iar apartamentele de la etajele superioare au acces la o curte comună în care este amplasat un loc de joacă pentru copii.
Amplasarea apartamentelor este determinată de structură iar alcătuirea lor este citită cu claritate din exterior. Imobilul reflectă viață interioară a locuitorilor prin terasele deschise și invită la un altfel de ‘transparență’.
Perspectivele asupra obiectului de arhitectură sunt gândite astfel încât fiecare element din volumetrie să completeze scenografia imobilului, obiectul de arhitectură fiind un “reper” ce se lasă descoperit trep