
Comentariul autorului:
RESTAURARE CASTEL NOPCSA” SAT SACEL, COMUNA SANTAMARIA ORLEA, JUDETUL HUNEDOARA
Castelul Nopcsa din satul Săcel, comuna Sîntamaria Orlea, Hateg, județul Hunedoara, construit la începutul secolului al XIX-lea reprezintă un complex de patrimoniu aflat într-un stadiu avansat de descompunere. Castelul şi clădirile anexe, precum și domeniul se întind pe o suprafață de 1,2 Ha localizată în mijlocul Geoparcului Dinozaurilor.
Inființarea Fundației Nopcea și a Muzeului Familiei Nopcea, în scopul conservării moștenirii culturale europene lăsate aici, se dorește a fi un omagiu și o păstrare a memoriei pentru una dintre cele mai prolifice familii hațegane, familie care a dat istoriei prefecți ai Comitatului Hunedoarei, consilieri Guvernamentali, Cancelari ai Curții pentru Transilvania, cavaleri ai unor ordine imperiale, membrii ai Ministerului Regal, membrii ai Casei Regale, șefi peste fiscul Imperiului Austro-Ungar, tezaurieri, botaniști, Directori ai Teatrului National de Operă din Budapesta și nu în ultimul rând personaje legendare, așa cum sunt Vasile Nopcea, romanul, devenit legenda sub numele de Fata Neagră și nepotul său, nu mai puțin vestitul Franz Baron Nopcsa, descoperitorul dinozaurilor pitici de Hațeg, pretendentul la tronul Albaniei, fondatorul paleobiologiei și co-fondatorul studiilor de Albanologie.
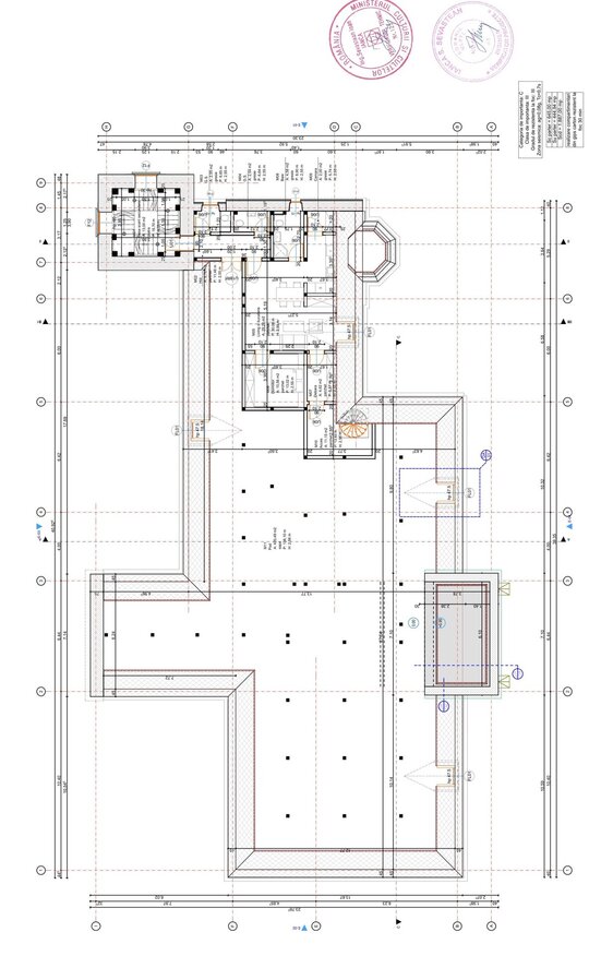
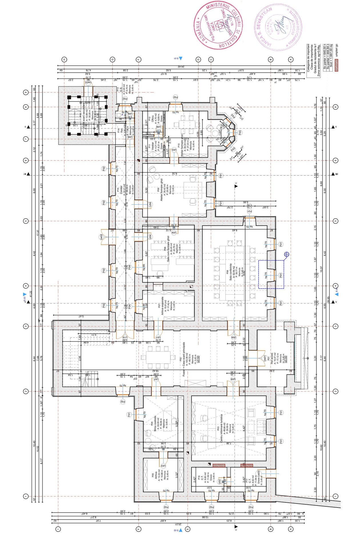
Castelul familiei Nopcsa derivat din tradiţia nobiliară transilvaneană este marcat planimetric şi spaţial prin concept de locuință nobiliară liniară ce denotă specificul epocii de început de secol XIX transpus în tradiţia locului. Castelul are accesul principal marcat printr-un volum cu rezalit puternic , de forma poligonală, cu o mica galerie la etaj, și spații ale parterului boltite în stil de influență neogotică târzie. Accesul în castel se realizează printr-o singură uşă situată pe latura nord est.
Monumentul reprezintă o expresie estetico-arhitecturală a spiritului nobiliar influențat de caracterul baroc târziu transilvănean al anilor de după 1800.
Castelul din Sacel constituie exemplul de mai mici dimensiuni dintre castelele transilvanene, monumente istorice din aria hunedoreană, dar cotat ca o adevărată bijuterie a arhitecturii nobiliare. Acest lucru a determinat de altfel la un moment dat ca Alexius Nopcsa, tatal lui Franz Baron Nopcsa sa procedeze la un testament pentru tot domeniul INCLUSIV CASTELUL, pentru CAROL PALLAVICINI.
Castelul prezintă şi o caracteristică gotică târzie vizibilă mai ales prin expresia volumetrică a interioarelor parterului, respectiv încăperi boltite.
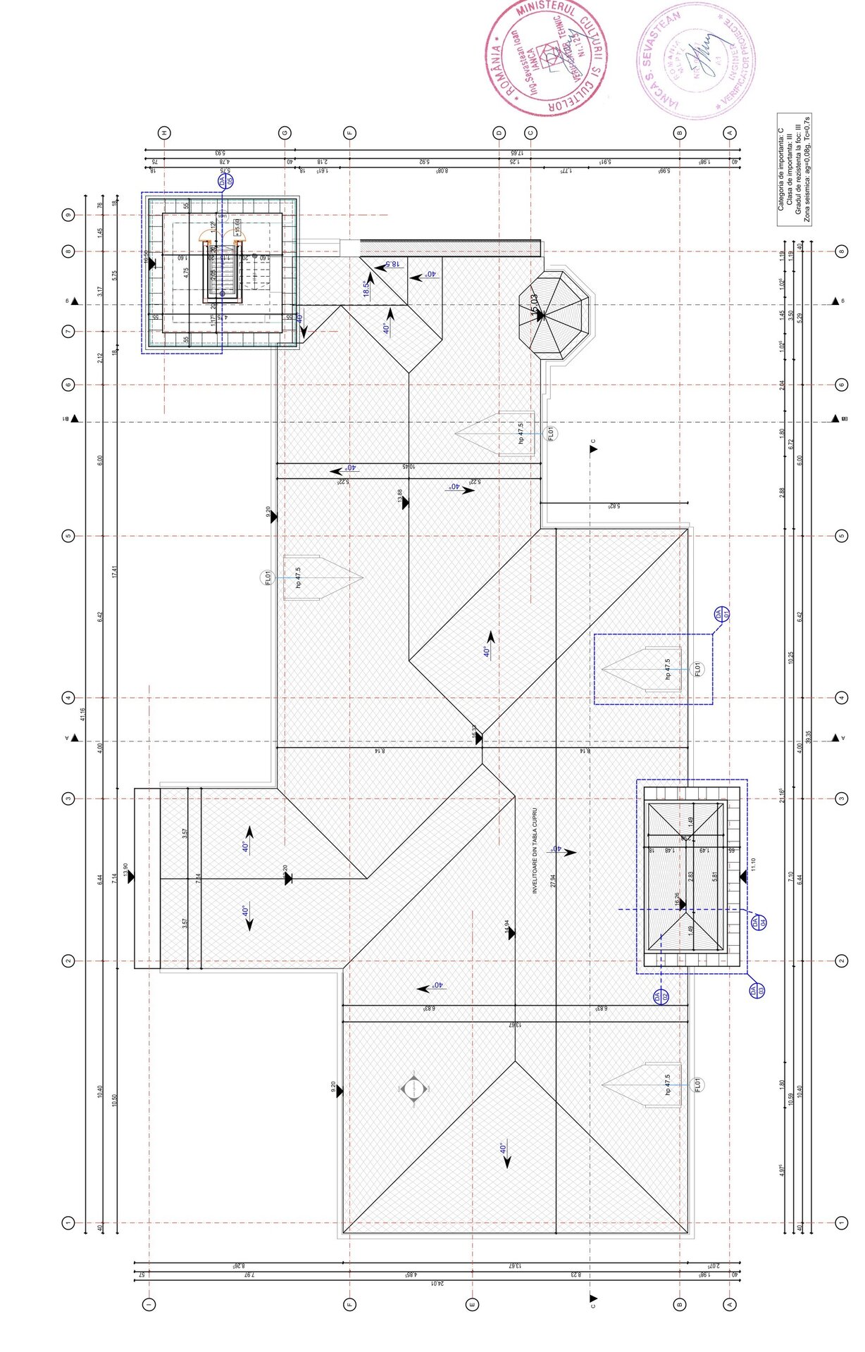
Decorarea exteriorului este complexă, fiind marcat de ancadramente ale intrării, ancadramente ale ferestrelor de la parter și etaj, învelitoare, deși distrusă aproape în întregime ce relevă volume speciale pentru turnuri, lucarne mari , tâmplarie exterioară cu dimensiunii mari. Aplicarea unor elemente de piatră, colonete, pentru amplificarea efectului ancadramentelor ferestrelor mari din fațadă, introducerea de contraforți la intrare, aplicarea unui element din tablă ce marchează replica blazonului familiei Nopcsa completează elementele decorative.
Ferestrele exterioare ce sunt foarte ample ca dimensiuni realizează alternanța plinului faţă de gol şi crează ca atare atmosfera de relație cu mediul profundă.
Decorarea interiorului este foarte sumară, doar o încapere mai prezintă urmele lambriurilor din lemn de nuc și a tavanului casetat pe lemn, castelul neprezentând urme de pictură.
Castelul familiei Nopcsa se poate caracteriza şi ca o expresie a tradiţiei şi identităţii nobiliare hunedorene de la in sfarsit de sec XVIII și început de secol XIX.
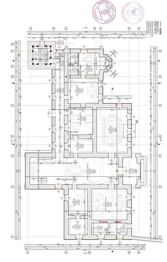
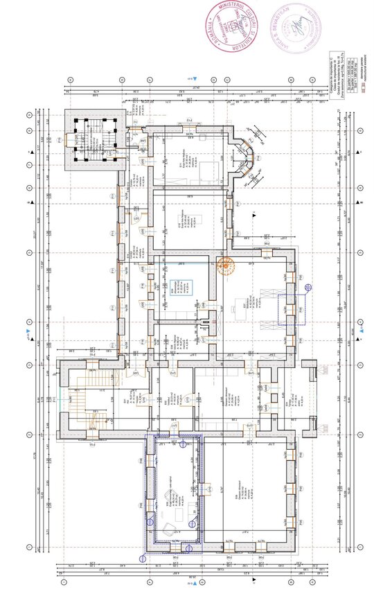
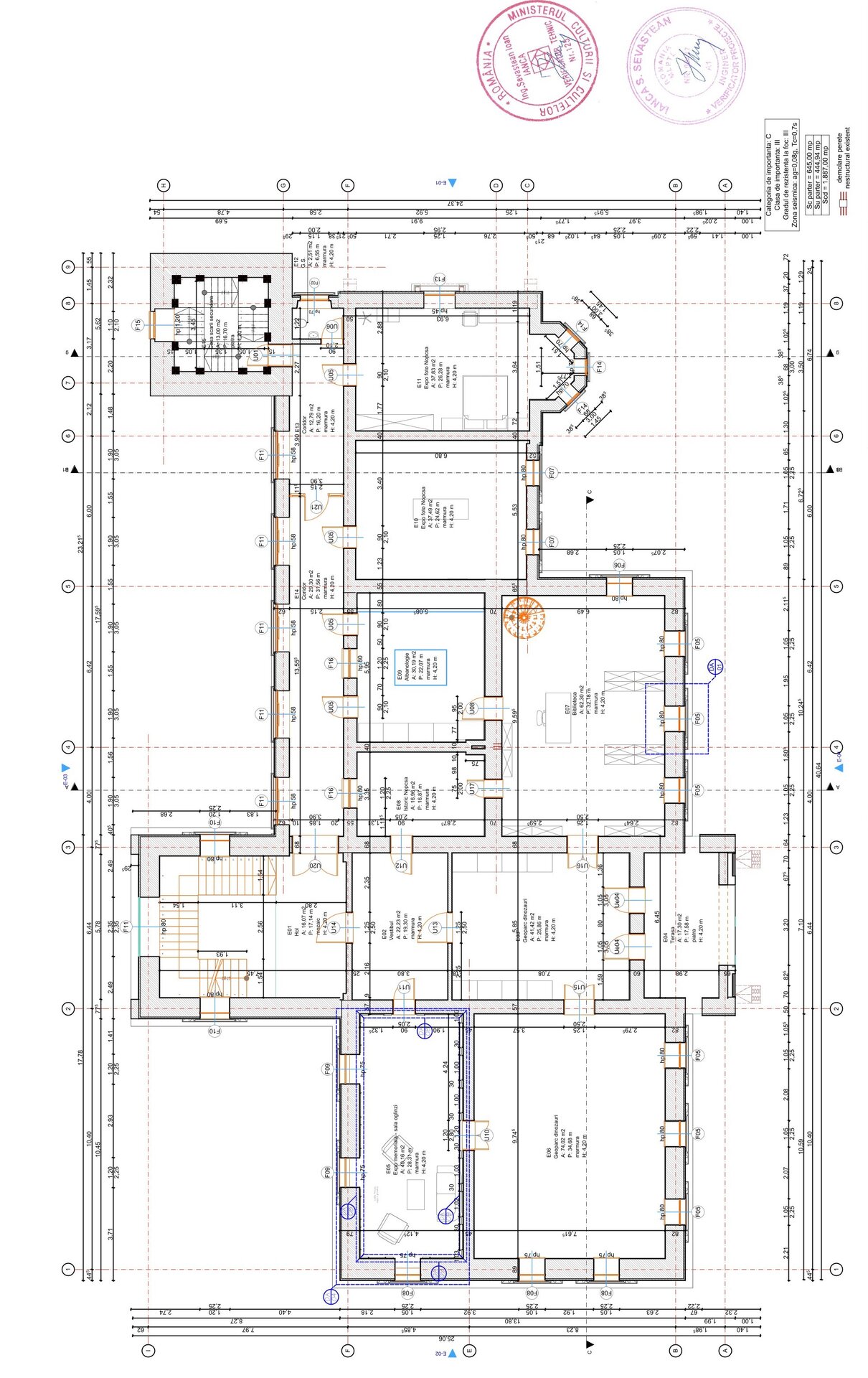
Castelul familiei Nopcsa din satul Săcel este marcat planimetric şi spaţial prin încaperi ample la parter și la etaj, cu accese separate din holuri și culoarul derivat din holuri, ceea ce denotă specificul nobiliar transpus în tradiţia locului. Încăperile parterului sunt boltite amplu, iar pentru deschiderile mari s-au introdus și arcele ce susțin bolțile, iar etajul acum are încăperile tăvănite drept, posibil ca urmare a unor intervenții ulterioare anilor de socialism. Accesul în castel se realizează printr-o singură uşă situată pe fațada principalș. Monumentul reprezintă o expresie estetico -arhitecturală a spiritului nobiliar hunedorean transpus în această realizare a arhitecturii din Țara Hațegului.
Dimensiunile maxime în plan ale castelului din Săcel sunt 40,84m x 24,54 m, putând caracteriza sintetic conceptul planimetric ca un plan liniar cu accente ale turnurilor.
Incinta castelului nu mai are marcate vizibil alei pietonale caracteristice peisajului de curte nobiliară deplasarea publicului fiind acum haotică, lipsită de constrângerile unui spaţiu peisager amenajat. Acest cadru peisager valoros s-a distrus, deși reprezintă o spiritualitate a timpului dar şi un martor al continuităţii civilizaţiei, ce a intervenit foarte puţin în distrugerea naturalului.
In perioada de funcționare a clădirii, aceasta a fost supusă unor lucrări de reamenajare ce au cuprins reparații la acoperiș și la planșeul peste etaj și refuncționalizarea încăperilor conform noii destinații, pentru școala de copii cu nevoi speciale.
Castelul este declarat monument istoric și este înscris in Lista Monumentelor Istorice 2010 la poziția nr. 435, cod LMI HD-II-m-B-03439.01, fără a fi deschis publicului din cauza stării avansate de degradare produsă de lipsa întreținerii și de vandalizare a clădirii.
Prin acest proiect s-a propus readucerea la starea inițială a clădirii și a incintei, pentru a permite acestei frumoase clădiri de patrimoniu să intre in circuitul turistic al Țarii Hațegului.
Autor: Arh. Popa Ilie Ilisie