
Comentariul autorului:
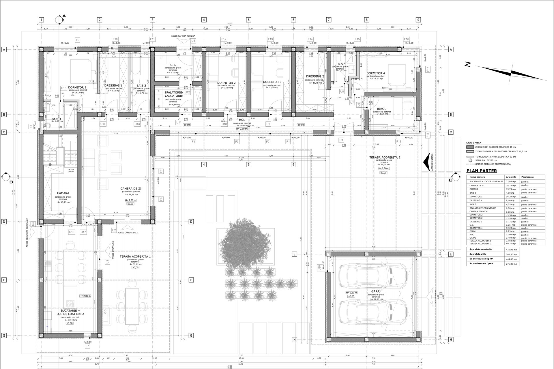
Locuinta pe parter, cu dispunere in U, formand o curte interioara pentru intimitate, deoarece exista un fond construit. Din punct de vedere functional, garajul separat formeaza un portal cu zona de locuit. Locuinta este compusa din patru dormiotare, birou, doua bai, camera de zi, bucatarie, ambele fiind deschise catre terasa exterioara acoperita. Toate functiunile sunt deschise catre curtea interioara, o maniera mult intalnita.
Nivelul de parter doreste sa aseze zona fara a fi element contrastant in zona rezidentiala aglomerata.
Maniera de arhitectura curata, cu tenta mediteraneana, curajoasa pentru tipul climatic din zona ( mediteranean continental de tranzitie). Spatiile mari vitrate confera legatura cu exteriorul.
Curtea interioara se doreste a face parte din casa.
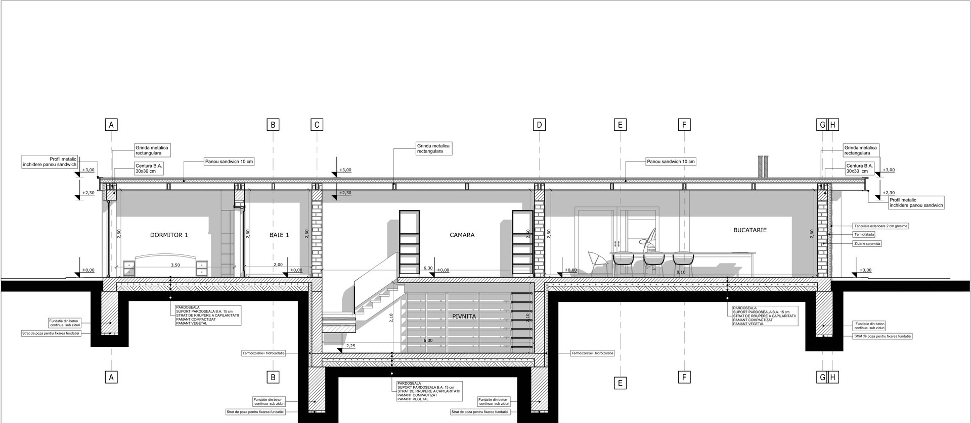
Din punct de vedere tehnic, noutatea care aduce acestei locuinte, este folosirea panoului sandwich la locuinte cu panta minima, un material ce rezolva partea termica si hidrotehnica, des folosita de catre mine, ca arhitect.