
Comentariul autorului:
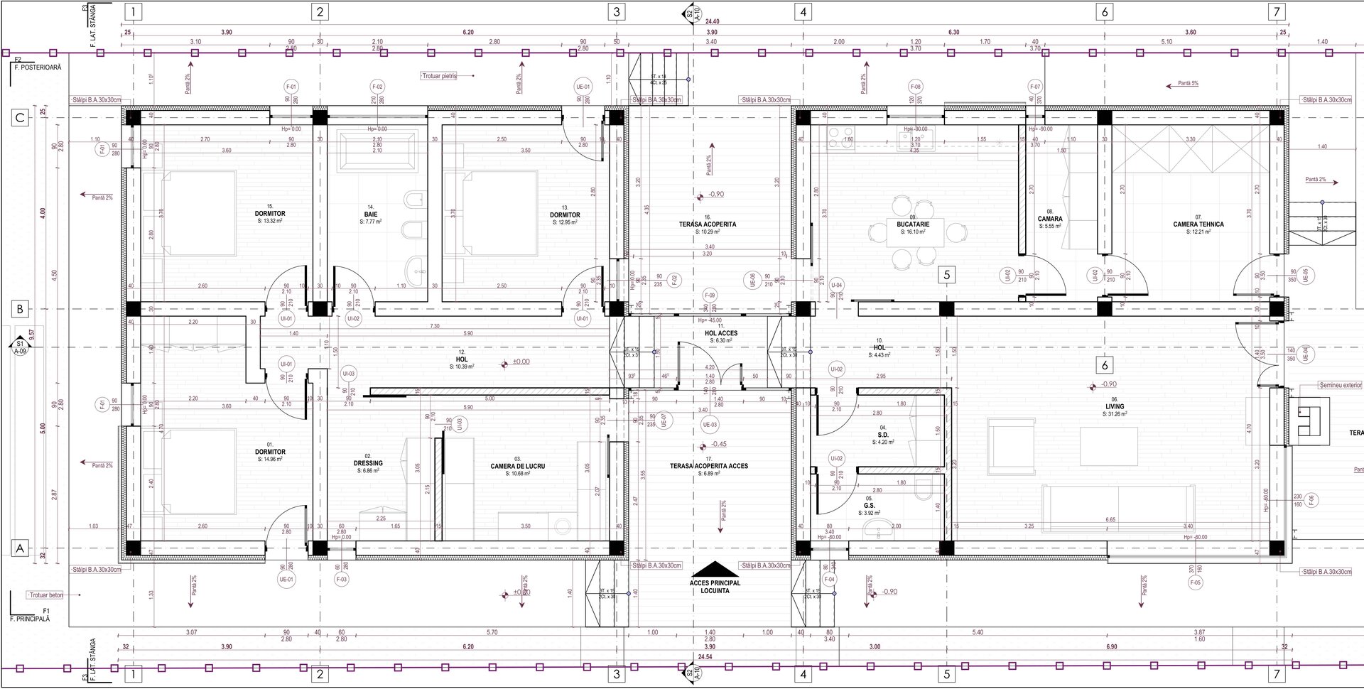
Locuinta pe parter, compusa din doua corpuri decalate prin diferenta de nivel. Primul corp este compus din zona de noapte, avand trei dormitoare, dressing si baie comuna, amplasat in zona de nord pentru a conferi liniste si intimitate. Corpul al doilea, spre zona de sud este compus din camera de zi, bucatarie, grup sanitar, deschise catre o terasa generoasa. Tunelul din sticla, amplasat central, delimiteaza zona de intrare si creeaza a doua terasa ce deserveste bucataria.
Se incearca prin concept o maniera curata avand o scara umana adaptata zonei, atat prin volum, cat si prin finisaje.
Conceptul de locuinta pe parter confera foarte multe avantaje prin deschiderea functiunilor catre exterior si invers.
Ca si arhitect, sunt un promotor vehement al locuintei pe parter. Daca dispunerea terenului imi confera aceasta libertate.
Locuinta este un exemplu pozitiv in zona.