
Comentariul autorului:
Construcția de noi creșe este o excepție în producția arhitecturală recentă, marea majoritatea a acestor dotări sociale fiind create după soluții tipizate, ce necesită actualizare. Oportunitatea unui asemeni experiment l-a constituit extinderea creșei Ursulețul, din cartierul Mănăștur din Cluj-Napoca. Situat excentric în cadrul cartierului, amplasamentul este înconjurat de locuințe colective din panouri prefabricate, pe principiul micro-raioanelor specifice anilor 70. Cu toate acestea proximitatea pădurii și vegetația abundentă îi conferă o atmosferă peisageră și protectivă.
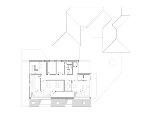
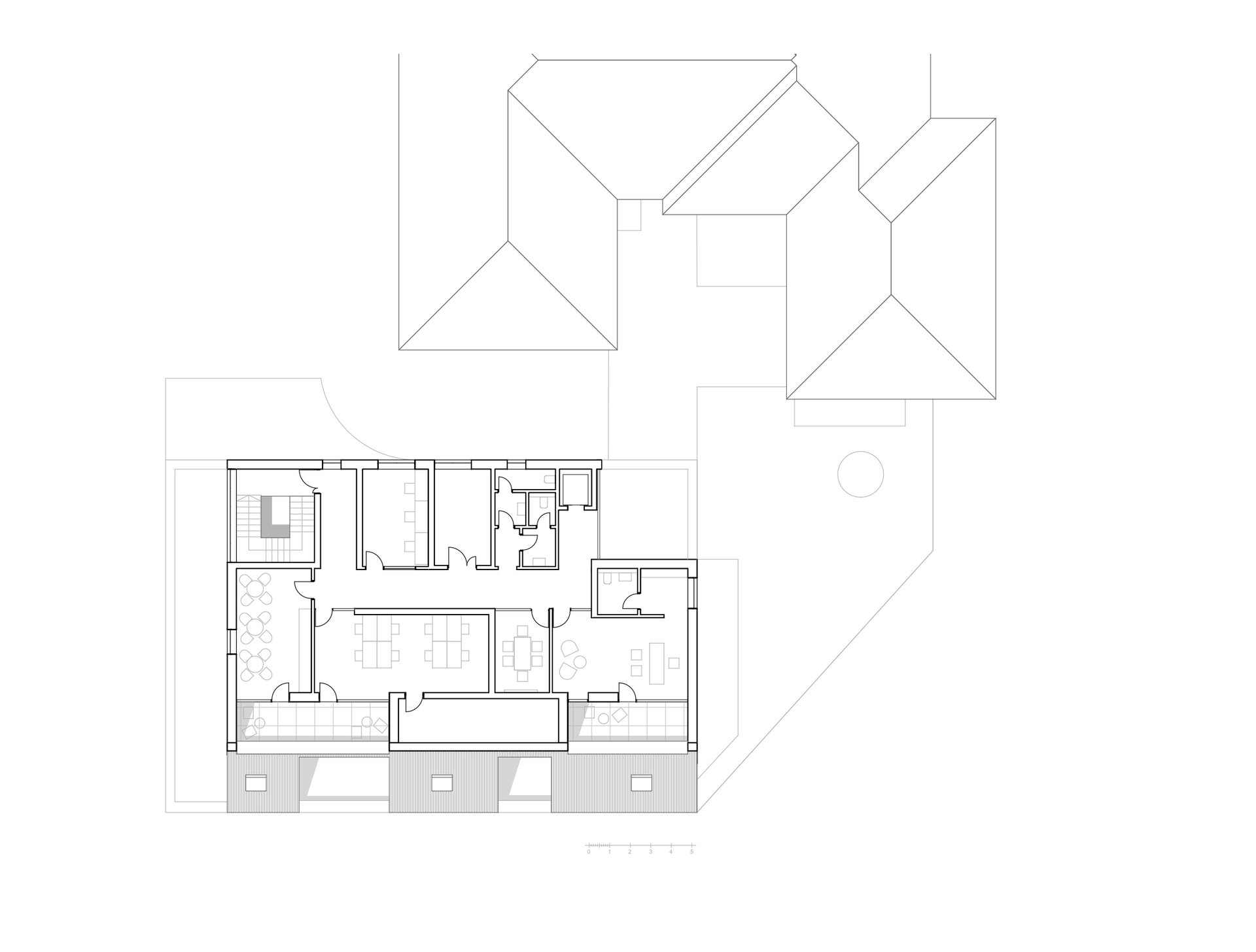
Clădirea existentă ocupă centrul parcelei, astfel că extinderea se așează pe terenul liber disponibil destul de aproape de limita vestică, învecinată cu o alee pietonală dar și un generos spațiu verde. Comanda din partea administrației locale pentru noul corp a fost de a găzdui 6 grupe de creșă, practic o dublare a capacității celei existente, precum și amplasarea la etajele superioare a birourilor Centrului Bugetar de Administrare a Creșelor din cadrul primăriei. Nevoia de dezvoltare a funcțiunii pe verticală atrăgea obligativitatea urbanistică de retragere succesivă a etajelor față de limita de proprietate.
Astfel, s-a născut conceptul unui volum compact unitar care să acomodeze toate funcțiunile, cu o siluetă familiară și ludică: o casă insolită printre blocurile cartierului Mănăștur, orientată către versantul împădurit. Aceasta este gândită asemeni unui tetris spațial, în care funcțiunile se întrepătrund pe verticală pentru a genera geometrii neașteptate.
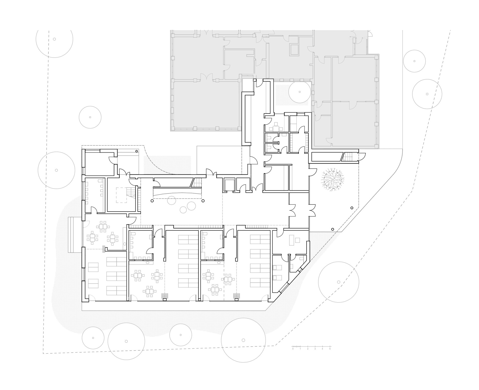
Proiectul a pornit de la ideea unui spațiu expansiv, luminos și pastelat, eliberat de clișeele tipice ale spațiului de creșă pentru a invita la explorări fizice dar și ale imaginației copilului. Separarea funcțională e transformată în dialog prin dizolvarea diviziunii obișnuite dintre sala de grupă și dormitor, înăuntru și afară, sus și jos, etc. Spațiul grupei este unitar și trebuie cucerit, descoperit, apropriat în întregime: safari într-un univers în miniatură cu fațade interioare, scări multiple, populat de personaje multifuncționale și limite permeabile.
Sălile de grupă se extind pe verticală în etajul birourilor, amplificând senzația de spațiu și lumină. Luminatoarele adaugă o a 5-a fațadă a spațiului interior, astfel că tavanul devine și el o pânză a imaginației. Partițiile sunt tranzitorii: pereți amovibili și separatoare textile alcătuiesc recuzita unei scenografii în care spațiul este redimensionat mereu în funcție de nevoi.
Deschiderea către natură a fost o temă esențială la care arhitectura trebuia să răspundă. Astfel că volumul dezvoltă relația cu exteriorul prin accese directe la nivelul curții din fiecare grupă, iar la etaj prin cadrări ale peisajului, ale cerului. Nevoia de intimitate la nivelul parterului ne conduce către folosirea materialelor translucide și folosirea filtrelor succesive. Terasa amplă situată peste intrarea principală creează o curte pentru copii aflați la etaj, și reduce silueta percepută a clădirii. Terasele de la etajele superioare decupează planul acoperișului spărgând monotonia șarpantei care se deschide astfel către pădurea Făget.
Arhitectura este modestă, simplă, funcțională, culorile și materialele sunt folosite pentru a induce o atmosferă calmă, pozitivă, naturală. Piesele de mobilier sunt gândite asemeni unor personaje abstracte ce populează această lume interioară.