
Comentariul autorului:
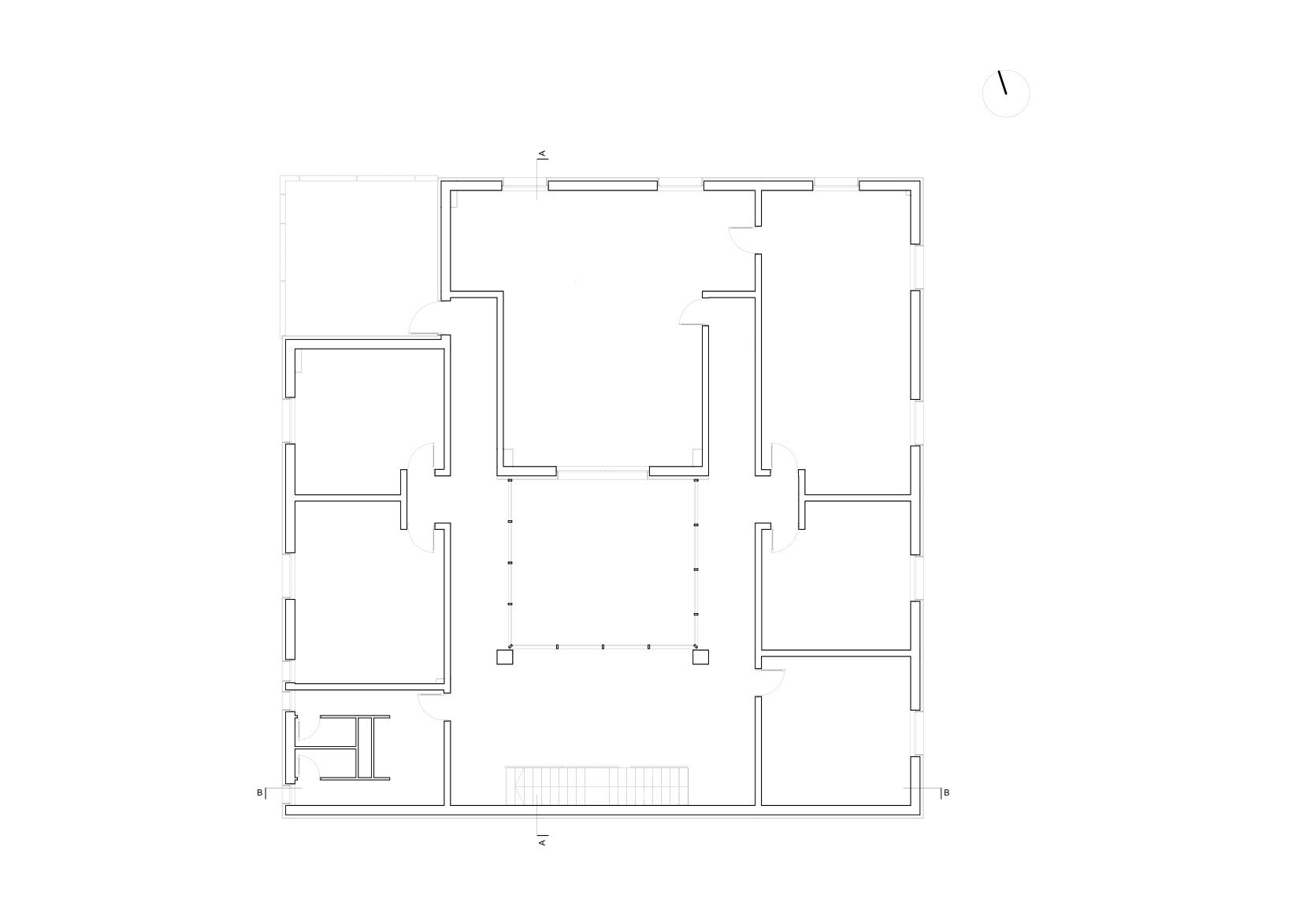
Clădirea ce adăpostește laboratoare pentru testare materiale de construcții, o clădire cu regim de înălțime parter și etaj, se află în zona industrială de langă orașul Oradea, în parcul industrial Borș. Fiind o zonă preponderent industrială, cu construcții recent construite, clădirea a fost gândită ca un volum compact, care se închide față de exterior, în același timp deschizîndu-se spre interior printr-o curte interioară de lumină, în jurul căreia se concentrează toată volumetria. Curtea de lumină unește zonele de testare de la parter cu zona de birouri de la etajul 1 și oferă lumină spațiilor interioare.
Aparent opacă, fără ferestre, clădirea este îmbrăcată în panouri perforate. Îmbinând funcțiunea de laborator cu cea de birouri, alegerea materialului pentru fațadă a venit natural, acesta având capacitatea de a permite iluminarea interioară a spațiilor cu o lumină difuză, filtrată, dar totodată are capacitatea de a păstra o anumită opacitate, neutralitate față de împrejurimi. Această neutralitate este oferită și de alegerea culorii albe a fațadei. Două accente situate diametral opus, realizate prin culoare și volumetrie, sunt decupate din volum. Unul accentuează zona de intrare, iar celălalt, aflându-se în partea opusă, la etaj, creează o terasă retrasă, mai intimă.