
Comentariul autorului:
Acumularea deșeurilor la periferia orașelor este o problemă acută, ce pune în pericol atât mediul natural cât și sănătatea publică, însă este însă o problemă pe care România evită să o abordeze de mult timp. Încă de la aderarea țării la Uniunea Europeană în 2007 am acceptat, printre alte condiții, prevederile directivei CE 1999/31, ce obligă la închiderea și reabilitarea depozitelor de deșeuri ce nu îndeplinesc standardele acesteia. Chiar și după repetate procese inițiate de Comisia Europeană împotriva României, în prezent încă există 44 de astfel de depozite, majoritatea conținând deșeuri industriale.
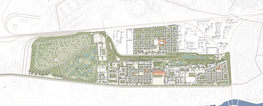
9 astfel de situri sunt în Județul Bihor, iar 6 dintre acestea se află în periferia Nord-Vestică a municipiului Oradea. Pe lângă pericolul pe care îl reprezintă, aceste depozite ocupă teritorii considerabile în intravilanul orașului, iar în contextun expansiunii acestuia devin tot mai greu de ignorat.
Oradea devine rapid un pol de interes atât la nivel național cât și în contextul european, iar arealul nord-vest câștigă tot mai multă importanță datorită elementelor de infrastructură rutieră și feroviară ce se dezvoltă în zonă, a concentrării majorității locurilor de muncă și a proximității față de cel mai dens cartier rezidențial al orașului. Prezența marelor halde de reziduu industrial periculos este însă principala piedică în realizarea potențialului acestei zone.
Problema este de o complexitate ce depășește competențele unui singur domeniu, iar soluția poate fi doar o strategia multidisciplinară care ia în considerare atât multitudinea de factori și actori implicați, cât și impactul pluridirecțional al unei schimbări de o asemenea amploare.
Proiectul propune în primul rând o strategie de valorificare a celor peste 10.000.000 de tone de reziduu de bauxită și transformarea lor în resursă, ca agregat în realizarea materialelor de construcții. Aceasta preia modelul tot mai prezent în mai multe orașe europene ce se confruntă cu aceeași problemă, și îl aplică condițiilor specifice locului. Infrastructura bogată facilitează transportul și logistica acestui proces iar extracția deșeurilor toxice permite renaturarea haldei prin fitoremediere și transformarea ei într-un parc urban de mari dimensiuni. Arealul devine astfel dezirabil și se poate dezvolta firesc sub forma unui nou cartier al orașului, extrem de bine conectat cu acesta. Oportunitatea cercetării procesului de valorificare permite dezvoltarea sectorului universitar orădean care în prezent se află într-o stare de stagnare.
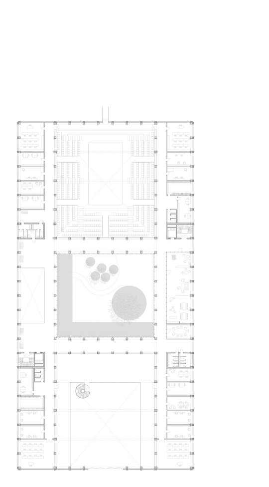
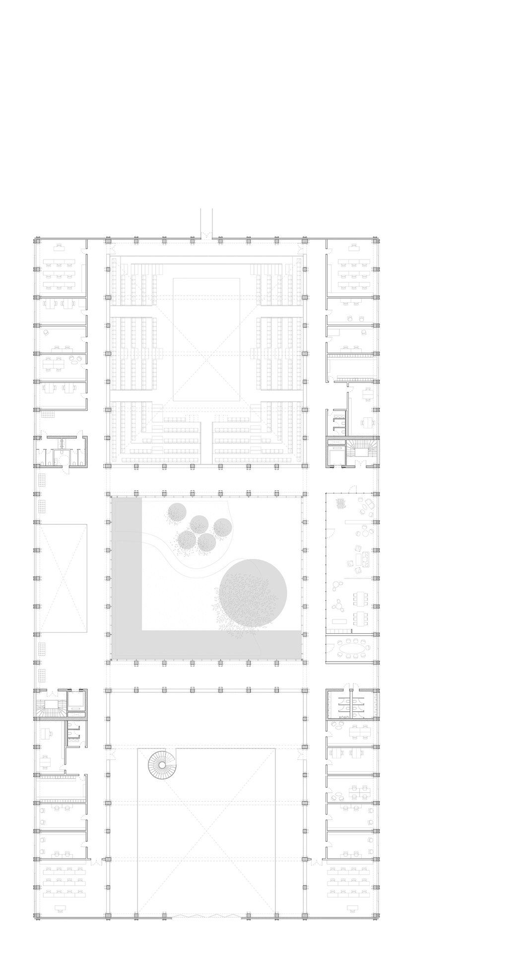
Proiectul ia în considerare conversia structurilor necesare valorificării odată cu finalizarea extracției reziduului: deschiderile largi necesare prefabricării elementelor constructive preiau ulterior rolul de săli acoperite de sport în cadrul unei baze sportive ce va deservi populația noului cartier dar și campusul universitar.
Institutul de cercetare se așează firesc în proximitatea haldei și a platformei de fabricare a materialelor de construcții. Acesta este construit utilizând chiar elementele prefabricate realizate cu agregate de reziduu în componență, reducând astfel amprenta de carbon aferentă transportului de materiale. Obiectul de cercetare al institutui se va adapta în timp la și cercetarea altor moduri de valorificare a deșeurilor și realizarea materialelor de construcșii experimentale. Astfel utilizarea prefabricatelor și a sistemului constructiv regulat permite modificarea sau extinderea institutului în viitor pentru a răspunde necesităților.
Accentul proiectului nu este pe fiecare element în parte, ci pe relația și interdependența dintre acestea: Procesul de remediere și valorificare nu este viabil economic fără un plan de dezvoltare a zonei pe termen lung, iar dezvoltarea nu este posibilă fără gestionarea depozitului. Într-o lume în care astfel de aspecte se intersectează și sunt tot mai strâns legate, rolul arhitectului și urbanistului migrează de la cel al ordonării spațiale la cel al unui strateg, în colaborare cu specialiști în diverse domenii, axat pe soluționarea holistică a problemelor tot mai complexe cu care ne confruntăm.