
Comentariul autorului:
Conacul Podgoreanu se află în satul Cozieni, comună Ganeasa, județul Ilfov. Acesta este înscris în Lisa Monumentelor Uitate. Imobilul face obiectul proiectului, ce constă în reabilitarea și conversia funcțională a acestuia, nouă funcțiune principală fiind cea de VINĂRIE.
Conform datelor istorice atestate în actele de partaj, situl Conacului Podgoreanu face parte din fostă moșie Pitească . Proprietarul de drept începând cu anul 1904, Ioan D. Podgoreanu, în cadrul testamentului, lasă moștenire moșia celor cinci copii ai săi. Astfel se constată faptul că această era alcătuită într-o mare parte din teren arabil, plantat cu vită-de-vie.
Turismul viticol a căpătat norietate în România în ultimii ani, degustările din crame și vinării, constituind activități de relaxare. Un exemplu cunoscut este Asociația
Drumului Vinului din Prahova, ce reeditează un segment mai vechi dintr-un drum al vinului, ce include vizite la conace și curți domnești.
Astfel, luând în calcul atât istoricul conacului, cât și poziția să aflată într-o arie de confluența a mai mult zone viticole, funcțiunea de vinărie este adecvată pentru imobilul ales.
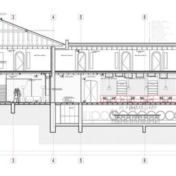
Proiectul propune o refunctionalizare a imobilului Conacul Podgoreanu – conversia într-o vinărie, păstrând arhitectură originală a conacului și identitatea să stilistică. Astfel, proiectul urmărește o elaborare în detaliu a spațiului interior, cât și a unei extinderi, realizând o arhitectură ce se bazează pe contrastul dintre vechi și nou și punerea reciprocă în valoare a celor două limbaje.
Temă program:
A. Subsol: I. Cramă de vinificație
-zonă prelucrare struguri ( S=123.20 mp, spațiu dotat cu utilaje speciale)
-zonă fermentare ( S= 82.0 mp, spațiu dotat cu utliaje speciale)
-zonă depozit ambalaje ( S= 22.45 mp)
-zonă depozit produse finite ( S= 42.56 mp)
-linie îmbuteliere ( S= 58.28 mp, spațiu dotat cu utilaje speciale)
ÎI. Cramă ( S= 126.50 mp, zonă degustare)
III. Sală de cursuri pentru somelieri ( S=110.0 mp, spațiu cu acces separate, în relație directă cu spațiile tehnice de vinificație) , Sală conferințe
IV. Birouri ( S=31.30 mp)
V. Grupuri sanitare (S=20.25 mp) și alte spații tehnice.
B. Parter:- zonă recepție și lobby ( open space, S= 135.0 mp)
-restaurant ( accesibil din lobby, S=128.05 mp)
-bucătărie ( S=64.0 mp)
-wine bar ( accesibil din lobby, S-56.90 mp)
-zonă expoziționala ( în relație cu wine bar-ul, S=26.50 mp)
-grupuri sanitare + hol ( S= 68.41 mp)
-birou ( S=19.20 mp)
C. Etaj (parțial, cu acces de pe scară principală din lobby)- unități de cazare
-oficiu
-zonă cigar