
Comentariul autorului:
Strategia proiectului :
Conform temei de proiectare, pe terenul destinat investiţiei în suprafaţă de 18.082. mp, sunt amplasate următoarele:
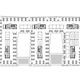
Un ansamblu destinat birourilor, comerțului și serviciilor și parcărilor subterane. Funcțiunea principală va fi cea de birouri. Acestea vor satisface cerințele încadrării la clasa A.
Pe parter sunt prevăzute spații pentru retail și servicii. Spatiile de parter sunt utilizate atât pentru retail cât și pentru birouri, în funcție de nevoi. In subsoluri sunt asigurate o rație de parcări de cel putin 1 loc la 50 mp suprafață netă închiriabilă de birouri.
Integrare în sit, urbanitate, spaţiu public:
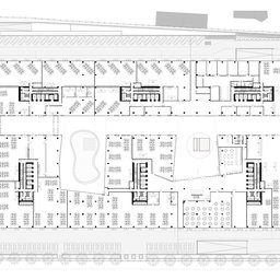
Întregul ansamblu este constituit dintr-un asamblaj de 3 părţi edificate în etape succesive care alcătuiesc un „orăşel” coerent, având un regim de înălţime de 2S+P+5+P.H. şi o cornişă generală la nivelul etajului 5 .
Complexul este caracterizat prin continuitate a fronturilor pe trei laturi (sud, est şi nord) şi prin ritmare către vest, având un caracter preponderent întins şi masiv în loc de „înalt şi articulat”. „Masivul” este penetrat de străzi de tip poartă acoperite care vor interpreta tipologia specifică oraşului vechi, a gangurilor publice. În aceste străzi interioare acoperite dezvoltate pe mai multe niveluri se vor amplasa opere de artă la scară urbană.
Urbanitatea acestui complex de birouri este generată de interpretarea traseului pietonal pe axa sud/nord, dinspre bulevardul 21 decembrie către Canalul Morii, ritmat în alternanţă de cele 3 străzi /poartă şi cele două curţi atrium. De asemenea este generată de caracterul public, deschis al parterului pe întreaga circumferinţă şi de cele două pasaje ce penetrează parterul făcând accesibile atriumurile şi dinspre vest.
În concluzie, la scară urbană, ansamblul Cluj Business City este în final un mic orăşel în oraş, un masiv penetrat de 3 străzi „poartă” acoperite, cu două curţi sub cerul liber, toate acestea pemiţând atât o generozitate în favoarea spaţiului public cât şi o nuanţare către spaţiile semi-publice şi private. La scara mai amplă a peisajului, Clujul oferind dinspre dealuri o siluetă deosebită, ansamblul rămâne un element plat, predominând stratificaţia orizontală a volumetriei generale. (Nu în ultimul rând, a cincea faţadă ar putea trimite la un semn/literă cu o încărcătură simbolică, neîntâmplătoare.)
Green building :
Conform temei de proiectare, ansamblul a obținut Breeam, îndeplinind astfel o serie de condiții în vederea unei astfel de clasificări. Printre acestea se numără: un sistem integrat specific unei clădiri „inteligente” oferit de sistemul BMS, terase verzi peste zonele de clădire joasă P+2 și la nivelul de terasă al etajului retras, recircularea apelor meteorice și a celor rezultate din condens, sisteme de umbrire pasivă la fațadele cele mai expuse, respectiv sud și vest, un sistem de răcire bazat pe chilere cu compresoare centrifuge cu levitație magnetică, parcare subterană ventilată și desfumată natural, zone pentru parcare biciclete și grupuri sanitare prevăzute cu cabine de duș.