
Comentariul autorului:
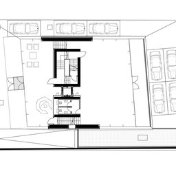
BNT este un imobil de birouri cu o suprafață desfășurată de cca. 1400 mp. Construcția a fost concepută, având jumătăți de nivel, decalate pe înălțime, totul plecând de la subsolul parțial dictat de prezența apelor freatice la adâncime foarte mică. Locurile de parcare se află în demisol, care are o suprafață redusă.
Acest fapt, ca și dezideratul de a avea o flexibilitate totală la nivelul etajelor cu showroom și birouri, ne-a condus la soluția de a elimina stâlpii care în cazul suprafețelor de mai mici dimensiuni (între 150 mp și 250 mp pe fiecare jumătate de nivel) ar provoca ingerințe serioase în funcționalitatea spațiilor. Pentru a materializa această idee a fost nevoie să suspendăm spațiile de lucru propriu-zise de nodul central compus din casa scării, lift și grupuri sanitare.
Pe lângă scara de evacuare, așa cum am menționat, ce este parte integrantă a nodului de rezistență, mai există și rampe libere care fac legătura dintre jumătățile de nivel ce fac posibilă comunicarea spațială și o percepție mai amplă a volumului văzut din interior. Imobilul are avantajul de a fi situat pe o stradă perpendiculară pe Șoseaua Mihai Bravu, în spatele terenului generos arondat unei bise- rici, deci ușor vizibil, expunându-se dinamic celor ce trec pe artera principală. Acesta a fost motivul pentru care construcția a fost concepută ca obiect cu forma unui cristal, cu multiple fațete.
Din dorința de a lăsa volumul cât mai puțin alterat de prezența golurilor, le-am mascat tot cu panouri de fibrociment perforat tip Swisspearl, finisaj cu care este placat tot volumul. Tot pentru neutralitatea ferestrelor, în ceea ce privește volumetria generală, ele au fost concepute având aceeași dimensiune 1mx1m. Panourile perforate din dreptul golurilor joacă și rolul de parasolare care alături de principiul fațadelor ventilate aplicat construcției, joacă un rol impor- tant în economia de energie. Culoarea albă atât la exterior, cât și la interior pune în evidență geometria specială a volumului.
Atât interiorul, cât și exteriorul prin mobilierul desenat special pentru acest imobil și video-wall-ul de la parter accentuează și fac în același timp acordul fin cu profilul firmei care-și desfășoară activitatea aici și care comercializează produse cu un grad înalt de tehnicitate: camere video, senzori de prezență, centrale de alarmă și altele.