
Comentariul autorului:
Monarsterium
Numele proiectului își are originile în cuvintele latine monasterium, locuință izolată, și ars, artă. Împreună, ele definesc un tip de locuire izolată dedicată artei, o mânăstire a spiritului. Ca loc pentru acest experiment social și arhitectural am ales biserica Crucilor, în inima Olteniei, în comuna Goiești, județul Dolj.
Căutând valorile ruinei și simbolurile care o definesc, am aflat că monumentul de cult este un receptaclu ce conține cunoștințe și spiritualitate multimilenară, că acest mesaj este potențat de starea sa de ruină, prin contemplare și introspecție și că acest conținut simbolic are puterea de a inspira act artistic contemporan.
Această ruină izolată reprezintă pentru mine locul perfect al unui refugiu de societate, unde artistul experimentează și își împinge limitele, unde poate schimba opinii, unde poate medita, contempla, învăța. Pe de altă parte, ea nu avea nicio șansă pe cont propriu: degradându-se rapid, în disperată nevoie de atenție și protecție, părea să aibă o frumoasă poveste de spus, dar pe nimeni să asculte. De aceea, am considerat că noua funcțiune și vechea prezență sunt perfecte una pentru cealaltă.
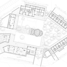
Devreme ce în Evul Mediu pe acest loc a existat o mică mânăstire, propunerea pentru colonie evocă forme și funcțiuni specifice. Am gândit o curte interioară pătrată și o alta pe forma vechiului cimitir, acum înnecat de vegetație. Biserica este punctul focal al întregii compoziții. În jurul ei, șapte clădiri (ca cele șapte zile ale săptămânii, cu biserica reprezentând a opta zi, eternitatea) se ridică toate către centru, ca părți ale unui volum originar întreg.
Peisajul este reprezentat de o pantă lină și mici „valuri”, care fac ca biserica să arate ca o corabie pe mare. Am considerat vitală păstrarea acestui aspect, așa că am gândit clădirile din jur parțial scufundate, într-un gest de smerenie, mai joase decât biserica, pline de respect și cumva distante față de aceasta. Solul extras, pământ sacru ce nu trebuie să părăsească situl, este folosit la crearea pantelor înverzite care conectează clădirile la peisaj, învelind și acoperișul, într-o citare a bordeiului tradițional din zonă.
Intervenția de pe monument învață la rândul ei din trecut. Părțile lipsă sunt recreate printr-un schelet metalic inspirat de vechea tradiție a legării bisericilor cu benzi metalice de jur împrejur.
Am vrut să creez o lume în miniatură, conținută în sine însăși, populată de personaje interesante și creative, crescând ușor într-o comunitate. Protejată, izolată, autonomă, această colonie de artă, acest MONarsTERIUM poate deveni rapid o atracție cunoscută mult dincolo de regiunea sa. Premisele sunt create : un sit care inspiră, într-o zonă greu accesibilă, toate facilitățile pentru trai și lucru în confort, un grup de artiști dedicați. În mijlocul tuturor, ruina, ca un martor, dar și ca un element activ, din nou în circuitul vieții, din nou încredințat cu rolul de a învăța, un păstrator prin veacuri.