
Comentariul autorului:
Sosiri, plecări, două acțiuni care pot provoca sentimente, dintre cele mai diferite și chiar contrare, într-un spațiu al întâlnirilor și despărțirilor, al speranței și disperării, al veseliei și tristeții, două acțiuni care transformă locul în simbol, în templu, în poartă... Toate obligă, provoacă emoția și teama autorului de a nu greși, dezamăgi sau înșela așteptarea colectivității impersonale care va avea față de lucrarea materializata, o apreciere pozitivă, negativă, evident subiectivă, legată însă de trăirile pe care clădirea o provoacă la prima vedere. Pornind de la ideea de simbol și poartă pe care gara de călători o capătă în timp, meritat sau nu, am ales ca sursă de inspirație logo-ul CFR și o boltă de vită de vie care te îndeamnă să pătrunzi în intimitatea ospitalieră a gazdei.
Proiectul a presupus intrarea în parametri internaționali de funcționare a Stației CF Pitești, în care una din componente este Gara de Călători. Condiții de proprietate au determinat păstrarea amplasamentului gării de călători, ceea ce a presupus demolarea unor construcții care formau vechea stație, inclusiv clădirea veche a Gării de Călători, pentru care restaurarea nu era o soluție eficientă.
Triajul din stația Pitești separă două cartiere Republicii-Gară și T. Vladimirescu, provocând locuitorilor inconveniente de circulație pietonală, situație schimbată radical prin noua gară formată din trei tronsoane (corpuri).
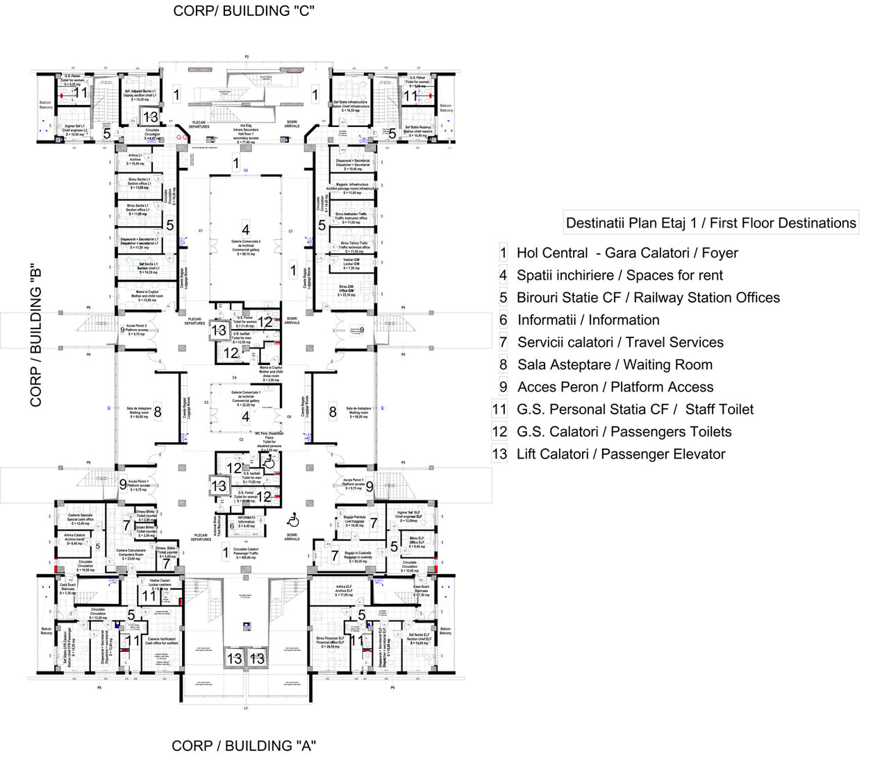
Corpul “A” cuprinde accesul principal, scări, scări rulante și lifturi pentru circulația pe verticală, spații pentru închiriere și accese separate pentru personalul Stației CF la parter, spații pentru birourile administrației stației la nivelul intermediar și la etajul 1.
Corpul “B” cuprinde spațiile destinate călătorilor – holul central-birou informații, case de bilete, săli de așteptare, toalete, spații de închiriat pentru : punct farmaceutic, ziare și reviste, café bar sau fast-food. Scări și lifturi asigură accesul la cele 4 linii de tren prin cele două peroane amplasate la parterul corpului “B”. Circulația trenurilor de călători (liniile CF 1,2,3si4), al celor de marfă (linia 5) a garniturilor ce execută manevre se desfășoară la nivelul parterului corpului “B”. În același corp ”B” sunt amplasate birouri pentru personalul implicat în dirijarea circulației și gestionarea traficului din Stația CF Pitești, toalete și spații de circulație pentru relațiile funcționale la nivel sau pe verticală.
Corpul “C” cuprinde un spațiu tehnic amplasat în subsol, spații de acces în gara de călători separate de cele ale personalului stației, spații destinate închirierii pentru funcțiuni comerciale, scări, scări rulante și lift pentru circulația pe verticală. Circulația călătorilor este dirijată pe cele două acțiuni – placări și sosiri – care se întrepătrund doar la nivelul etajului 1 prin intermediul spațiilor destinate închirierii pentru funcțiuni comerciale.
Doar imperturbabila trecere a timpului va decide dacă gara noastră va deveni un reper recuperat.