
Comentariul autorului:
The Lodge este situat pe unul din bulevardele principale din Constanța, fiind în același timp un restaurant, un loc pentru evenimente și un club.
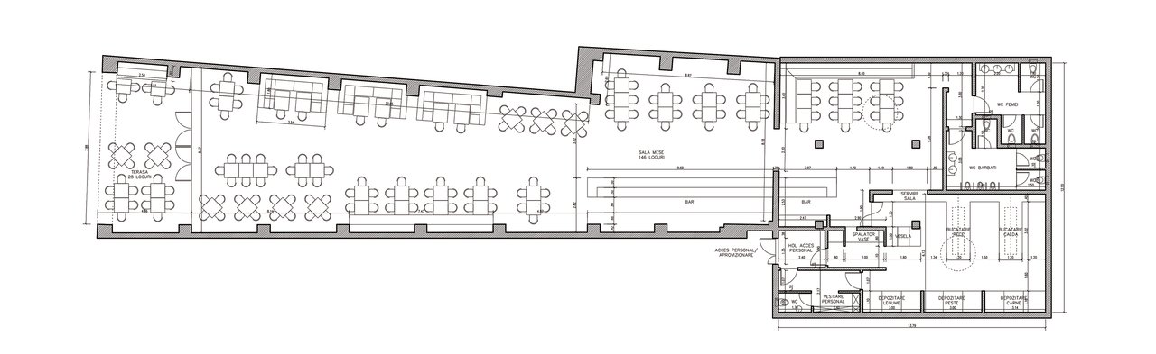
Spațiul dezvoltat foarte mult în adâncime (deschis către stradă și având ferestre doar pe o latură scurtă) a fost prelucrat cu elemente tipice design-ului american, acestea relaționând foarte bine cu o astfel de configurație - un spațiu lung și îngust. De altfel, această geometrie tipică design-ului american a fost punctul de pornire în căutarea și formularea soluțiilor. Tot configurația alungită a spațiului ce nu dispune de suficientă lumină naturală a impus existența unei varietăți de corpuri de iluminat. De altfel, întreaga amenajare se bazează pe jocul între lumini și umbre, punând în evidență diversele materiale utilizate: cărămida recuperată și reutilizată, betonul aparent al plafoanelor, elementele de lemn antichizat, cadrele de metal. Modul în care aceste materiale au fost dispuse, tipurile diverse de corpuri de iluminat și tratarea pardoselilor au condus la delimitatarea zonelor.