
Comentariul autorului:
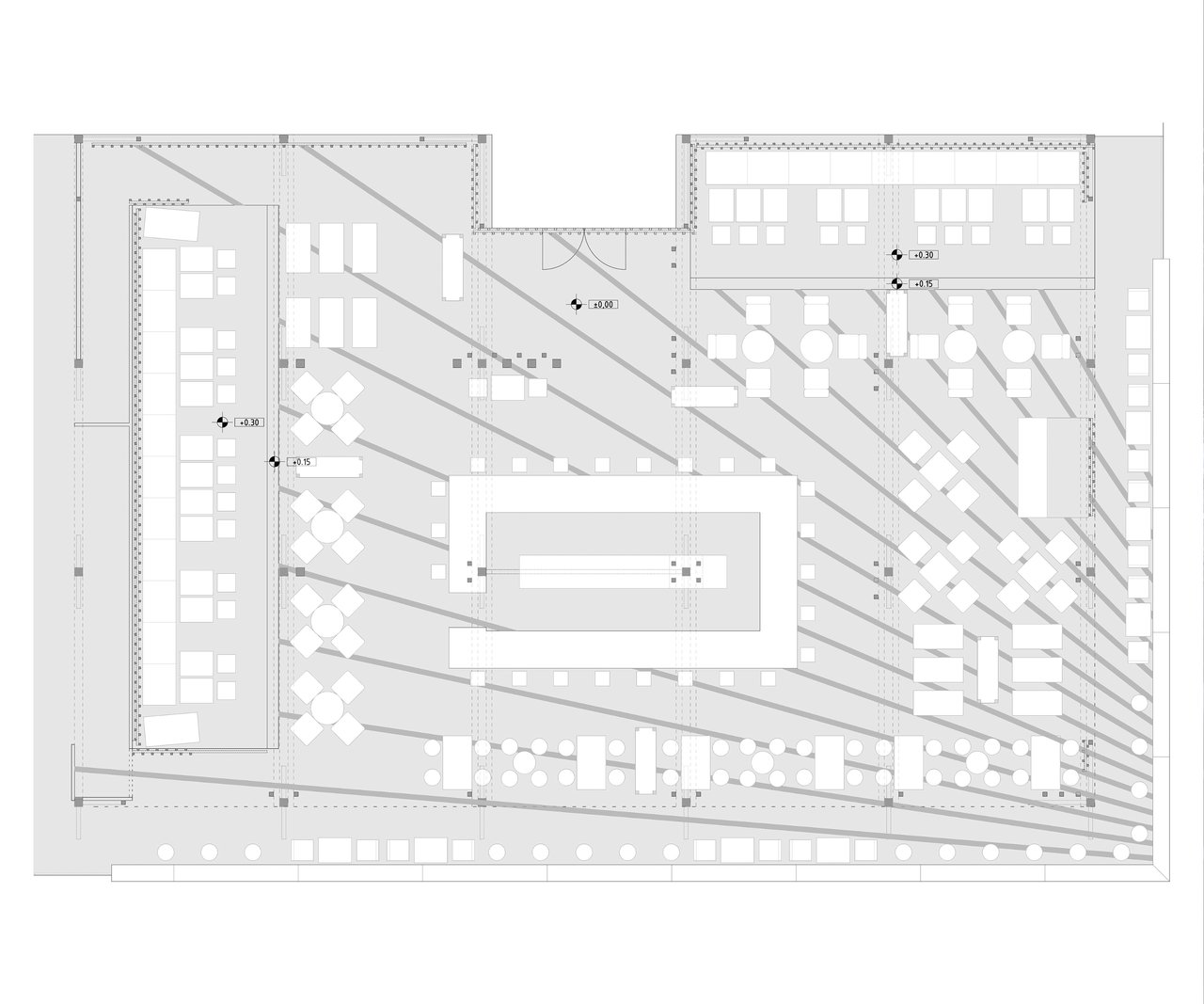
O terasă restaurant şi bar la lacul Herăstrău este un loc al întâlnirii şi al contemplării.
Pentru tipologia de clienţi dorită de către beneficiari, discursul arhitectural trebuia să dezvolte valenţe de identitate puternice, astfel încât locaţia nou creată să poată avea şansa spre a deveni unul din noile locuri de întâlnire ale oraşului.
Noua „verandă“ la lac oferă în cadrul conceptului propus o platformă a negocierii, un dialog la distanţă între stări şi senzaţii.
Antagonismul acestor senzaţii este prezent în binoame oferite percepţiei imediate, precum: lemn vs gri, opac vs transparent, verde natural vs grafică abstractă, etc...
De asemenea, senzaţia mentală generală de „cunoscut“ vs „noutate“ este unul din atributele generale ale strategiei.
Detaliile lejere, simple care îl primesc pe vizitator sunt dorite în a păstra fără o falsă contextualizare, legătura cu ideea de locaţie în natură. Eşti acolo pentru că natura este opulentă şi vrei să simţi asta. De aceea lemnul este tradus ca elementul cu prezenţa determinantă în noua locaţie şi diversele variante de finisare pe care le-a primit local sunt nivele ale unor grade de percepere.