Ediții: 2023 | 2021 | 2018 | 2016 | 2014 | 2012

Admitere arhitectură - propuneri şi subiecte

Autor:
Dragoş Ciolacu
Volumul “Admitere Arhitectură - Propuneri şi Subiecte” se adresează în primul rând viitorilor candidaţi la concursul de admitere la arhitectură, dar şi studenţilor, fiind un bun îndrumar didactic corelat cu programa de învăţământ. Toate facultăţile de arhitectură din ţară au scos publicaţii adresate candidaţilor, unele chiar cu apariţie periodică, de unde şi titlul comun dat acestei cărţi. În general acest gen de publicaţie se rezumă la prezentarea unei secţiuni teoretice pe domeniul desenului tehnic şi artistic şi la o exemplificare prin subiectele date şi rezolvate la sesiunile precedente ale admiterii. Pornind de la acest nucleu tematic volumul de faţă dezvoltă şi alte capitole utile pe parcursul studiilor şi chiar amatorilor dornici să-şi completeze cultura generală.
Dezvoltat în peste 500 de pagini A4, cuprinsul volumului este concis în partea teoretică şi foarte abundent în imagini explicative. Cartea se deschide cu un cuvânt înainte al prof. dr. arh. Virgil Onofrei, mentorul şcolii de arhitectură de la Iaşi şi beneficiază de aportul referenţilor conf. dr. arh. Mariana Fărtăţescu şi sl.dr.arh. Tudor Grădinaru de la aceiaşi facultate.
După un set de recomandări, volumul continuă cu un capitol de studii şi reprezentări geometrice susţinute de subiecte practice. Urmează capitolul despre umbre şi unul despre rezolvarea geometrică a şarpantelor cu exemplificări, deosebit de utile în practica arhitecturală.
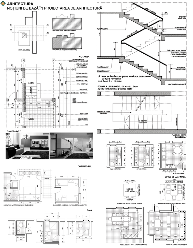
Capitolul dedicat geometriei ca disciplină matematică vine prin întinderea sa să suplinească lipsa acestui studiu din învăţământul preuniversitar. Noţiunile de bază ale proiectării de arhitectură cu dimensiuni şi reprezentări ale pieselor desenate şi exemplificări din arhitectura contemporană de referinţă, sunt tratate într-un capitol separat.
Urmează o cronologie a arhitecţilor români şi universali cu biografiile şi operele lor reprezentative.
În sfârşit, partea cea mai importantă a cărţii oferă exerciţii de pregătire cu rezolvări selectate din cele mai reuşite desene ale candidaţilor, urmate de o cronologie a subiectelor la admitere din ultimii ani la Iaşi şi Bucureşti, însoţite de foile de concurs notate spre exemplificare.
Volumul se încheie cu un lexicon ilustrat care acoperă toate domeniile uzuale ale arhitecturii. Manualul este foarte solicitat nu numai de ieşeni ci şi de potenţialii candidaţi din celelalte centre universitare ceea ce ne face să credem în utilitatea lui şi a demersului nostru.

Panou pentru expoziție

Click pe panou pentru a-l vedea la mărimea orginală (se va deschide într-o fereastră nouă)