Ediții: 2023 | 2021 | 2018 | 2016 | 2014 | 2012

Em

Autori:
Alexandru Adam, Roger Pop, Monika Koryczan
Colaboratori:
Instalatii: AV Solution
Lucrari: Creative Paving, M. Barlan, High Class Design, BTI, Artelier, Roll Service
Foto: Cornel Lazia
Localizare:
România
Indicatori:
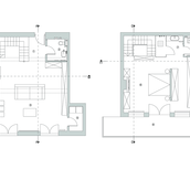
Sd: 137 m2 / Su: 108 m2
Lucrarea reprezintă un proiect de design al unui apartament din Bucureşti pe două niveluri.
Obiectivul principal a fost de a crea un interior aerisit, spaţios şi modern. Planurile de oglinzi creeză un joc între realitate şi iluzie optică, astfel interiorul devenind mult mai spaţios. Albul jocă un rol important în designul de interior al apartamentului, creând o combinaţie expresivă împreună cu piesele de mobilier colorate. Biblioteca realizată din MDF finisat în alb şi roşu a fost proiectată de echipa AA Studio. Foile de plexiglass care acoperă LED-urile creează un fundal colorat bibliotecii.
Majoritatea obiectelor de mobilier sunt personalizate. Lavoarul negru a fost personalizat la cerera noastră prin modificarea culorii din alb în negru. Corpurile de iluminat se limiteză la forme simple, singurul corp de iluminat decorativ găsindu-se în baia de serviciu şi deasupra scării.
Luminile RGB creeză o gamă de culori care modifică atmosfera interiorului.
Pardoseala este finisată în alb cu răşini sintetice, cu excepţia băii de la etaj ai cărei pereţi şi pardoseală sunt realizate din Corian. Pardoseala dormitorului matrimonial şi a dressingului sunt integral finisate cu mochetă albă. Combinaţia de alb, negru şi portocaliu creeză un accent de culoare puternic în baia de serviciu. Piesele de mobilier precum lavoarul şi candelabrul alături de radiatorul transformă baia într-un spaţiu original şi plin de viaţă. Suprafeţele de oglindă ce îmbracă aproape în întregime pereţii băilor amplifică impresia de spaţialitate şi lejeritate. Echipamentul băii de la etaj este modern şi discret.

Panouri pentru expoziție

Click pe panouri pentru a le vedea la mărimea orginală (se vor deschide într-o fereastră nouă)