Ediții: 2023 | 2021 | 2018 | 2016 | 2014 | 2012

Şcoala de Muzică şi Arte

Autori:
Lucian Marius Luţă, Liviu Marian Fabian
Colaboratori:
Proiectant general : S.C. Vienna Consulting Engineering S.R.L.
Structura : ing. Gabriel Netoiu (Firma : DuctilTech Srl)
Instalatii electrice, HVAC, sanitare : S.C. Solidinstal S.R.L.
Consultanta tratamente acustice : arh. Marius Smighelschi, arh. Radu Pana
Executant : S.C. Cam Construct Engineering S.R.L
Beneficiar:
Liceul Teoretic Al.I.Cuza - Centrul de executie bugetara
Localizare:
România, Bucureşti, str. Gheorghe Petraşcu nr. 49 vezi harta
Indicatori:
RH: S+P+2 / Sd: 5100 m2 / Su: 4080 m2 / POT: 27,8% / CUT: 0,82
Scoala de Muzica si Arte este un proiect destinat copiilor cu varste intre 8-18 ani si cuprinde urmatoarele discipline artistice: muzica, arte plastice, teatru, coregrafie. Scoala este situata in apropierea unui nod urban important (P-ta Muncii) si va fi un element polarizator al zonei. Vecinatatile imediate (parc Gh. Petrascu, Scoala nr. 75) completeaza armonios activitatile ce se vor desfasura aici. In viitor, in functie de organizarea administrativa, ar putea deveni un mic centru cultural unde se pot organiza diferite evenimente artistice.
Spatiile au fost grupate dupa criteriul functional pentru o zonificare clara a disciplinelor si o comunicare cursiva intre ele.
Parterul si o parte din subsol sunt zone de interfata cu publicul. Foyerul salii de festivitati poate fi folosit si ca spatiu expozitional, in legatura cu spatiul artelor plastice si forumul de la subsol, datorita comunicarii vizuale dintre aceste spatii.
Forumul situat la subsol este un spatiu central al cladirii, vizibil din multe spatii ale scolii. Este un spatiu polivalent unde se pot organiza expozitii, concerte, conferinte, de asteptare. Este un spatiu public protejat ce se poate extinde si in exterior prin doua terase cu gradene.
Pe langa atelierele de arte plastice, parterul mai contine si o sala de lectura, o garderoba pentru salile de concerte, un centru de print si un laborator web-art.
Salile de festivitati si concert cameral au fost cuplate in acelasi volum exprimat clar in exterior. Accesul catre sali se poate face si direct din exterior, pentru evenimente in afara sistemului scolar. Sala de festivitati poate gazdui spectacole de teatru, de dans, diverse concerte, conferinte.
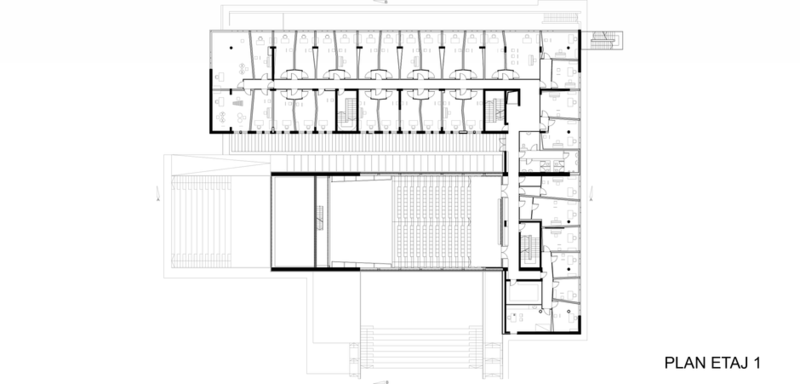
Etajul 1 si o parte a etajului 2 au fost dedicate zonei de muzica. Spre deosebire de dinamismul si transparenta spatiilor interfata de la nivelele parterului si subsolului, zona de muzica este opaca fata de alte spatii interioare datorita conditionarilor acustice impuse de insasi functionarea optima a acestor spatii. Etajul 1 este un mecanism inchis a carui functionare este dictata de studiile acustice. Am folosit tratamente acustice clasice: evitarea paralelismelor intre suprafetele orizontale si verticale ale salilor de instrumente si introducerea unor vestibuluri intre coridor si salile de instrumente. Structura si finisajele peretilor si tavanelor au fost stabilite in urma calculelor acustice.
La nivelul imaginii exterioare am optat pentru o unificare a spatiilor de muzica de la etajul 1 prin intermediul unei benzi orizontale vitrate de-a lungul salilor de muzica.
Etajul 2 este impartit in doua zone, separate si prin diferenta de nivel. Zona mai joasa este compusa din spatii mai ample de curs teoretic sau pentru ansambluri instrumentale si corale iar zona mai inalta este destinata artei coregrafice. Cele doua sali de dans interactioneaza vizual cu exteriorul prin deschiderea ampla a peretelui vitrat dinspre sud. Astfel spatiul de desfasurare a dansului poate fi expus public pentru a exprima cu sinceritate functiunea si pentru a atrage atentia trecatorilor interesati de acest tip de arta.

Panouri pentru expoziție

Click pe panouri pentru a le vedea la mărimea orginală (se vor deschide într-o fereastră nouă)