Ediții: 2023 | 2021 | 2018 | 2016 | 2014 | 2012

Imobil birouri S+P+2E, str. Amman nr 2b, Bucureşti

Autori:
Andra Rădulescu, Radu Rădulescu
Localizare:
România, Bucureşti, str. Amman 2B vezi harta
Indicatori:
RH: S+P+2Et. / Sd: 345 m2 / POT: 40% / CUT: 1,3
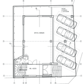
IMOBIL BIROURI S+P+2E // STR. AMMAN NR 2B, SECTOR 1, BUCURESTI

Suprafata construita - 76,12 mp.
Suprafata desfasurata - 345,36 mp.
P.O.T. - 40 %
C.U.T. - 1,30
Amprenta la sol a noii constructii are o latime de aprox. 6,58 m si o adancime de aprox. 13,05 m. Imobilul se dezvolta cu console la etajele 1 si 2.
Caracteristicii constructive: subsol BA in sistem radier general, structura in cadre cu planesee BA, invelitoare – terasa. Peretii exteriori - zidarie de caramida ceramica eficienta termic tip POROTHERM 25 + placare polistiren expandat de exterior 10 cm . Tamplaria - Aluminiu cu geam termopan.

Panouri pentru expoziție

Click pe panouri pentru a le vedea la mărimea orginală (se vor deschide într-o fereastră nouă)