2025
2023
2021
2018
2016
2014
2012
Parteneri
Contact
BNA
Ediția 2018
Proiecte
Arhitectura rezidențială
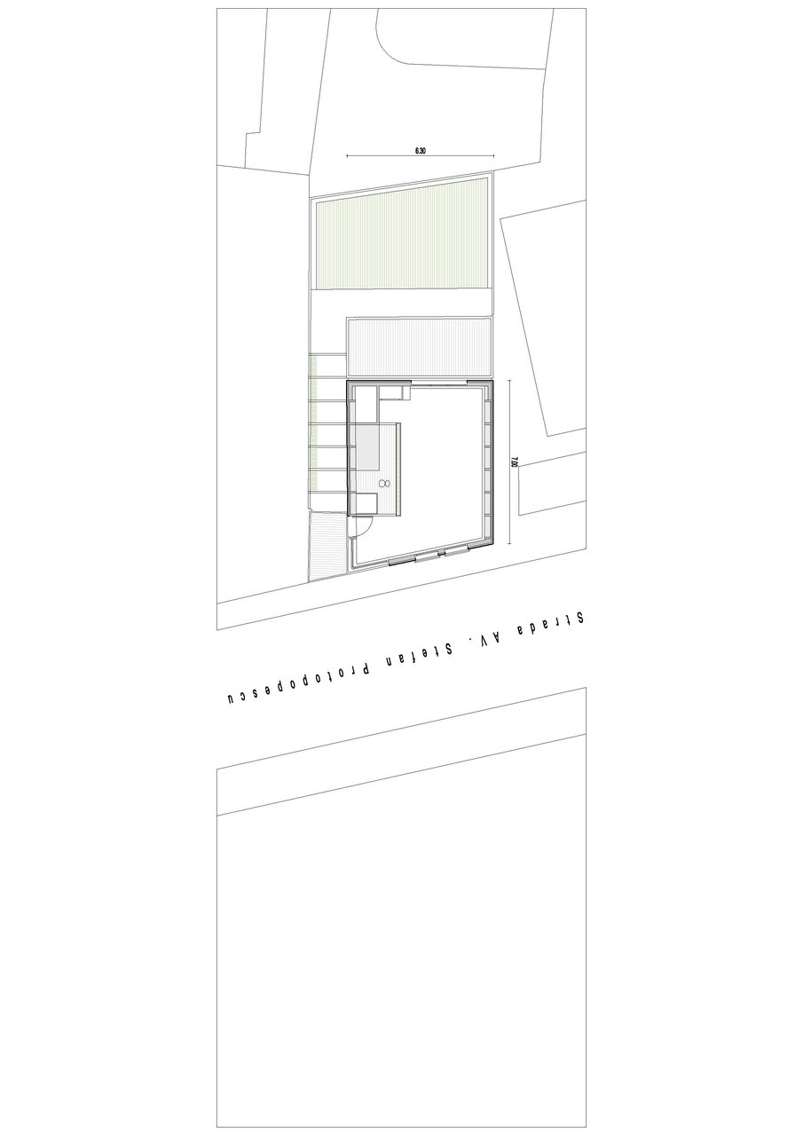
C_LAD
Author(s):
Justin Baroncea, Dragos Dragnea
Location:
România, București
Building parameters:
Floors:
D+P+1E+M
/
Total gross area:
258 m
2
/
Site coverage:
54%
/
Site ratio:
3.68
Comentariul autorului:
‹
›
zoom in
zoom out
fit height
fit width
close panel