2025
2023
2021
2018
2016
2014
2012
Parteneri
Contact
BNA
Ediția 2018
Proiecte
Arhitectura rezidențială
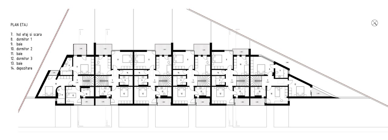
Arcstil Residences - Locuinte înșiruite
Author(s):
Bogdan - Constantin Neagu, Iulian Oanță
Location:
România, București
Building parameters:
Floors:
P+1E
/
Total gross area:
1127 m
2
/
Total net area:
958 m
2
/
Site coverage:
30%
/
Site ratio:
0.6
Comentariul autorului:
‹
›
zoom in
zoom out
fit height
fit width
close panel