2025
2023
2021
2018
2016
2014
2012
Parteneri
Contact
BNA
Ediția 2018
Proiecte
Arhitectura rezidențială
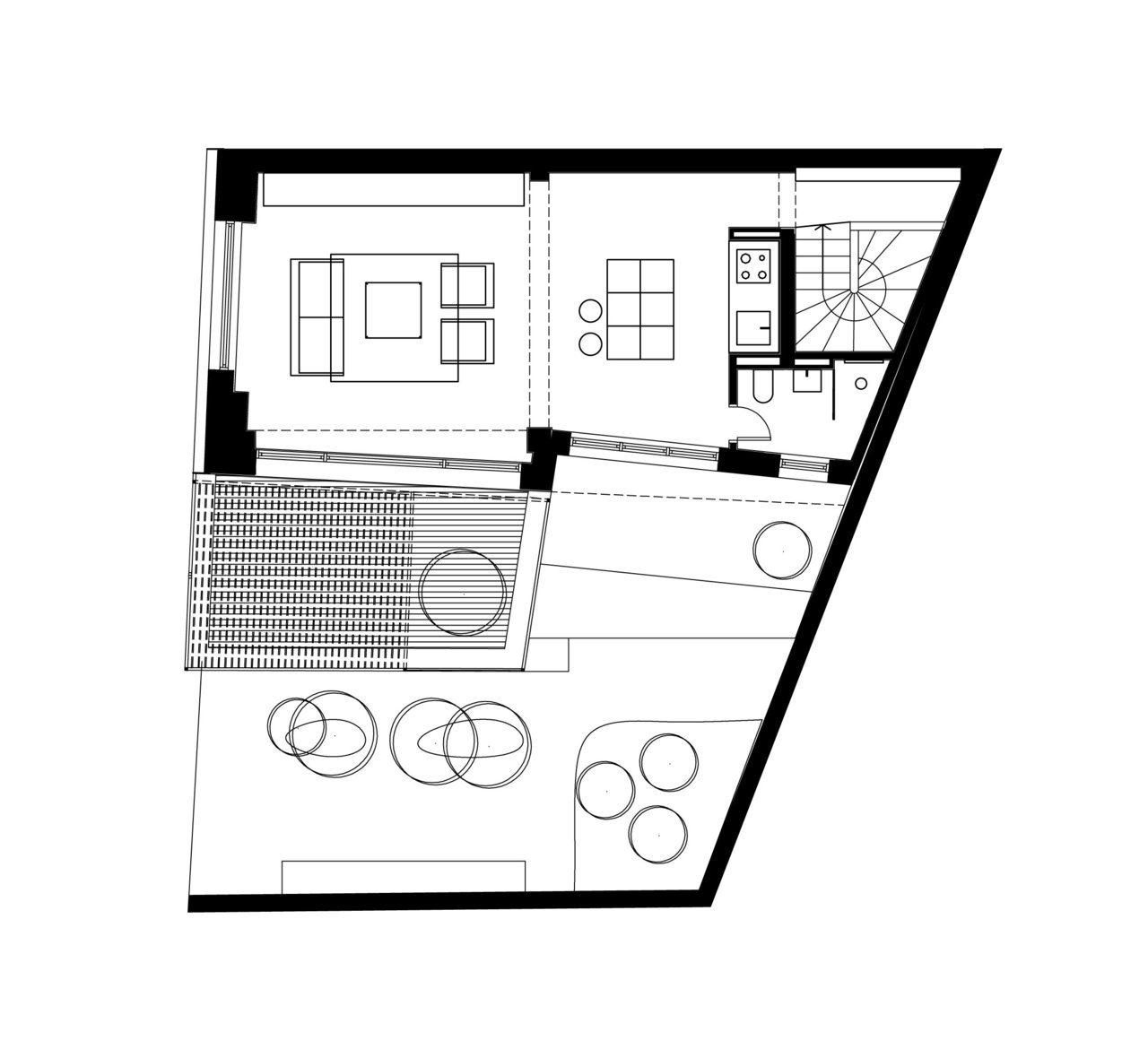
Casa Sfinții Voievozi 16
Author(s):
George Postelnicu, Oana Postelnicu, Sergiu Leucă
Location:
România, București
Building parameters:
Floors:
S+P+1E+M
/
Total gross area:
350 m
2
Comentariul autorului:
‹
›
zoom in
zoom out
fit height
fit width
close panel