
Comentariul autorului:
Scopul proiectului este explorarea unei posibilități de recuperare și relevare a moștenirii culturale și istorice a stațiunilor balneare din jurul lacurilor sărate, valorificarea resursei naturale și maximizarea potențialului curativ al băilor de sare și al nămolului sapropelic prin crearea de spații dedicate pentru diferite proceduri specifice, dar și crearea unui spațiu de vindecare sigur, plăcut și recomfortant.
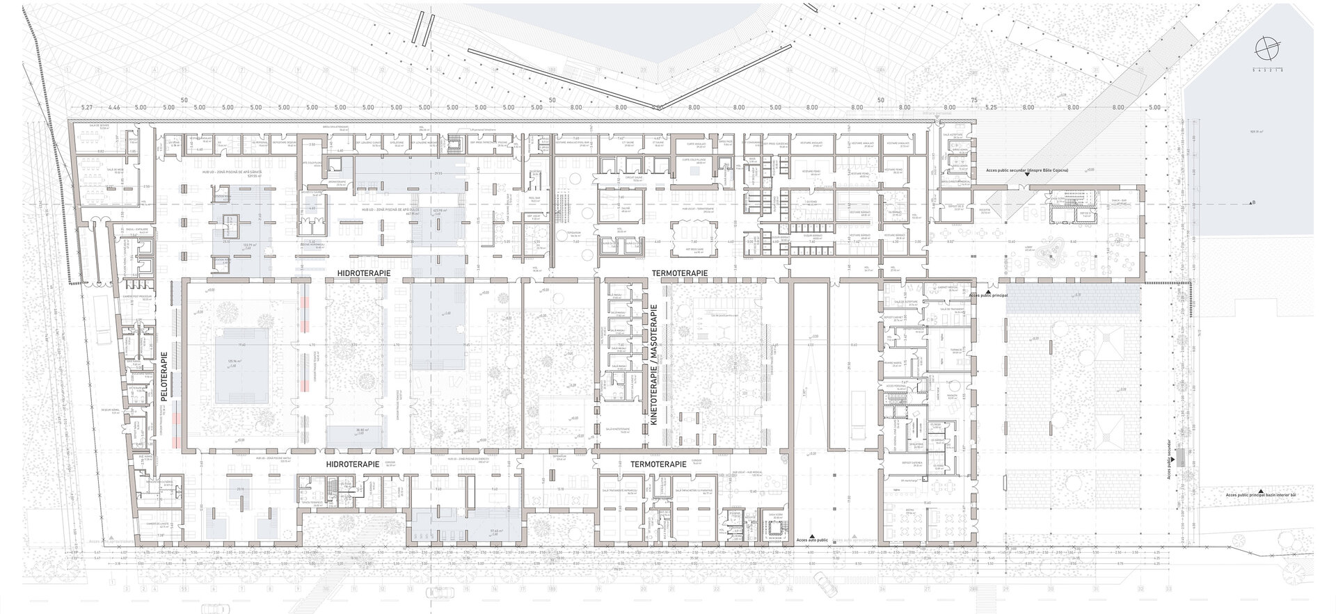
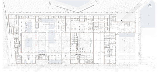
Planimetria răspunde nevoilor funcționale ale programului, cum ar fi separarea departamentelor medicale de cele pentru proceduri de bunăstare (wellness), circulații distincte pentru pacienți, turiști și personal, camere tehnice generoase pentru echipamentul aferent piscinelor și, cel mai important, crearea unei atmosfere specifice și potrivite fiecărei proceduri.
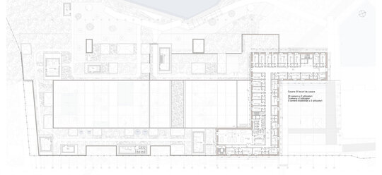
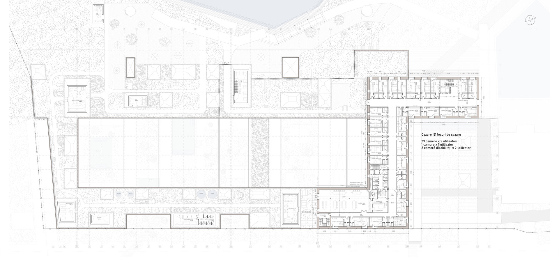
Coridoarele translucide conectează cele 2 volume ale clădirii (cel pentru proceduri de wellness, înspre malul lacului, și cel pentru proceduri medicale, la stradă) și au diferite trasee tematice, incurajând utilizatorii să se plimbe și să exploreze baza de tratament. Acoperișurile piramidale sunt inspirate din formele galeriilor de mină de sare, și sunt un omagiu adus topografiei sitului.
Una dintre direcțiile de concept ale proiectului a fost folosirea materialelor naturale, pe cât posibil locale, care să necesite cât mai puține tratamente și alterări pentru a fi rezistente la umezeală și mucegai. Am ales astfel ca principal material de construcție un agregat de pământ bătut stabilizat. Acest agregat conține majoritar pământ local (fără material organic, deci de sub stratul vegetal), calcar și un procent mic de ciment Portland (sub 10%), armat cu bare metalice, la fel ca betonul. În ceea ce privește sistemul structural, pământul bătut va fi folosit în combinație cu betonul armat (fundații, grinzi și planșee).
Materialul rămâne aparent și nu are nevoie de finisaje.