
Comentariul autorului:
Așezată pe malul Lacului Mogoșoaia, Casa HA20.2 reprezintă o expresie a luxului minimalist, concepută de echipa Hype Project în anul 2024. Cu o suprafață desfășurată de 480 m², minuțios proiectată pe un teren de 1.200 m², această reședință redefinește arta echilibrului, unde fiecare linie, volum și material se întâlnesc într-un melanj armonios de eleganță, confort și seninătate.
În esența sa, Casa HA20.2 îmbrățișează minimalismul dincolo de simple estetici - este o filosofie modelată prin reținere, precizie și intenționalitate. Liniile geometrice clare organizează compoziția, ghidând privirea cu naturalețe peste fațadele luminate de vitraje ample, care îmbrățișează lumina naturală, păstrând totodată discreția necesară locatarilor. Aceste suprafețe vitrate încadrează peisajul din jur, surprinzând perspective ample asupra lacului liniștit și vegetației luxuriante, invitând beneficiarii la un dialog intim cu natura.
Această retragere lacustră a fost concepută pentru o experiență lipsită de griji a vieții cotidiene, unde liniile spațiale curate induc o stare de calm și sofisticare atemporală. Jocul dintre spațiile de zi cu plan deschis se continuă în sanctuare private: dormitoare en-suite, cu zone de wellness și spații de contemplație, conectate printr-o coregrafie subtilă de lumină, perspective și volume, gândite atât pentru viața de familie, cât și pentru repaus individual.
Sensibilitatea climatică ghidează întregul design: deschiderile generoase permit iluminarea naturală abundentă și ventilarea în climatul temperat al Mogoșoaiei, în timp ce elementele de umbrire atent integrate (naturale sau arhitecturale) reglează căldura și lumina pe tot parcursul zilei. Această receptivitate față de mediu ridică nivelul de confort fără a compromite puritatea formei.
Materialele au fost alese cu o atenție aparte: suprafețe care rezistă și evoluează odată cu trecerea timpului. Lemnul natural, piatra rafinată și compozitele durabile se reunesc într-o paletă tactilă și sobră: discretă, dar bogată în texturi. Eleganța lor decurge din experiența senzorială și autenticitatea materialului, nu din ornamentație.
Arhitectura subliniază claritatea spațiului și atenția la detaliu, poziționând casa în segmentul premium. Fiecare element, de la proporții la finisaj, vorbește despre calitate, măiestrie și o etică a designului care privilegiază eleganța în locul ostentației.
Amplasată într-un sit liniștit, locuința nu domină peisajul, ci se integrează armonios în acesta. Topografia îi conturează forma; vegetația, planurile de terasă și pragurile exterioare contribuie la o tranziție firească între interior și exterior. Nu este doar o casă, ci un mediu contemplativ care hrănește confortul, intimitatea și legătura cu poezia cotidiană a lumii naturale.
Casa HA20.2 este mai mult decât o reședință. Este o distilare arhitecturală a seninătății—un sanctuar modern, exprimat prin geometrie minimalistă, scăldat în lumină, ancorat în sit și înnobilat prin integritatea materialelor. Ea îi invită pe locuitori nu doar să trăiască, ci să locuiască în pace, simplitate și rafinament.
Intenții de design:
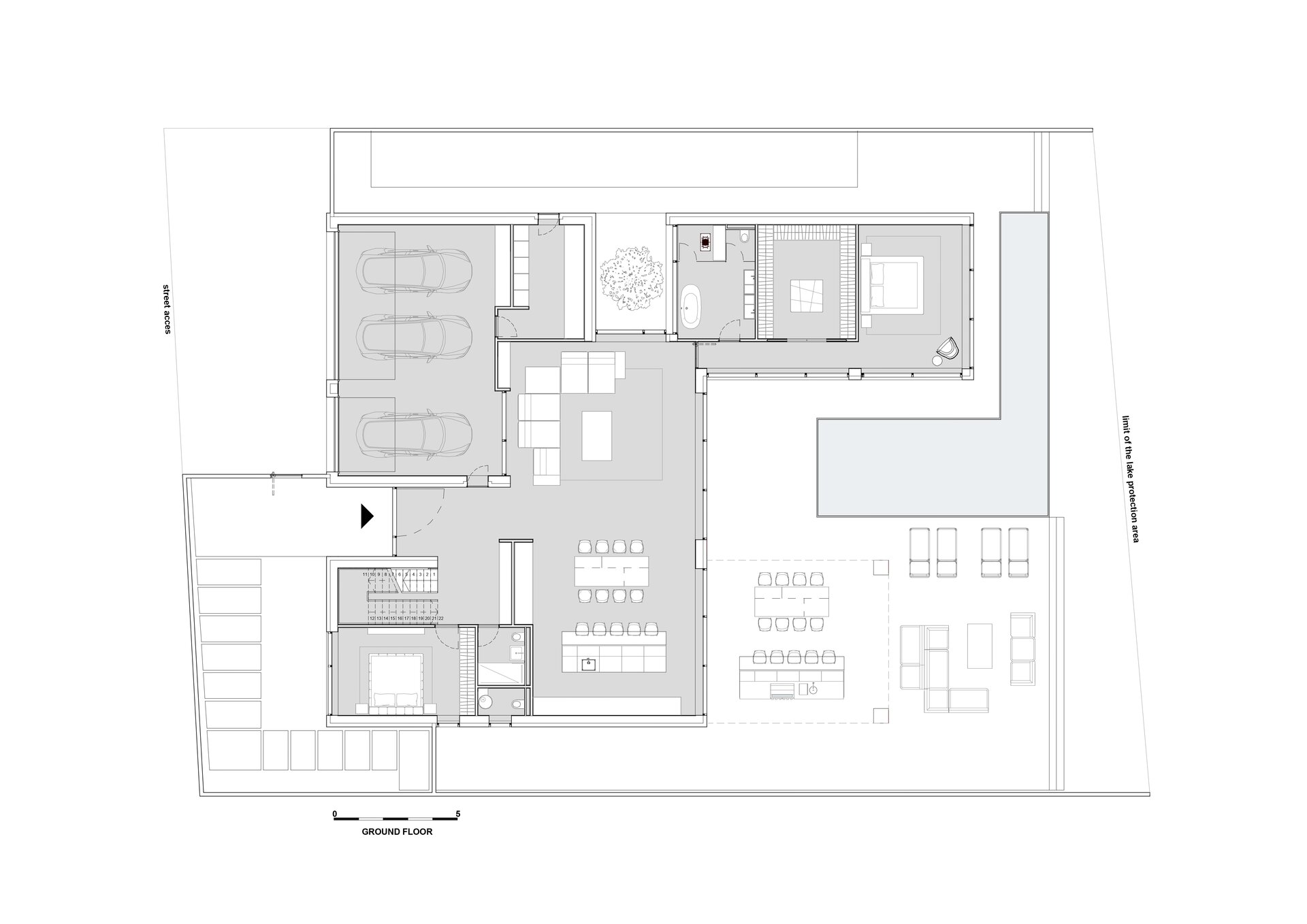
Intenția principală de design a fost aceea de a crea o reședință privată de nivel înalt, care să maximizeze experiența legăturii cu natura, asigurând în același timp intimitatea și discreția. Terenul beneficiază de o amplasare privilegiată în apropierea unui lac, iar casa este orientată pentru a îmbrățișa această priveliște prin vitraje ample și perspective atent încadrate.
Arhitectura reușește să atingă un echilibru între puritatea formei și sensibilitatea contextuală. Deși volumele sunt clare și monolitice, ele răspund topografiei terenului, traiectoriei soarelui și vânturilor dominante. Materialele au fost selectate pentru calitățile lor tactile și durabilitatea în timp, consolidând astfel noțiunea de lux discret și atemporalitate.
Cerințe funcționale:
Planul spațial a fost dezvoltat pentru a susține un stil de viață calm și organizat. Acesta include:
• O zonă generoasă de living, dining și bucătărie cu plan deschis, cu acces direct către o terasă orientată spre lac
• Trei dormitoare, fiecare conceput ca suită privată, cu băi integrate și priveliști spre grădină sau lac
• O suită matrimonială cu zonă de wellness dedicată și o terasă privată în aer liber
• Spații tehnice integrate eficient pentru a păstra estetica minimalistă
• Garaj și spații de depozitare secundare, armonios integrate în arhitectură
Aspecte legate de buget:
Proiectul este poziționat în segmentul rezidențial high-end, unde calitatea și integritatea designului au prioritate. Costul estimat pe metru pătrat reflectă utilizarea materialelor premium, detaliilor personalizate și sistemelor constructive integrate, adaptate atât pentru eficiență energetică, cât și pentru armonie vizuală. Bugetul a inclus, de asemenea, soluții avansate de vitraj, inginerie structurală specifică amplasamentului și design peisagistic menit să amplifice