
Comentariul autorului:
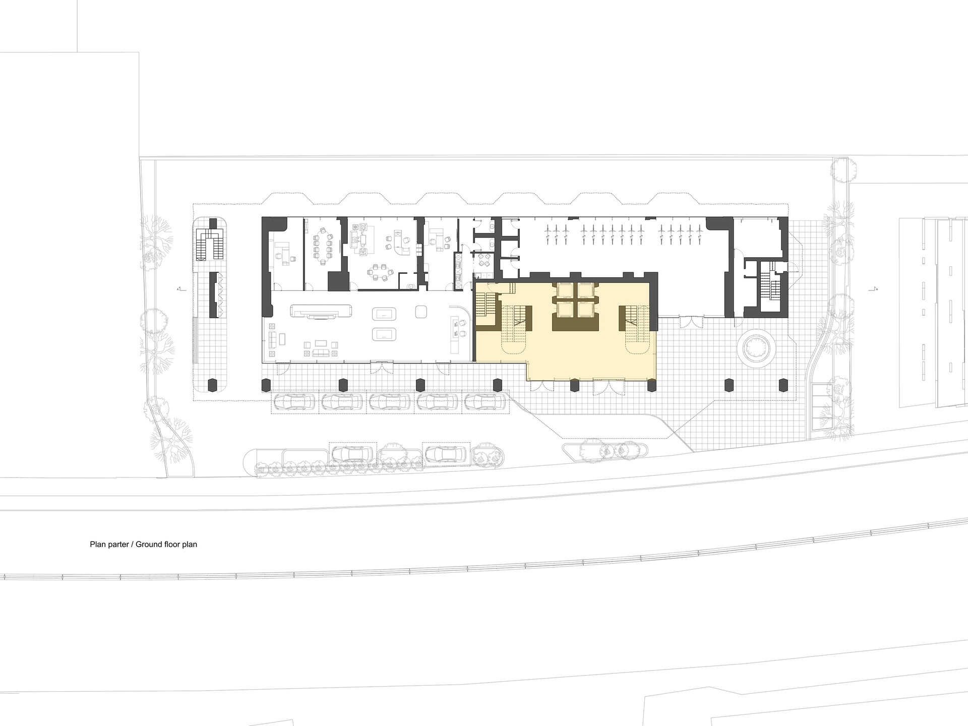
Interioarele BHB Avenue se definesc printr-un dialog între eleganță, rafinament și confort urban contemporan. Lobby-ul, generos și luminos, devine un spațiu de reprezentare, unde volumele ample, finisajele prețioase și luminile sculpturale creează o atmosferă spectaculoasă și primitoare.
Circulațiile interioare sunt tratate cu rigoare și subtilitate, prin contraste de texturi și accente de iluminat, transformând traseele de zi cu zi în experiențe vizuale memorabile.
Spațiile de relaxare – piscina interioară, zona de wellness și terasa panoramică – propun un limbaj coerent, ce îmbină naturalețea materialelor cu tehnologia contemporană. Jocurile de lumină și reflexiile apei amplifică senzația de intimitate și liniște, creând un cadru de respiro în mijlocul orașului.
Ansamblul reușește să transmită ideea de locuire premium, unde estetica și funcționalitatea se completează într-un mod armonios și atemporal.