
Comentariul autorului:
Casa cu două terase
Amplasată pe Valea Neagră, in cartierul Firiza al municipiului
Baia Mare, casa de vacanță se înscrie într-un peisaj dominat de
pădure și de un versant ce urca în spatele terenului.
Beneficiarii și-au dorit o locuință de vacanță flexibilă, care să le
ofere atât confortul personal, cât și posibilitatea de a fi închiriată
în regim Airbnb.
Un element central al conceptului a fost relația dintre interior și
exterior, mediată prin cele două terase:
- Terasa de nord, descoperită, protejată de o pânză retractabilă,
devine locul umbros și răcoros pentru zilele de vară, oferind o
perspectivă amplă asupra dealului și pădurii;
- Terasa de sud, acoperită, se deschide către soare și este
gândită pentru utilizarea în sezoanele de primăvară și toamnă,
atunci când lumina și căldura devin parte din experiența locuirii.
Pentru a controla expunerea fațadei sudice, vitrată pe o înălțime
generoasă, a fost introdus un balcon filtrant, închis cu riflaje de
lemn. Acesta temperează radiația solară directă, asigurând
totodată un joc subtil de lumină și umbră în interior.
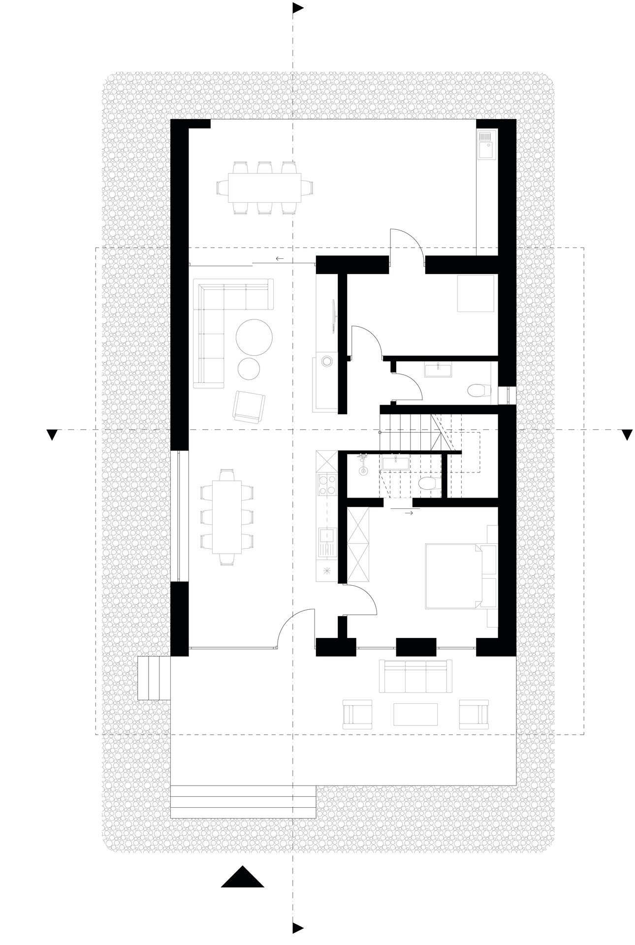
Planul interior este organizat în jurul zonei de living, dining și
bucătărie, tratată ca spațiu deschis, fluid, cu bucătăria plasată
central între cele două terase – facilitând astfel accesul direct
către ambele. Cele trei dormitoare sunt prevăzute fiecare cu
baie proprie, răspunzând cerinței de a putea acomoda grupuri
de turiști în condiții optime de confort și intimitate.
Casa valorifică din plin peisajul spectaculos și aduce împreună principiile de locuire contemporană, ospitalitatea și respectul față de natură.