
Comentariul autorului:
Vistier 13
Amplasament:
piața Ovidiu, Constanța, România
Autori: arh. Rareș Marian Cristu
arh. Adriana Maria Popa
Colaboratori: Lyset Lighting
Birou: Arhitectonic Design Studio
Descriere proiect:
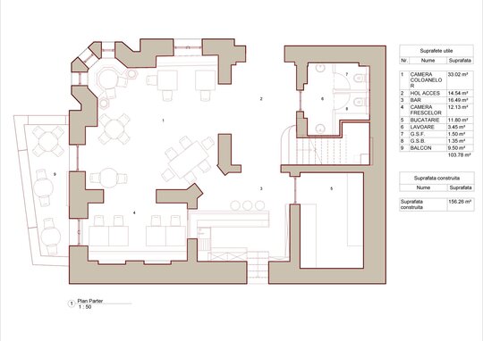
Suprafața construită : 156,26 mp
Suprafața utilă: 103,78 mp
Costul de investiție: 750 euro/mp
Acest proiect are un loc deosebit în portofoliul nostru, pentru că ne-a transportat cu aproape 100 ani în urmă. Clădirea din care face parte actualul resturant de vinuri datează din anii 1894. Istoria clădirii începe cu Alice Wegener, o tânară care își construiește casa, însă după moartea acesteia, locuința ei urmează un parcus de tranzacții și extinderi și ajunge astăzi, cunoscută sub numele Casa Damadian.
Deși, nu este introdusă în patrimoniul cultural al României, ridicată în forma actuală în deceniul al treilea al secolului trecut, casa Damadian păstrează tușe ale arhitecturii neoromânești.
Spațiul interior așa cum l-am descoperit noi, avea pereți din caramidă plină și coloane originale, dar planșeele și elementele structurale au suferit numeroase consolidări și restaurări. Se poate observa că spațiul păstrează rămășițe din tot parcursul transformării casei cu potențial cultural deosebit.
Având în vedere încărcătura istorică, am luat decizia să readucem frumusețea de altădată a spațiilor interioare. Elementul principal al acestora era cărămida. Din acest motiv, am ales să începem cu un proces de recuperare a cărămizilor prin curățarea și perierea pereților și injectarea mortarului de var hidraulic.
Au fost facute reparații la nivelul pardoselilor și a tavanului pentru a aduce un spațiu dat uitării într-o formă nouă – a unui restaurant bazat pe degustarea de vinuri.
Într-un spațiu de aproximativ 100 mp au fost amenajate cele 2 săli: camera coloanelor și camera frescelor, care comunică printr-o arcadă din caramidă, barul, bucătăria și zona de băi.
Pereții au fost lăsați liberi de mobilier, iar pe conturul camerelor, la nivelul tavanului au fost amplasate niște lumini orientate astfel încât, să pună în valore formele spațiilor. Folosirea luminii artificiale calde, a unor corpuri centrale și a numeroaselor corpuri secundare focusate pe zone de interes, a apărut în urma unei observații: în zilele de vară razele soarelui scăldau pereții din cărămidă și nuanțele roșiatice ale acestora emanau o clădură și o lumină liniștitoare, pe care am încercat să o readucem și în serile răcoroase.
În mod evident, intervenția se prezintă într-o formă contemporană, iar zona barului întărește această viziune, a unui spațiu dinamic și variat. Proiectul special din zona barului a fost punerea în operă a unui corp suspendat format din sticlele de vinuri cele mai de seamă.