
Comentariul autorului:
Clădirea de recepție a fabricii De’Longhi din Jucu-Herghelie este gândită ca un reper și un prag: poarta simbolică a unui vast complex industrial și, totodată, punctul cotidian de acces pentru mii de angajați. Încă de la început, tema a cerut o construcție care să iasă în evidență în contextul industrial, oferind o primă impresie puternică și memorabilă. Rezultatul este o arhitectură care transformă un program funcțional – acces controlat, recepție, zone de așteptare și birouri – într-o declarație emblematică ce îmbină precizia, inovația și ospitalitatea.
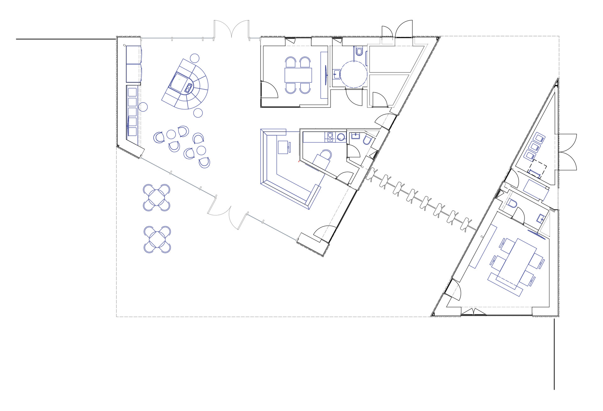
Volumul este conturat de o formă rectangulară, aliniată rigorii geometrice a halelor din jur. În interiorul acestei discipline formale, două gesturi diagonale conferă clădirii identitate și vitalitate. Prima intervenție este un tunel larg, deschis, care străbate clădirea de la un colț la altul. Dotat cu bariere de acces pe bază de card, acest spațiu permite fluxurilor mari de angajați să pătrundă rapid și eficient în orele de vârf. Mai mult decât o simplă trecere, tunelul devine un gol monumental: un spațiu controlat, dar generos, unde mișcarea mulțimii devine parte din expresia arhitecturală.
Al doilea gest diagonal sculptează volumul, generând o zonă protejată de așteptare și întâlnire. Această incizie creează un spațiu hibrid, simultan exterior și interior. Umbrit de o consolă spectaculoasă, devine o terasă-cafenea destinată atât vizitatorilor, cât și personalului, consolidând legătura dintre arhitectură și identitatea companiei. Cum De’Longhi este sinonim culturii cafelei, clădirea integrează ritualul espresso-ului în experiența sosirii. În interior, automatele de cafea sunt expuse ca piese de design, cafeaua este oferită vizitatorilor, iar simplul timp de așteptare se transformă într-o întâlnire cu brandul.
Materialitatea joacă un rol esențial. Fațadele exterioare sunt placate cu panouri metalice, stabilind un dialog cu limbajul industrial ferm al fabricii. În contrast, suprafețele rezultate din decupajul diagonal – pereți și planșee – sunt finisate unitar cu tablă metalică perforată. Această textură subtilă micșorează scara vizuală a volumului, temperează caracterul industrial și generează jocuri dinamice de lumină și umbră. Consola devine astfel un element viu, cu o prezență ce se diluează odată cu mișcarea soarelui, transformând zona de așteptare într-un spațiu primitor, uman, memorabil.
Interiorul este organizat cu claritate și eficiență. Recepția, sala de interviuri și biroul deservesc vizitatorii și partenerii, în timp ce coridorul de acces larg funcționează ca arteră zilnică pentru personal, capabil să gestioneze fluxuri intense. Această dublă funcțiune – spațiu de reprezentare pentru vizitatori și punct de trecere sigur pentru angajați – definește esența proiectului.
În sinteză, clădirea se prezintă ca un paradox: simplă în contur, dar complexă în experiență, industrială în material, dar rafinată în detaliu, pragmatică în funcțiune, dar iconică în expresie. Prin diagonalele sale îndrăznețe, consola spectaculoasă și stratul metalic perforat, clădirea de recepție De’Longhi își îndeplinește ambiția: să surprindă, să impresioneze și să rămână de neuitat ca semnătură arhitecturală a fabricii din Cluj.