
Comentariul autorului:
Orașul Popești-Leordeni, devenit în ultimele decenii un „oraș satelit” al Bucureștiului, traversează un proces rapid și complex de transformare urbană. Creșterea accelerată a populației și extinderea zonelor rezidențiale au generat provocări semnificative, de la infrastructură și servicii publice, până la necesitatea unor instituții capabile să răspundă cerințelor unei comunități dinamice și în continuă schimbare. În acest context, arhitectura nu mai poate fi privită doar ca un instrument funcțional, ci devine un mod de a exprima valori civice, de a facilita interacțiunea socială și de a contribui la coeziunea comunității.
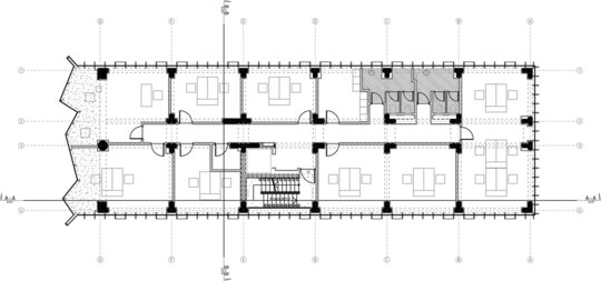
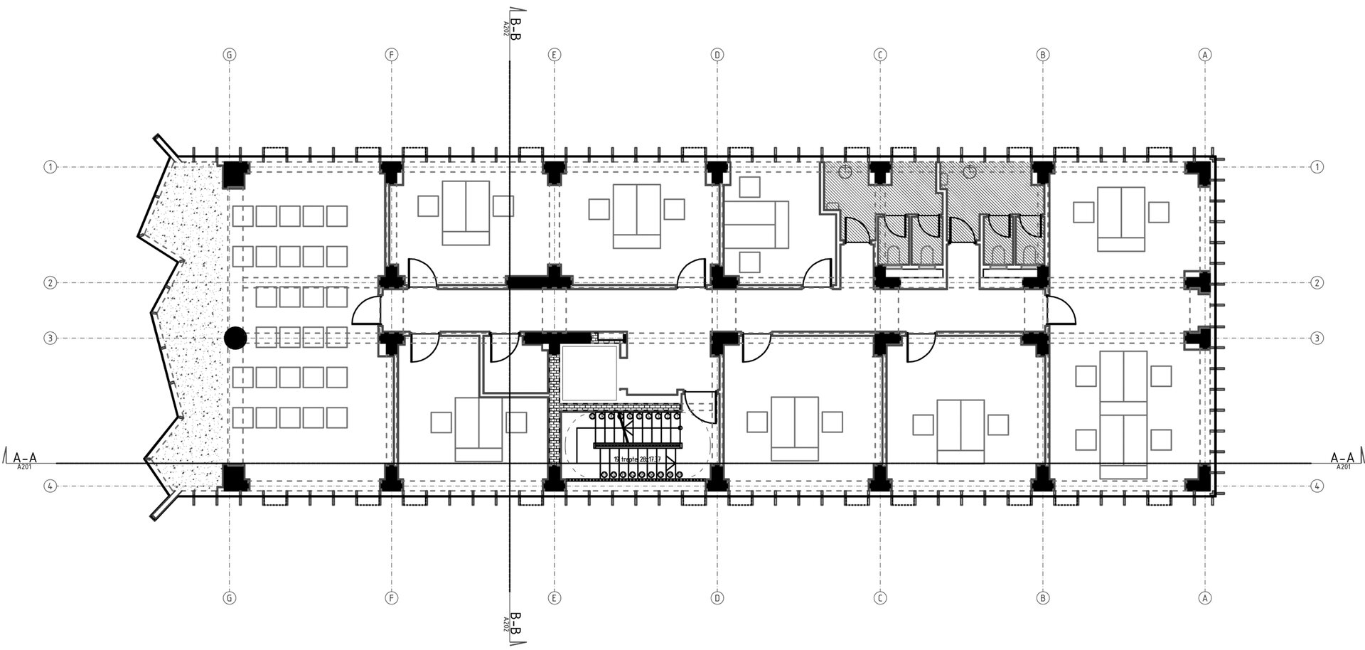
Noua clădire a secției de poliție, ridicată pe locul unei foste construcții care și-a pierdut relevanța funcțională și dimensiunile spaţiale utile, reprezintă mai mult decât o necesitate administrativă. Se dorește un simbol urban al transparenței și al dialogului între autoritate și cetățean, o clădire care își propune să inspire încredere printr-un limbaj arhitectural ce valorifică lumina, reflexia și transparența. Inspirată ca atitudine și reper al transparenţei instituţionale de exemple internaționale precum Reichstag-ul din Berlin, clădirea încearcă să transforme percepția asupra instituției poliţiei, de la senzația de austeritate rigidă la cea de cadru deschis, receptiv și adaptabil nevoilor comunității.
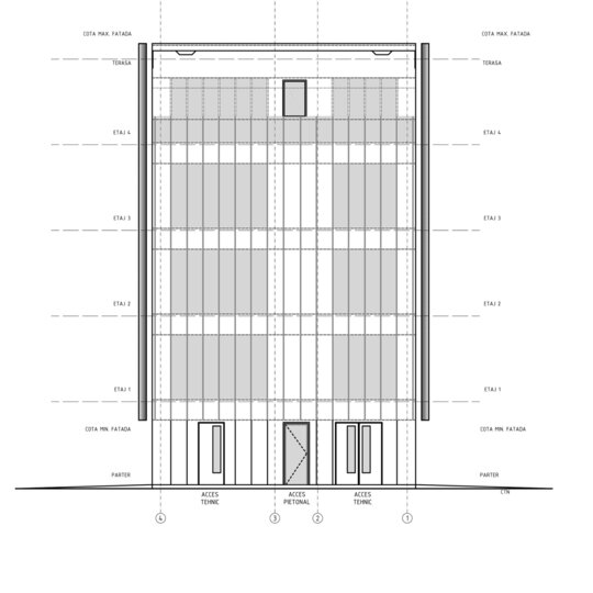
Fațada principală, o vitrină orientată către strada principală, se desfășoară ca o membrană folduită de sticlă reflexivă, generând o experiență vizuală variată în funcție de lumină și momentul zilei. Aceasta este realizată din sisteme de fațadă de tip structural, oferind o suprafață continuă și fluidă, fără întreruperi vizibile. În timpul zilei, fațada reflectă viața urbană și diverse ipostaze ale străzii, integrând semantic clădirea în „ritmul” orașului. Pe timp de seară, lumina interioară devine vizibilă prin sticlă, transformând clădirea într-un far urban, simbol al deschiderii instituționale și al accesibilității.
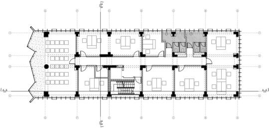
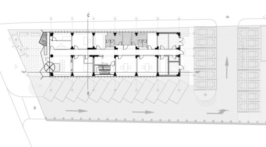
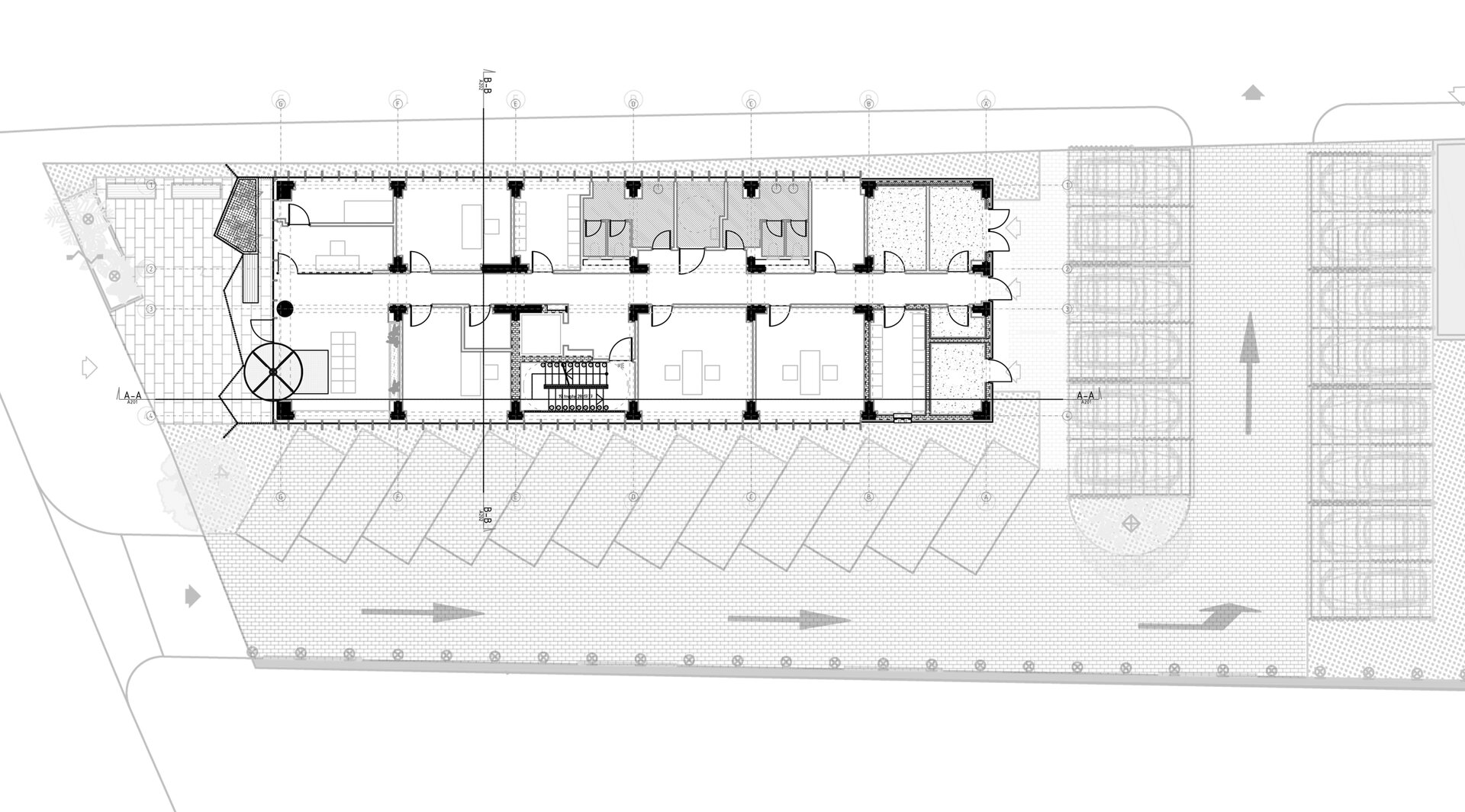
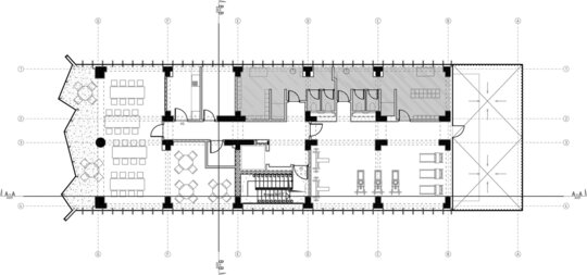
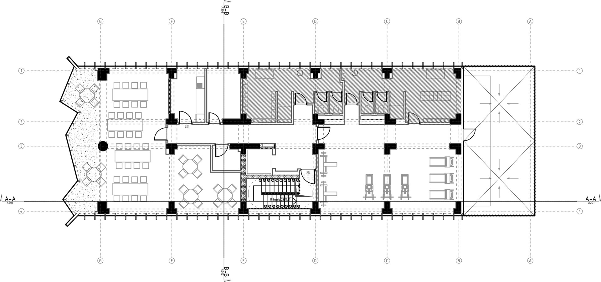
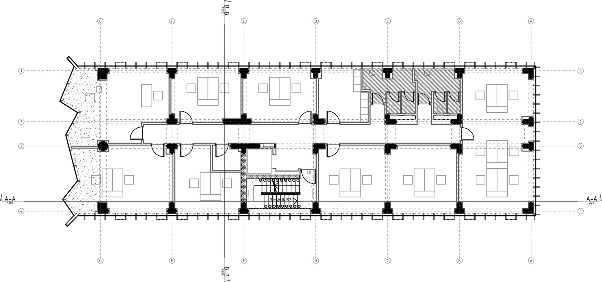
Faţadele laterale, configurate printr-o repetitivitate geometrică cu elemente verticale pronunțate ale tâmplăriei fațadei cortină, folosesc sisteme semistructurale, completate de elemente verticale cu capace presor în format maxim de gabarit oferit de sistem. Acest joc al verticalităților creează un echilibru subtil între protecția vizuală a spațiilor interne și conectarea la mediul urban, rezultând un efect de paravanare, ca niște jaluzele perimetrale ce conferă dinamism arhitecturii.
Același principiu se regăsește în modul în care clădirea se raportează la spațiul public prin împrejmuire. Gardul, alcătuit dintr-o bază de beton și rigle metalice verticale, funcționează atât ca element de securizare, cât și ca filtru vizual, prelungind în plan urban alternanța dintre deschidere și protecție regăsită pe fațade. Către vecinii privați, împrejmuirea este realizată printr-o panotare modulară de elemente metalice de tip panouri ondulate într-o structură industrială, toate vopsite antracit sobru, o culoare generală asumată pentru tot ceea ce reprezintă metal în cadrul proiectului. Această abordare transformă elementele funcționale în experiențe vizuale și tactile, contribuind la conturarea unei identități urbane coerente și la crearea unui dialog constant între instituție și cetățean.
Materialitatea clădirii, propune în partea către stradă dialogul dintre betonul aparent și sticla reflexivă, oferind prin aceasta o imagine ceva mai nonconvențională unui sediu de poliție, betonul posibil simbol de stabilitate și protecție, în timp ce sticla, legătură subtilă între interior și exterior, între autoritate și comunitate. Această combinație permite clădirii să promoveze valorile unei societăți în schimbare: flexibilitate, deschidere și responsabilitate.
Un element special îl reprezintă sistemul de iluminat inteligent, bazat pe protocolul „DALI”. Acesta permite spaţiilor să reacționeaze prin senzori crepusculari la apariția diferențelor de lumină naturală venite din exterior, acționând iluminatul artificial printr-o creștere graduală a intensității. Soluția nu doar optimizează consumul energetic, ci și amplifică percepția de transparență și continuitate între interior și exterior, consolidând imaginea unei instituții în modernizare.
Precum și în alte părți, și aici spațiile publice și instituțiile pot fi concepute pentru a răspunde nu doar nevoilor funcționale imediate, ci și provocărilor viitoare. Noua secție de poliție se dorește a fi un punct de referință urban, un exemplu de cum arhitectura poate facilita interacțiunea socială și poate genera o experiență pozitivă pentru locuitori. Flexibilitatea spațiilor interioare, modul în care fațadele răspund la lumină și context urban și atenția la detalii funcționale, toate contribuie la crearea unui cadru care încurajează apropierea și comunicarea între cetățean și instituție în afara sa, cât și a unui cadru de lucru modern pentru noua generație de absolvenţi de poliţie. Proiectul pentru secția de poliție din Popești-Leordeni demonstrează că produsul arhitectural poate fi mai mult decât un ansamblu de volume: poate fi un cadru experiențial, un catalizator pentru dialog social și un reper vizual adaptabil evoluțiilor comunității. Într-o lume în continuă schimbare, acest proiect reprezintă un exemplu de cum infrastructura publică poate fi nou concepută pentru a fi flexibilă și în același timp profund conectată la nevoile oamenilor, integrând tehnologie, cât și potenţatori de valori civice într-un obiect de arhitectură relevant atât azi cât și mâine.