
Comentariul autorului:
Proiectul se înscrie pe strada Popa Nan din București, și își propune o intervenție la scară mică, dar cu un potențial urban și tipologic extins. Strada Popa Nan este o zonă puternic marcată de fragmentare, de locuire joasă și de tipuri spontane de curți; astfel, am ales să gândim un ansamblu care să recupereze memoria locuirii comune, dar să o și actualizeze într-o manieră controlată. În acest context, problema a fost a regândirii relației dintre domestic și coabitare, iar întrebarea centrală a demersului a fost: “Cum poate fi relecturată tipologia curților bucureștene, într-o cheie contemporană, pentru a genera apartenență fără a anula intimitatea?”
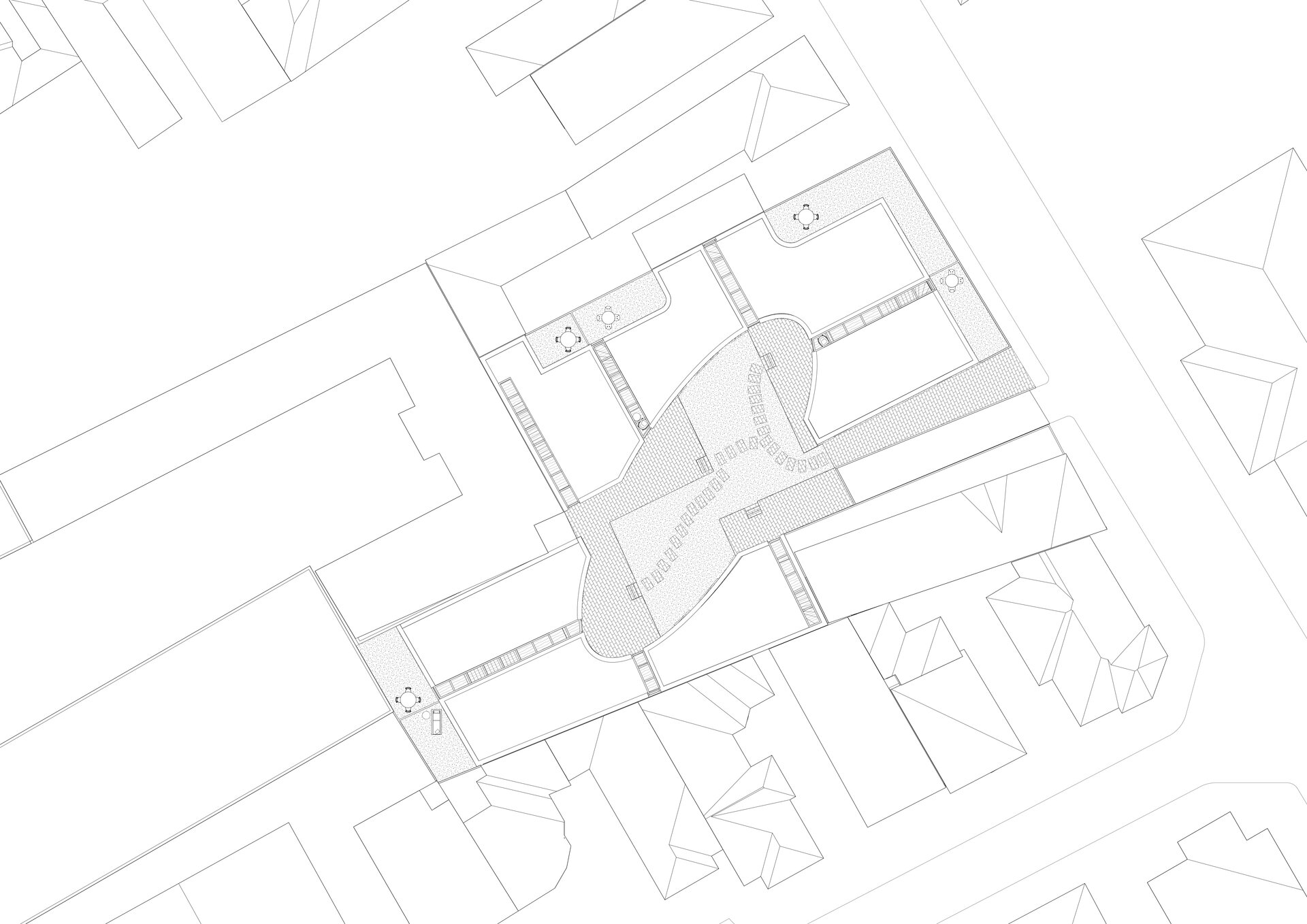
În ceea ce privește strategia de inserare în sit, am optat pentru acces lateral în ansamblu, discret, conform logicii coridoarelor de acces în locuințe și către curțile de fund care se regăsesc pe strada Popa Nan. Fațadele dinspre stradă, respectiv dinspre curtea centrală sunt punctate de goluri atent calibrate la nivelul funcțiunilor interioare, astfel încât o fereastră din birou sau masa de dining să permită legătura cu exteriorul, fără să expună prea mult aceste spații.
Gruparea este organizată în jurul unei curți centrale de coagulare care nu are doar rol funcțional, ci capătă și unul simbolic: curtea devine locul comun al ansamblului, infrastructura de apartenență. Structura curții se sprijină pe 3 tipuri de spații, anume: zona centrală marcată de trasee, podestele de piatră – detaliu tectonic ce leagă ansamblul de materialitatea tradițională a locuirii bucureștene – ce servesc ca spații tranzitorii, dar și ca locuri de întâlnire cotidiană și curțile private. Această secvență garantează o trecere firească între comunitate și intimitate.
Locuința individuală funcționează pe 3 niveluri (S+P+E). Parterul reunește spațiul de zi în care bucătăria și diningul sunt orientate, mai degrabă, către zona comună, iar livingul este retras către zona din spate. Între aceste două spații se află un corp structural continuu (grupul sanitar) care susține planșeul și care este, totodată, și un element ce organizează funcțional parterul. Acest gest reia principiul central al “Glass House” (Philip Johnson, 1949), unde volumul opac al băii organiza întreaga locuință transparentă.
Pentru a evita masivitatea compactă, ansamblul este fragmentat de luminatoare ce coboară din acoperiș pe fațadă și care însoțesc casele scărilor. Aceste goluri de lumină devin momente de verticalitate, marcând circulația ca spații de valoare proprie. În acest sens, lumina devine material arhitectural ce produce atmosferă.
Proiectul nu propune o revenire nostalgic-decorativă la tipologiile istorice, ci o relectură critică a curții de coagulare ca mecanism de locuire. Ansamblul este gândit ca o piesă recognoscibilă de oraș analog, repetabilă, dar contextualizată, capabilă să lege trecutul de prezent. Într-un București aflat între densificare accelerată și pierdere a memoriei urbane, această propunere oferă o alternativă calmă: un ansamblu construit prin gesturi arhitecturale simple, dar cu rezonanță profundă.