
Comentariul autorului:
Ansamblul British International School se găsește în nordul Timișoarei, între Calea Aradului și Calea Lipovei, pe str. Aurora, pe două parcele unificate, aparținând Episcopiei Romano-Catolice Timișoara. Zona este una de limită și întâlnire cu țesutul destinat în principal locuirii individuale și colective tipic zonei metropolitane a comunei Dumbrăvița.
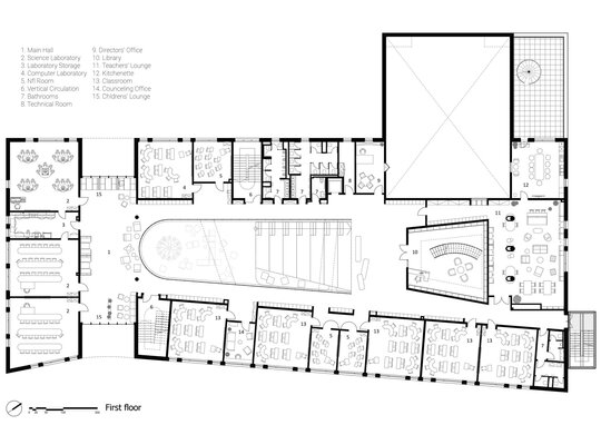
Una dintre clădirile existente pe amplasament a fost regenerată și reamenajată pentru ciclul primar al British School, împreună cu scuarul adiacent, în 2018. Memoria locului este legată de funcția de învățământ, în trecut – final de sec.XIX, început de sec.XX – clădirile existente adăpostind fostul complex mănăstiresc pentru călugărițe “Marienheim”. Un aspect ce s-a dovedit foarte important pentru întreg ansamblul de învățământ a fost protejarea și îngrijirea scuarului plantat cu arbori de valoare adiacent clădirii ciclului primar și asigurând spațiul generos de recreație. Amplasarea noii clădiri a liceului s-a realizat în consecință îngrădind și definind totodată scuarul-curte al întregului ansamblu școlar.
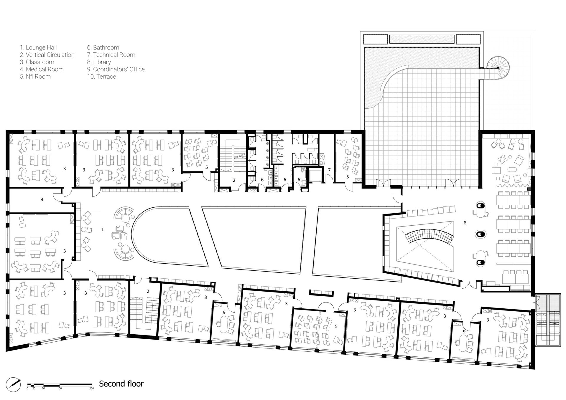
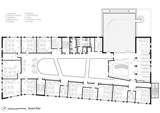
Noua clădire a liceului este gândită ca o poartă de acces în ansamblul de învățământ, scuarul cu copacii săi maturi constituind elementul de atmosferă și ambient cel mai important, putând fi perceput din interiorul clădirii liceului atât la parter cât și de la etajul 1 - „piano nobile”.
Pătrunzând prin portalul clădirii liceului se înfățișează pe de altă parte un mic oraş interior cu o axă longitudinală şi cu o topologie ascendentă înspre biblioteca de la piano nobile, cu o „piaţetă” şi un amfiteatru în atriumul interior. În apropierea intrării sunt amplasate sălile de clasă pentru arte. Sala de mese apare ca o surpriză, dezvoltându-se cu o înălţime liberă dublă orientată înspre parcul ansamblului. Biblioteca, una din cele două ancore ale axului longitudinal ascendent, se dezvoltă de asemenea pe o înălţime liberă dublă, cu un al doilea etaj deschizându-se spre o terasă generoasă care priveşte de sus, la nivelul coronamentelor arborilor din parc. A doua ancoră a axului longitudinal este constituită de arborele Bucida Buceras, plantat în interiorul atriumului, materializând dinamica natură-cultură în pandant cu biblioteca. Perspective oblice, jocul luminii în interior facilitat de luminatorul amplu, cele două pasarele suspendate de la nivelul etajului 2 conectând circulaţiile perimetrale claselor, multitudinea de nişe şi locuri destinate studiului informal individual sau colectiv, şi arborele interior generează o atmosferă vie, potrivită procesului didactic deschis al şcolii. Betonul şi instalaţiile aparente contribuie la o imagine relativ industrială, în timp ce contrastul interior-exterior este generat de volumetria exterioară simplă, orizontală, cu o faţadă-poartă uşor curbată, parţial placată în klinker.
Referitor la contrastul expresie austeră/spectacol interior, ne-a interesat în primul rând ca această “clădire-poartă” pentru întreg ansamblul să afirme dintru început că este un ansamblu şcolar de prestigiu care te invită să intri, de unde uşorul efect de îmbrăţisare al volumului construit. Funcţia de prim prag - poartă a fost gândită pentru toţi elevii ansamblului, cu toate că la clădirea destinată ciclului primar se poate accede şi direct prin lateral, prin curtea ei adiacentă parcului. Într-o ierarhie a parcursului, surpriza spaţiului de tip atrium interior este dublată de generozitatea scuarului privat dintre clădirile şcolare, cu copacii săi maturi. Pe direcţia longitudinală a spaţiului de tip atrium, amfiteatrul este totodată loc de zăbovit şi dispozitiv ascensional către piano nobile dominat de faţada bibliotecii, cu propria ei poartă. Există această succesiune de praguri până la terasa de la etajul doi evocată mai sus, dar există şi un traseu mai labirintic, trecând prin zona cafenelei de sub amfiteatru – un spaţiu de tip prefunction - către surpriza care o constituie cantina ca un spaţiu unitar puternic. La exterior ceramica aduce deopotrivă aminte de Timişoara/Banat cu tradiţia sa în materie de ceramic, dar şi de ceea ce ar putea fi o înfățișare a unei şcoli cu specific britanic. La interior betonul aparent defineşte o atmosferă mai frustă, uşor industrială, îndulcită doar parţial de tavanul casetat Hunter Douglas în atrium şi foarte prezentă în rest, în cantină, etc., cu traseele de instalaţii expuse, cu uşi metalice şi lockere uşor cazone, într-o armonie cromatică neaşteptată cu coloritul uniformelor elevilor. Treptele în lemn ale amfiteatrului şi întreaga parte de design cu uşoare înclinaţii către feminin îmblânzesc atmosfera, la fel ceramica care se regăseşte în cafenea. Un rol definitoriu pentru atmosfera “urbană“ interioară îl are parcursul luminii zenitale ce străbate luminatorul şi grid-ul structural casetat la rândul său în beton aparent. Binomul lumină/umbră cântă parcurgând spaţiul, măsurând timpul şi anotimpul, la fel și arborele Bucida, amplasat într-un punct cheie al spaţiului, care stabileşte un dialog simbolic puternic de-a lungul axului longitudinal ascensional cu faţada “zâmbitoare” a bibliotecii. De pe pasarelele de la etajul doi elevii îşi exersează subliminal senzaţia de stăpâni ai spaţiului.