
Comentariul autorului:
Intervenția propusă pentru recuperarea și revitalizarea elementelor ansamblului de patrimoniu Callimachi-Văcărescu are dept scop adresarea problematicilor referitoare la creșterea nivelului cultural și turistic în mediul rural. Prin implicarea multiplelor categorii de actori sociali: de la comunitatea locală, la profesioniști și vizitatori, intenția este aceea de a asigura salvarea și continuitatea utilizării construcțiilor de patrimoniu, prin refuncționalizare și aducerea acestora în contemporaneitate. În calitate de resursă culturală și economică, scenariul de recuperare presupune transformarea clădirilor existente pe sit în spații culturale, de producție și muzeale, menite să le (re)integreze atât în mentalul colectiv local, cât și pe harta traseelor turistice regionale. Astfel, utilizarea arhitecturii de patrimoniu poate deveni un motor în proiecte de dezvoltare durabilă, menite să crescă totodată nivelul de conștientizare și responsabilizare față de resursele istorice existente.
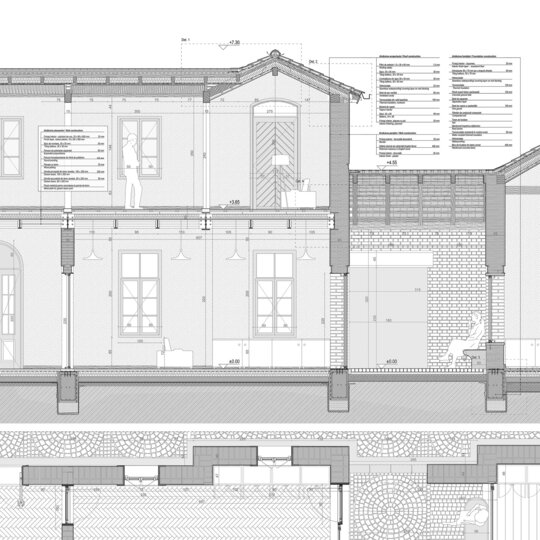
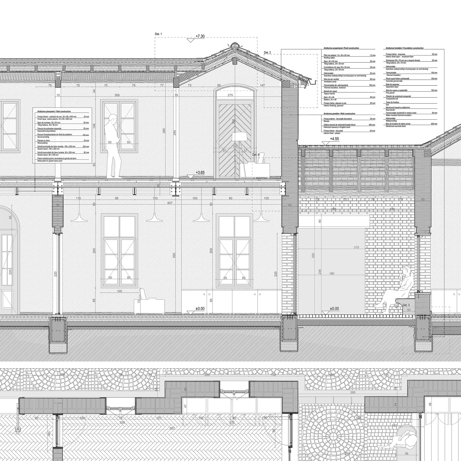
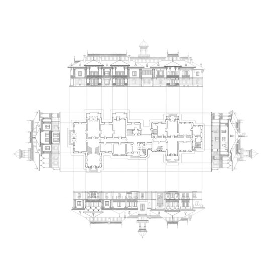
Astăzi domeniul se întinde pe o suprafață de 14 hectare și găzduiește ansamblul unui vechi conac construit după planurile arhitectului francez Paul Gottereau între 1882 - 1892 (1), anexele gospodărești construite separat de acesta (transformate în sanatoriu T.B.C. în anii 1950-1960) și în prezent dezafectat complet (2), vila de vacanță a moștenitoarei Pussy Callimachi) (3), două sere de legume în apropiere de intrarea nordică al ansamblului (4) și biserica de secol al XIX-lea (construită la puțin timp după inaugurarea conacului (5), de către același arhitect, în prezent nu mai face parte din ansamblu). La acestea se adaugă și o serie de amenajări peisagere ale parcului. Edificiul care a devenit emblema domeniului, palatul Conacul Callimachi-Văcărescu se poziționează nu neapărat strategic din punct de vedere al orientării (având una dintre laturile principale spre nord), amplasamentul său fiind cel mai probabil o rezultantă a factorilor dați de sit, și anume preexistența unei construcții anterioare de gabarit mult mai mic. Conacul reprezintă în memoria colectivă o prezență față de care comunitatea locală se raportează nostalgic și de la o oarecare distanță fatalistă - un castel ruinat, abandonat, a cărui singură urmă încă persistentă este legenda populară despre ceea ce a fost. Din această nevoie, amenajarea unor spații expoziționale în sălile conacului și a unui parcurs muzeal imersiv, poate fi unul din instrumentele care să asigure apropierea și educarea actorilor interni și externi față de o mărturie istorică. Cu toate acestea, un parcurs muzeal, pentru a deveni atractiv și pentru a asigura întreținerea în permanență a construcției, nu poate răspunde de unul singur problematicii abandonului - de unde rezultă și necesitatea asocierii acestuia cu alte funcțiuni și activități conexe. Programul unei școli de vară ar putea reprezenta prilejul de a aduce împreună studenți și tineri profesioniști și pasionați cu activitate în domenii precum arhitectură și restaurare, arheologie, peisagistică, arboricultură, istorie și arte vizuale.
În final, miza nu este numai refuncționalizarea și aducerea resurselor existente în contemporaneitate într-un mod sustenabil, ci și de a crește nivelul conștientizării și responsabilității față de valorile culturale – esența oricărui scenariu de revitalizare de patrimoniu.