.jpg-d2.jpg)
Comentariul autorului:
Un proiect de amenajare interioară reprezintă cu act de imprumut. Arhitectul se transpune în existentul beneficiarului, îi învaţă obicieiurile, locurile preferate, stilul de viaţă, felul de a fi, practic îi împrumută scenariul de viaţă pentru a îi da o nouă formă. Într-un mod similar, beneficiarul împrumută, la rândul lui, viziunea arhitectului şi noile premise ale locuirii date de acesta, proiectul final transformȃndu-se într-un spaţiu de intersecţie dintre cele doua coordonate, beneficiar şi arhitect.
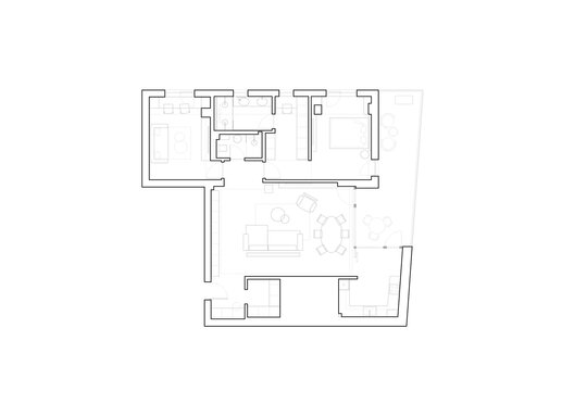
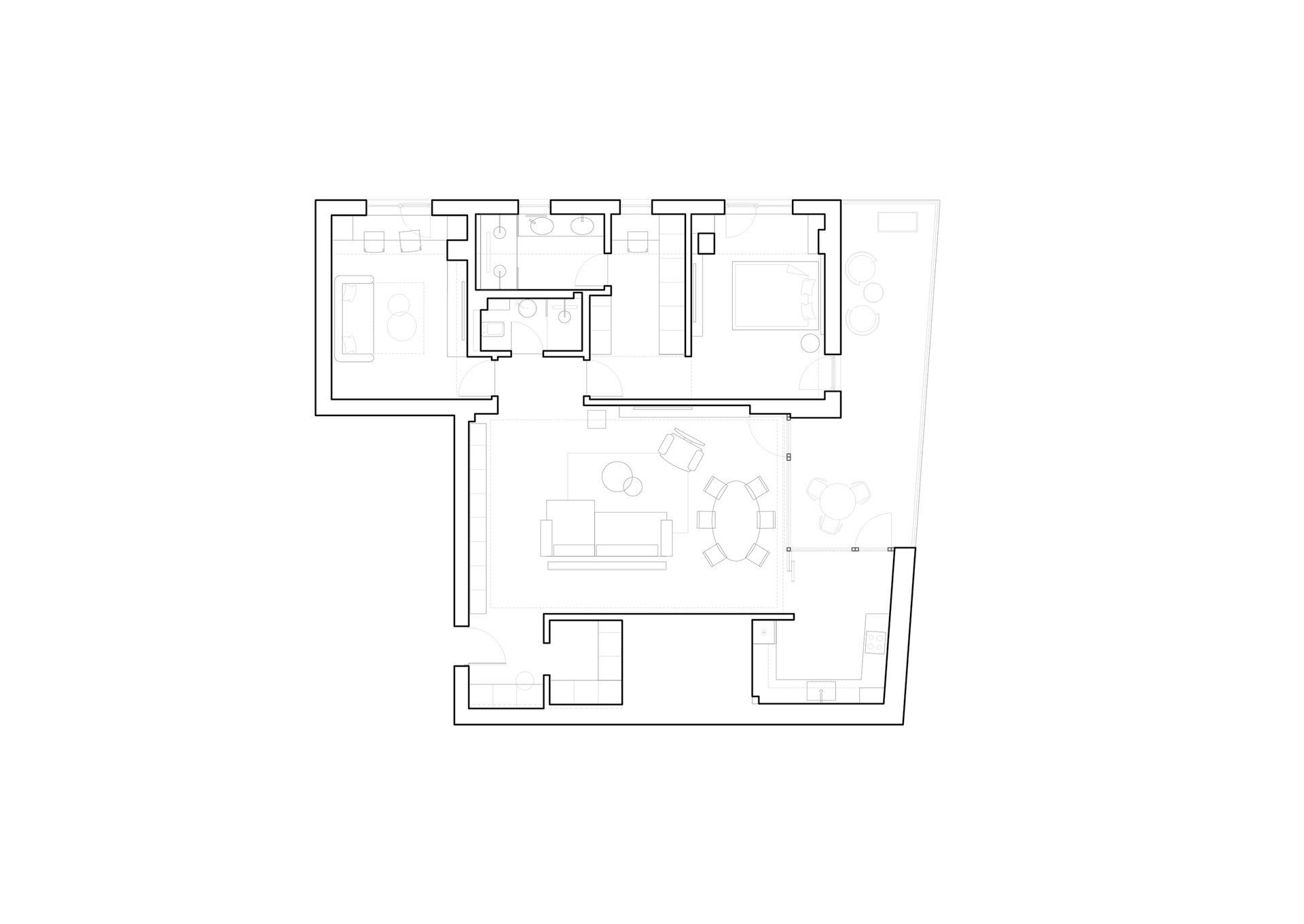
În scenariul actual, reprezentat de un apartament cu o suprafaţă utila de 110 mp, a trebuit să ne transpunem în viaţa unui cuplu pentru care materialele atemporale, tactile, alături de atmosfera caldă şi atenția la detalii se apropie de viziunea ideală a unui cămin sincer şi primitor, “acasă”.
‘’Him & Her”’ simbolizează înţelegere, contrast, armonie, dar mai ales complementaritate regasită în scenariul actual atȃt la nivelul finisajelor cȃt şi al formelor şi poziționării pieselor de mobilier.
La nivel vizual, zona de zi este clar delimitată de cea de noapte, delimitare marcată prin crearea unui cadru sugestiv pe care se profilează postamentul sculptural ce priveşte către accesul în apartament. Fiind preluat dintr-o fază incipientă, am reuşit să creăm un plan de compartimentare diferit față de cel al dezvoltatorului, urmărind stilul de viață şi cerințele beneficiarilor, dar şi orientarea apartamentului şi, implicit, sursele de lumină naturală. Zona de zi, avȃnd una dintre laturi îndreptată către terasă, împrumută din caracterul acesteia, devenind un tablou viu spre care priveşte zona de dining dar şi bucătaria. Pe lȃngă partiţia prevazută în proiectul de arhitectură care separă living-ul de terasă, a fost propusă o partiţie suplimentară, cu scopul închiderii opţionale a bucătariei dar şi pentru aportul vizual, ea contribuind la senzaţia de lungime a spaţiului. Baia matrimonială accentuează axul vertical al ferestrei, iar cea de serviciu, care nu beneficiază de lumină naturală, merge pe aceeaşi idee, adusă însă în scenariu de placarea cu oglindă pe întreaga înalţime a peretelui şi conturată de benzile LED care o închid.
Discursul tactil se remarcă prin utilizarea predominantă a materialelor şi texturilor naturale, precum marmura, lemnul, pielea şi alama, care conturează împreună o versiune “tăcută” şi familiară a luxului. La senzația de atemporalitate contribuie şi integrarea plantelor naturale în zona de zi, iluminatul stratificat, urmărirea unei palete cromatice naturale, fără contraste puternice. Piesele de mobilier de serie selectate reflectă o apreciere a beneficiarilor pentru brand-uri de mobilier cu istorie, etică şi apreciere a detaliilor. Bucătăria continuă limbajul complementarităţii texturilor, formelor, masculinului şi femininului, concept despe care vorbesc toate spaţiile acestui apartament.